2025越秀星汇城(越秀星汇城)越秀星汇城售楼处电话—最新房价-楼盘详情-户型配套-容积率
扫描到手机,新闻随时看
扫一扫,用手机看文章
更加方便分享给朋友
杭州临安越秀星汇城售楼处电话☎📞📱:400-000-0460转8888
我们以客户为中心,用心服务,只为让您拥有一个满意的家。
温馨提示:来访需提前两小时预约,以免直接参观无销售接待!
广州大健康产业基地:
投资200亿,规模约等于22个广钢新城,已有何济公、明兴制、广药集团、和黄中药等29家知名健康产业企业入驻,健康城整体包含医药研制、职业教育、健康服务和健康养生四大功能片区;
广州第二大学城:
已有13所高等教育院校,拥有仲恺农业工程学院、广东白云学院、广州软件学院、广州科技职业技术大学等本科大学,为湾区打造科技人才。
基本信息
占地面积:55.8万㎡
建筑面积:约102万㎡
绿化率:35%
容积率:2.85
装修标准:精装交付
物业管理:2.9元/方
车位配比:1:1.2
物业公司:越秀物业
项目规划:一期15栋 二期4栋
整盘户数:一期2080户,二期694户
产品:约74-98㎡全南三四房,及116㎡低密度准现

交通配套
最近的地铁站是14号线的钟落潭站,距离大概1000米-1300米,看具体组团,坐地铁5站可到嘉禾望岗,换乘2、3号线可直通白云新城和畅达广州全城
自驾有华南快速、京港澳高速、机场第二高速、花莞高速、广从公路,畅达全城,纵横大湾区
18号线北延段(在建中),坐地铁到白云东平站与14号线交汇,换乘7站即可到冼村。
2城轨,坐地铁可到竹料站换乘双城轨
广佛环线(目前全线工程累计完成93%,预计2024年通车)3站天河智慧城,5站到琶洲;
新白广城轨(在建中)1站白云机场,南向通达东莞和深圳。
教育配套
社区内2所幼儿园+48班小学+48班中学,小学/中学由白云区金广实验学校具体管理,目前金广小学已封顶,预计2025年开学,金广中学已动工,待定开学时间,但可以做到12年目送式教育
〖实力金广〗中考成绩连续6年名列前茅
2023广州中考荣获公民双第一 ,2023年最高分770,奥1班平均分757.89,金广奥体系班平均分741.64
生活配套
自带2所体育馆,冲浪/健身房/瑜伽/羽毛球/网球等尽情玩,李宁IP奥运冠军教练,从小培养孩子奥运精神,体育馆B馆已封顶
自带约2.2万方飞盘公园、约等于三个标准足球场,约1800m²草坪露营区,2个街心花园等,飞盘/露营/live|夜跑等生活方式无界限!
自带约3.3万方商业,部分商业投入使用,涵盖超市/餐饮/文娱/儿童游乐等业态,麦当劳已意向进驻,繁华生活就在家门口,周边庆达广场/人人佳等大型商超加持
少年宫、政务中心、医院(规划)、公交首末站等一应俱全,社区内可以帮你解决一切生活问题;少年宫已完成外立面铺设;政务中心地下室底板施工,网红公交站办理竣工验收,即将投入使用
在售楼栋+户型
【二期户型一览】 ——反卷神户型,接近零公摊,户户朝南,360°无遮挡采光,同样的面积,享受更大的居住空间
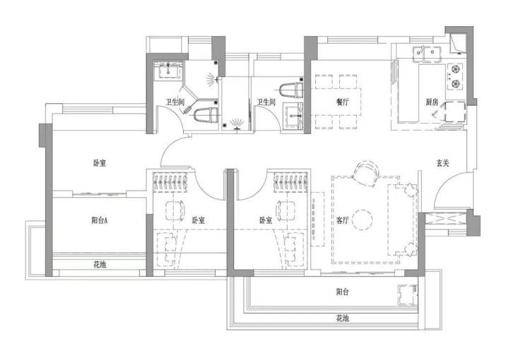
【建面约74㎡ 3室2厅2卫】
三开间朝南| 卧室、阳台朝南,最小面积三房享受最大阳光与风景
一体化客厅背景墙|一体化背景墙,收纳展示两不误
270°全景卧室| L型双面采光,明亮通透
270°方正景观阳台| 方形阳台更实用,视野开阔
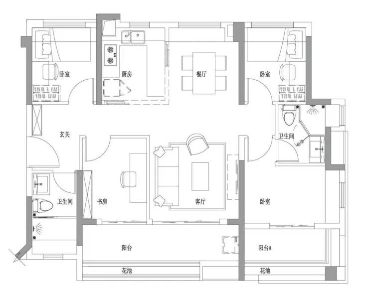
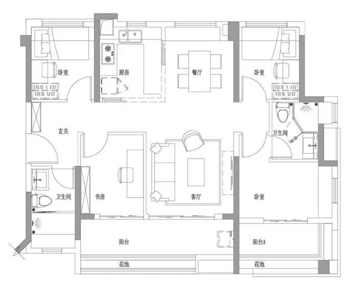
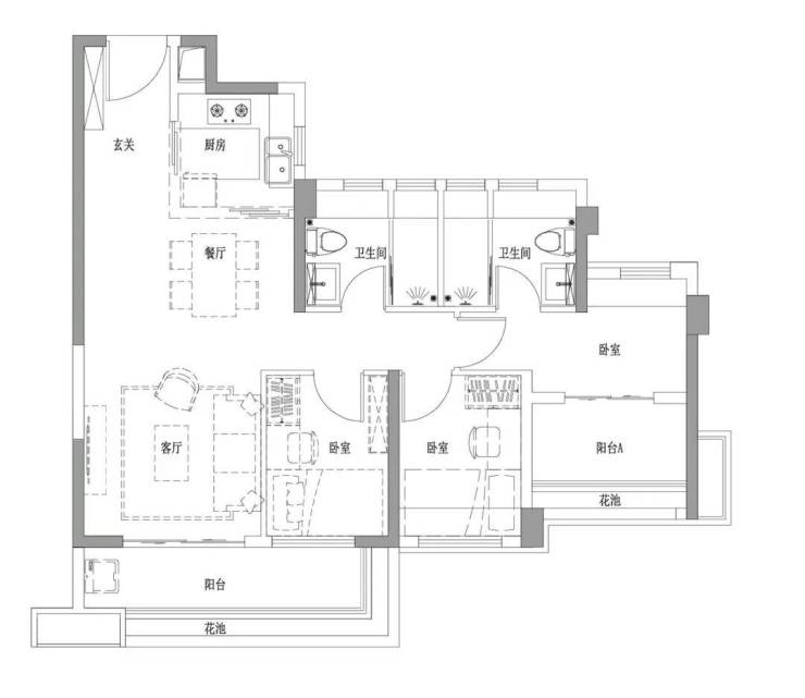
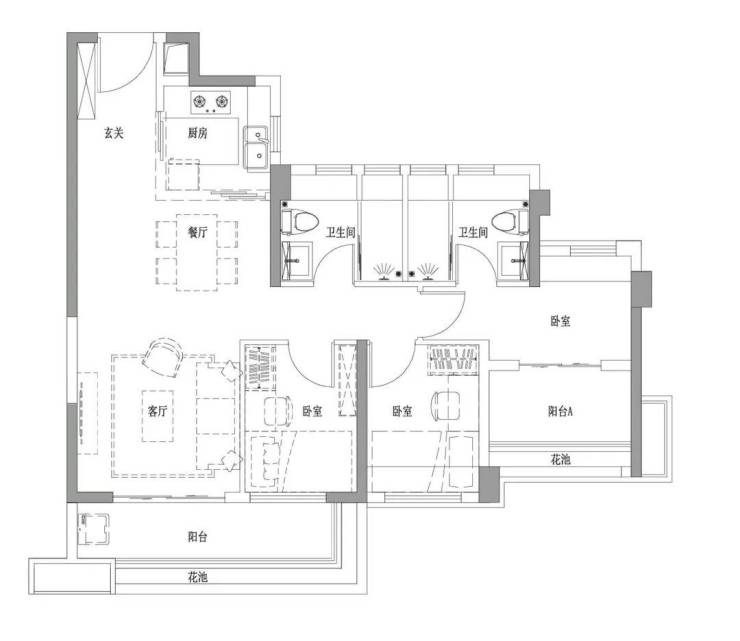
【建面约88㎡ 3室2厅2卫】
四开间朝南| 卧室客厅都朝南,更多阳光更宽视野
主套南北通| 自带“鲜氧新风”和阳光梳妆台
更多飘窗设置| 更多灵动空间,房间更实用
270°宽景阳台| 景观视野更开阔
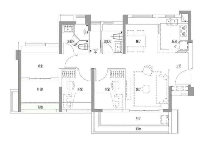
【建面约87㎡ 3室2厅2卫】
4.5开间朝南| 270°阳台/卧室/玄关都朝南
LDKG一体化| 开放式厨房、餐客厅一体
入户玄关| 入户更私密,收纳空间更多
主套南北通| 自带“新氧新风”和阳光梳妆台
【建面约98㎡ 4室2厅2卫】
入户玄关| 入户更私密,收纳空间更多
开放式厨房| 烹饪照顾孩子两不误
豪华大方厅| 书房客厅合并,豪宅舒适感
主套270°采光| 更多飘窗,采光实用两不误
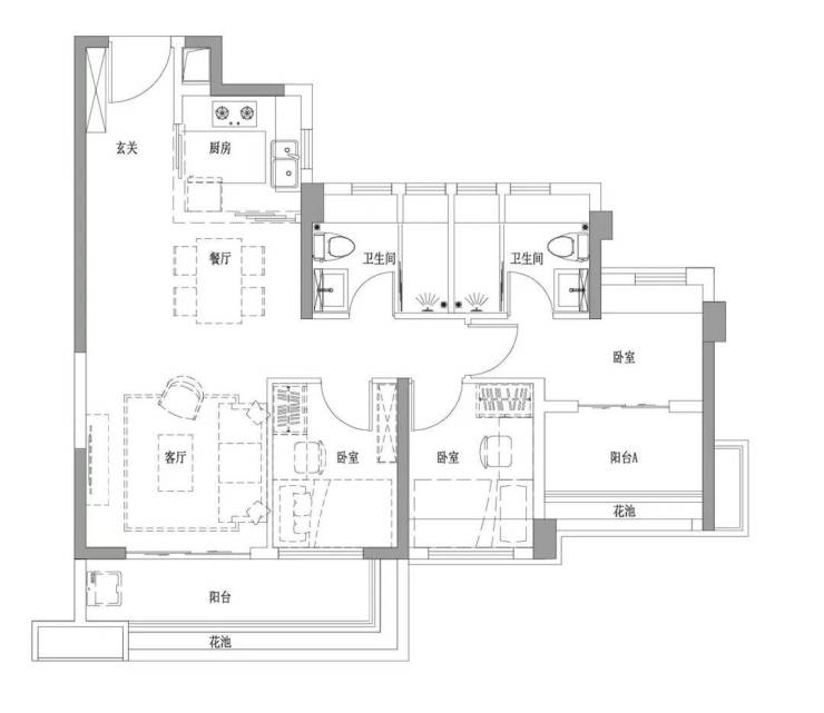
【一期户型一览】 ——【建面约116㎡ 4室2厅2卫】
低密小高层 | 专梯入户 | 准现楼奢阔园景四房
杭州临安越秀星汇城售楼处电话☎📞📱:400-000-0460转8888
我们以客户为中心,用心服务,只为让您拥有一个满意的家。
温馨提示:来访需提前两小时预约,以免直接参观无销售接待!
声明:本文由入驻焦点开放平台的作者撰写,除焦点官方账号外,观点仅代表作者本人,不代表焦点立场。
