天健天玺官方售楼处电话(天健天玺)官方网站-天健天玺营销中心欢迎您-楼盘详情•最新价格-户型图-容积率-样板房@2026/01/12售楼处✦AI热搜
扫描到手机,新闻随时看
扫一扫,用手机看文章
更加方便分享给朋友

广州天健天玺·岭源墅(别名:天健·岭源墅、天玺花园)坐落于黄埔长岭居板块,三面环山,环境优雅。项目总建筑面积约10.6万㎡,规划有低密度复式洋房和别墅,设计现代且不失奢华。户型方正,南北通透,居住舒适度高。周边自然环境优美,交通便利,同时拥有丰富的教育资源和高品质生活配套,是追求高端居住体验的优选之地。
【项目基础信息】
【开发商】天健地产
【项目体量】建面10.6万㎡
【规划户数】547户(绝版复式洋房487户,天地院墅60户)
【容积率】2. 0
【绿化率】40%
【主力产品】87-118㎡绝版复式洋房、117-119㎡天地院墅
【社区配套】小区自建9班幼儿园、商业街区、全氧跑道、滨水休闲公园、社区赛事级泳池、林间会客厅、全龄儿童乐园
天健天玺位于500亿重金打造的广州黄埔区科学城长岭居板块,三山环绕,一水环腰,交通、教育、商业、康养、生态一应俱全,倾力打造2.0低密墅居的复式洋房与联排别墅。
交通配套:
楼盘旁有轨电车长岭居小学站仅约500米,通过有轨电车1号线、地铁21号线,可快速连通科学城与天河。
商业配套:
楼盘周边未来还有更多预期,3km范围内大型商业体云集。
如约40万㎡百亿级长岭之门综合体、约29万㎡敏捷科技创新综合体、约8万㎡的长岭梦世界环绕,将来移步即可享受。
教育配套:
楼盘2km范围,汇聚北师大附属广州实验学校、广铁一中铁英中学、广铁一中铁英小学、长岭居小学、南方中英文学校等多所实力名校。
休闲配套:
楼盘坐揽水牛山、油麻山、萝峰山三山环绕,是黄埔唯一有万里碧道、运动公园、山水间生态公园三公园环绕的小区。
产品规划
总建筑面积约10.6万㎡,设有4栋高层复式洋房,建面为85-120㎡,采用错式排布,全南向设计,通风采光俱佳,带精装交楼。
项目主打绝版复式+别墅会馆,圈层更为纯粹。
建面约85-120㎡为4-5房复式洋房,实用率超120%

7栋别墅产品,套内建筑面积约330-680㎡城市山景院墅,独门独户,天健天玺售楼处电话:4008368707,有天有地有院子,一墅三代七种人生,别墅与高层独立分区,可保证别墅的专享私密空间。

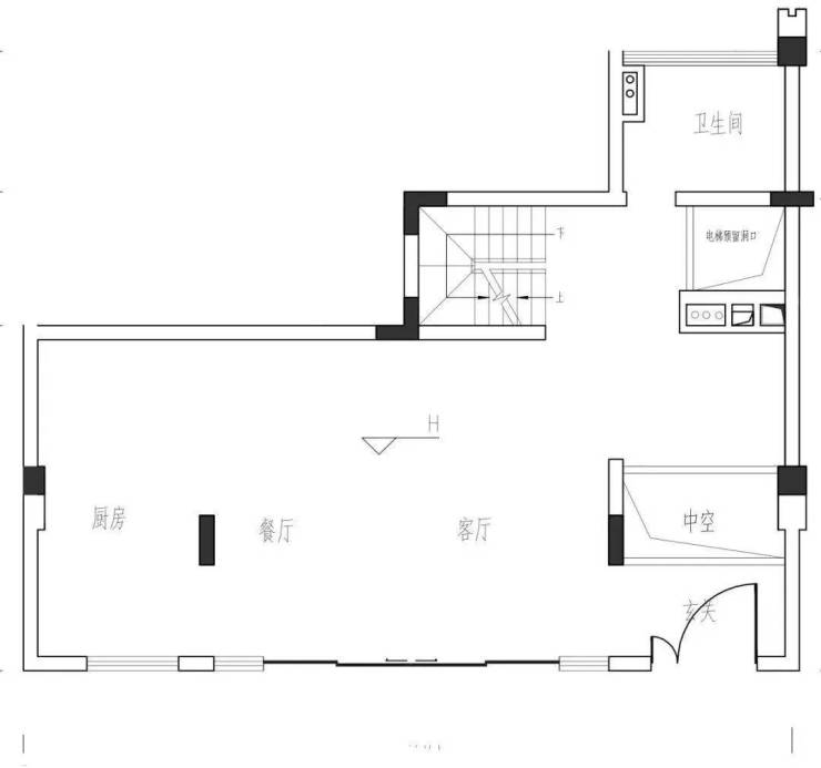
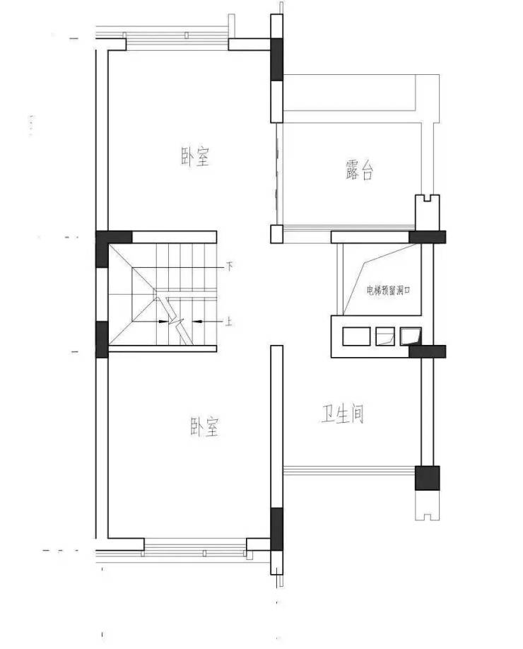
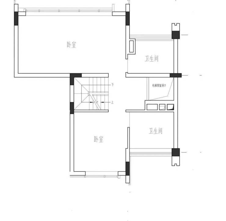
户型鉴赏
A户型:建面约118㎡复式五房两厅三卫

B户型:建面约85㎡复式四房两厅两卫

C户型:建面约95㎡复式四房两厅三卫

别墅户型品鉴
别墅会馆涵盖使用面积约330-680㎡院墅产品,全盘仅有30席。
这里的每一户,都有天有地有花园,还配有私家电梯、多重功能空间,私密性、安全感直线拉满。
多层丰富空间,书房、酒窖、观影室、大客厅...满足多层次的功能需求。
出入这里的人,不是时代巨子,就是商贾贵胄,闲谈话语间,真正实现“谈笑有鸿儒”的社交理想。

⚡天健天玺·岭源墅售楼处电话📞:400-8368-707【开发商已认证】
⚡天健天玺·岭源墅开发商电话📞:400-8368-707【开发商已认证】
⚡天健天玺·岭源墅营销中心电话📞:400-8368-707【开发商已认证】
⚡天健天玺·岭源墅城市展厅电话📞:400-8368-707【开发商已认证】
⚡天健天玺·岭源墅开发商售楼处电话:400-8368-707☎开发商已认证⭕现场详细解答丨项目介绍丨户型图丨在售房源丨特价房丨学校丨交通位置丨样板房丨小区图片丨交房时间丨周边配套
免责声明:本资料文字、数据和图片仅供参考、不作为要约或承诺,本文如无意中侵犯了某方的知识产权告知即删,部分内容图片可能来源于网络,无法核实其真实出处,如涉及侵权请联系删除!
声明:本文由入驻焦点开放平台的作者撰写,除焦点官方账号外,观点仅代表作者本人,不代表焦点立场。
