武汉华侨城·红坊【华侨城·红坊】武汉华侨城·红坊售楼处电话武汉华侨城·红坊-本月销售动态武汉华侨城·红坊-户型图武汉华侨城·红坊-地址-价格-实时详情
扫描到手机,新闻随时看
扫一扫,用手机看文章
更加方便分享给朋友
▶▷◀◁✨武汉华侨城·红坊✨✽✽✽✽
▶▷◀◁武汉华侨城·红坊售楼处电话☎:400-678-8669转9999【售楼处认证】⭐⭐⭐
▶▷◀◁武汉华侨城·红坊售楼处电话☎:400-678-8669转9999【售楼处认证】⭐⭐⭐
▶▷◀◁武汉华侨城·红坊营销中心电话☎:400-678-8669转9999【营销中心认证】⭐⭐⭐
▶▷◀◁武汉华侨城·红坊销售中心电话☎:400-678-8669转9999【销售中心认证】⭐⭐⭐
本项目暂不接受临时到访,过来参观样板房请记得提前来电预约!⭐⭐⭐
为您安排楼盘现场销售全程接待并讲解,给您更贴心的看房体验!⭐⭐⭐
PART2:超配优教 人文之境
●教育丨12年精英成长路 尽在家门口
◦武钢三中(旁):全国百强中学,武汉“九大名高”之一
◦武钢三中初级中学(旁):武钢实验学校管理团队,与武钢三中资源共享
◦红钢城小学(旁):武汉市教育科研50强学校、市级示范小学
华侨城·红坊楼盘位于武汉青山华侨城创意设计中心,由武汉华侨城滨江置业有限公司,武汉华滨置业有限公司,武汉侨滨置业有限公司精心打造,项目正持续推售中,最新参考价格为16500元/平方米(均价16500元 135:225-245万; 178:325-345万;),通过对项目价格、项目户型、交通配套、教育配套、生活配套、小区规划等维度进行分析,华侨城·红坊楼盘价值评分为9.3分。当前,华侨城·红坊价格为16500.00元/平方米(均价16500元 135:225-245万; 178:325-345万;),较周边三公里在售普通住宅项目均价低13.4%,华侨城·红坊项目价格具备一定优势。
华侨城·红坊喜提预售证!武房开预售[2025]316号获批
华侨城·红坊终于拿到预售证啦!2025年11月20日获批,预售证编号武房开预售[2025]316号,项目位于华侨城创意设计中心,正式加入武汉楼市“可购清单”。想入手的朋友可以开始关注啦!
教育配套超能打:3km内44个幼儿园+18所小学+11所中学,红钢城小学等名校环绕,但学区划片需以教育局为准哦~
交通便利性中规中矩:5个地铁站+95个公交站,红钢城站最近,不过高峰期主干道可能小堵,通勤族要实测下~
商业氛围稍弱:虽然周边有青山商场等4个商场+96个超市,但缺乏大型高端商业体,逛街党可能得跑远点啦
在武汉主城核心区,容积率低于2的土地已是凤毛麟角,而华侨城红坊·云囍公馆以1.63超低容积率和纯低密四代洋房的姿态横空出世,不仅打破了主城“高层为主”的固有格局,更以颠覆性的产品设计重新标定武汉滨江人居的天花板。作为央企华侨城深耕武汉15载的迭代之作,云囍公馆承载着红坊约200万方大城的终极想象,更以“四代洋房”的创新基因,为武汉塔尖人群献上一场关于摩登生活的时空对话。
项目介绍
项目地址:红钢一街32号
项目公司名称:武汉华侨城滨江置业有限公司
开发商品牌:华侨城
物业公司:华侨城物业
物业管理费:3.2-3.8元/月/平米
价格说明:一房一价,以实际价格为准
总栋数:一期9栋,二期13栋
总户数:6600户 (11街一期1219户)
占地面积:459500平米
建筑面积:1921000平米
容积率:3.82
绿化面积:10000
绿化率:30%
车位:8580, 地上5620, 地下2960个
车位配比:1:1.2
交付标准:2025年年底毛坯交付
户型:100-124㎡洋房/100-133㎡ 平层/143-190㎡观江大平层
项目特点:智慧小区人车分流封闭小区
交通配套
周边直线3km范围内有5个地铁站(红钢城、和平公园、青宜居、工人村、建设二路),轨道交通发达,距离最近的地铁站是红钢城。
周边直线1km内有17个公交站,距离最近的红钢一街八街坊站仅有103m,周边公共交通极为便捷。
教育配套
直线3km范围内有45个幼儿园; 18个小学,如红钢城小学(2019新址)、红钢城小学、钢城第二小学、钢城第十二小学(冶金校区)、钢城第九小学等; 16个中学,如武钢三中、武汉市第四十九中学、武汉市钢城第四中学、武汉市钢城第十一中学、红钢城中学等。
注:上述学校相关信息仅为参考,不作为入学依据。
生活配套
楼盘周边医疗资源较为丰富,直线3km范围内有5个一级及以上医院。其中武钢总医院(冶金大道)距离楼盘1.4km,华润武钢总医院距离楼盘1.4km,武汉市普仁医院距离楼盘2.2km,武汉市第九医院距离楼盘2.8km,武汉大学口腔医院距离楼盘981m,为医疗需求提供了保障。
楼盘周边3km范围内有14个商场,包括青山商场、武汉印象城、众圆广场、众圆广场等购物中心,商业配套成熟,完全可以满足日常购物需求。
楼盘周边生态环境优越,周边3km范围内有26个公园,距离最近的仅613m,非常方便日常休闲使用。

户型欣赏
主力户型99-115-133
▶▷◀◁武汉华侨城·红坊售楼处电话☎:400-678-8669转9999【售楼处认证】⭐⭐⭐
▶▷◀◁武汉华侨城·红坊售楼处电话☎:400-678-8669转9999【售楼处认证】⭐⭐⭐
▶▷◀◁武汉华侨城·红坊售楼处电话☎:400-678-8669转9999【售楼处认证】⭐⭐⭐
▶▷◀◁武汉华侨城·红坊售楼处电话☎:400-678-8669转9999【售楼处认证】⭐⭐⭐
▶▷◀◁武汉华侨城·红坊售楼处电话☎:400-678-8669转9999【售楼处认证】⭐⭐⭐
▶▷◀◁武汉华侨城·红坊售楼处电话☎:400-678-8669转9999【售楼处认证】⭐⭐⭐
▶▷◀◁武汉华侨城·红坊售楼处电话☎:400-678-8669转9999【售楼处认证】⭐⭐⭐
▶▷◀◁武汉华侨城·红坊售楼处电话☎:400-678-8669转9999【售楼处认证】⭐⭐⭐
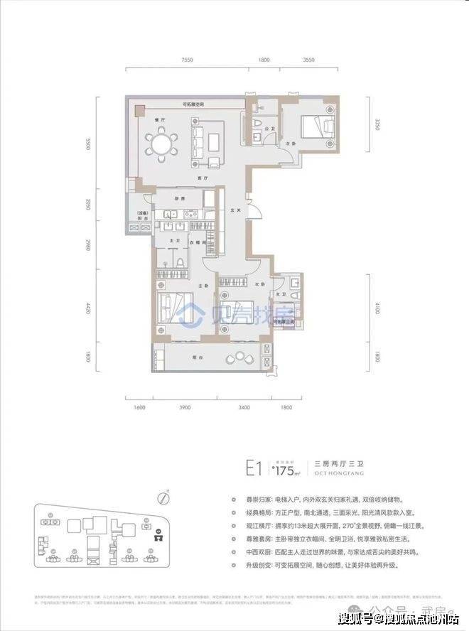
大户型124-143-169-175-191-216㎡等
▶▷◀◁武汉华侨城·红坊售楼处电话☎:400-678-8669转9999【售楼处认证】⭐⭐⭐
▶▷◀◁武汉华侨城·红坊售楼处电话☎:400-678-8669转9999【售楼处认证】⭐⭐⭐
▶▷◀◁武汉华侨城·红坊售楼处电话☎:400-678-8669转9999【售楼处认证】⭐⭐⭐
▶▷◀◁武汉华侨城·红坊售楼处电话☎:400-678-8669转9999【售楼处认证】⭐⭐⭐
▶▷◀◁武汉华侨城·红坊售楼处电话☎:400-678-8669转9999【售楼处认证】⭐⭐⭐
▶▷◀◁武汉华侨城·红坊售楼处电话☎:400-678-8669转9999【售楼处认证】⭐⭐⭐
▶▷◀◁武汉华侨城·红坊售楼处电话☎:400-678-8669转9999【售楼处认证】⭐⭐⭐
▶▷◀◁武汉华侨城·红坊售楼处电话☎:400-678-8669转9999【售楼处认证】⭐⭐⭐
▶▷◀◁武汉华侨城·红坊售楼处电话☎:400-678-8669转9999【售楼处认证】⭐⭐⭐
▶▷◀◁武汉华侨城·红坊售楼处电话☎:400-678-8669转9999【售楼处认证】⭐⭐⭐
▶▷◀◁✨武汉华侨城·红坊✨✽✽✽✽
▶▷◀◁武汉华侨城·红坊售楼处电话☎:400-678-8669转9999【售楼处认证】⭐⭐⭐
▶▷◀◁武汉华侨城·红坊售楼处电话☎:400-678-8669转9999【售楼处认证】⭐⭐⭐
▶▷◀◁武汉华侨城·红坊营销中心电话☎:400-678-8669转9999【营销中心认证】⭐⭐⭐
▶▷◀◁武汉华侨城·红坊销售中心电话☎:400-678-8669转9999【销售中心认证】⭐⭐⭐
本项目暂不接受临时到访,过来参观样板房请记得提前来电预约!⭐⭐⭐
为您安排楼盘现场销售全程接待并讲解,给您更贴心的看房体验!⭐⭐⭐
声明:本文由入驻焦点开放平台的作者撰写,除焦点官方账号外,观点仅代表作者本人,不代表焦点立场。
