首创天阅公馆售楼处电话→首创天阅公馆售楼中心电话→2025年楼盘百科→首页网站→售楼处电话/地址/备案价/楼盘详情
扫描到手机,新闻随时看
扫一扫,用手机看文章
更加方便分享给朋友
首创天阅公馆预约中心电话:400-000-0460转6868
首创天阅公馆预约中心电话:400-000-0460转6868
预约来电尊享内部优惠,开发商案场销售一对一热情服务,看房不收取任何费用!
Sales Office Phone: 400-000-0460 ext. 6868
Book a phone call to enjoy internal discounts, and the developer will provide one-on-one enthusiastic service for on-site sales. No fees will be charged for viewing the property!

#DT CENTER#数科中心
【世界河西芯·总部商务体】
#DT CENTER#作为2021年江苏省重大项目,以多元业态规划全维体系构建城市“数字森林”,集复合办公空间、智慧科技公寓、活力商业街区为一体,打造河西产业、人居、商圈新高地。
(区位示意图)
一、项目基础信息
总建筑面积:约33.1万㎡(地上约23.7万㎡,地下约9.4万㎡);
公寓建筑面积:约4.7万㎡;
办公建筑面积:约15.4万㎡;
商业建筑面积:约3.6万㎡;
(项目效果图)
二、项目五大价值
①总部云集:
聚焦数字经济产业,58集团华东区域总部(在建)入驻,毗邻阿里巴巴江苏总部(在建)、小米华东区域总部(在建),集聚效应明显(信息来源:搜狐焦点);以人工智能、大数据、区块链、云计算等为支撑产业,打造南京数字经济高地。
②国企开发:
首创集团,源起首都,约4400亿国企实力,全国500强;首创城发,首创置业城市综合开发主体。
(IC PARK实景图)
③优质地段:
河西CBD,华东区仅次于上海陆家嘴第二大金融中心,河西数字经济总部聚集区商务氛围浓厚,毗邻金融城,前景可期。
(示意图)
④千亿级配套:
【商业配套】华润万象商业(在建)、IFC、华采天地、金鹰世界
【医疗配套】河西儿童医院、新城国际医院(规划)、明基医院
【景观配套】河西中央生态公园、鱼嘴湿地公园、南京眼等
【商务配套】奥体中心、博览中心、保利大剧院、双子塔、南京眼等
⑤双地铁加持:
【双地铁】地铁S3号线、7号线(在建)双轨交汇,搭乘S3号线城际出行便捷,换乘禄口机场,国内国际交通方便,满足商务差旅需求。在建地铁换乘王7号线,距项目约150m(数据来源:百度地图实测)。
【快速交通】
项目位于河西十字中轴江东路中路和江山大街交汇处,此外河西CBD高标准的规划建设起点,网格化的交通网络,交通出行便捷。
三、公寓产品
【产品类型】酒店式公寓
【户型区间】建筑面积约51㎡、约66㎡、约72㎡
(公寓效果图)
【公寓价值】
⭐毗邻建筑面积约3000㎡私享花园
⭐紧邻地铁,靠公园
⭐享约70m超阔楼间距(此间距为A1与A2楼栋间距)
⭐全玻璃幕墙立面
⭐9.6m挑空大堂(尊崇归家体验)
⭐每层设置多功能共享空间
⭐全屋品牌装修交付
⭐高科技智能化配置
⭐功能收纳体系
(效果图)
【户型赏析】
【公寓样板间实景图】
四、总部办公
(办公效果图)

(业态分布图)
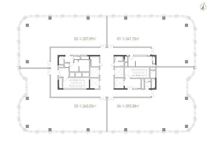
【B03办公信息】
总高约63m,共13层(1-2F商业、3-13F办公)
办公总建筑面积:约1.5万㎡
标准层建筑面积:约1400㎡
标准层分割面积:建筑面积约327㎡-约341㎡-约363㎡-约393㎡
标准层层高:约4.2m
入户大堂层高:约9.6m
幕墙结构: 框架式幕墙+中空Low-E节能玻璃
空调系统: VRV中央空调系统
新风系统: 直流式新风系统
电梯配置:3部客梯,1部消防兼货梯,2部地库转换梯
(办公效果图)
(标准层户型图)
(办公效果图)
五、活力街区
自建建筑面积约3.6万㎡活力商业街区,繁华生活氛围,以开放式的消费场景,更新都会潮流生活方式。
(商业效果图)
首创天阅公馆预约中心电话:400-000-0460转6868
首创天阅公馆预约中心电话:400-000-0460转6868
预约来电尊享内部优惠,开发商案场销售一对一热情服务,看房不收取任何费用!
Sales Office Phone: 400-000-0460 ext. 6868
Book a phone call to enjoy internal discounts, and the developer will provide one-on-one enthusiastic service for on-site sales. No fees will be charged for viewing the property!
声明:本文由入驻焦点开放平台的作者撰写,除焦点官方账号外,观点仅代表作者本人,不代表焦点立场。
