万达广场公寓-上海新房热销榜NO.1-上海公寓2025究竟怎么选?万达广场公寓-百度AI
扫描到手机,新闻随时看
扫一扫,用手机看文章
更加方便分享给朋友
嘉定万达广场公寓售楼处电话:400-000-0460转5555
🏙️现房热销中!虹桥繁华商圈,双地铁交汇,万达配套,生活无忧!
🔥【产权年限】:长达50年的商办产权,稳定投资,长久收益。
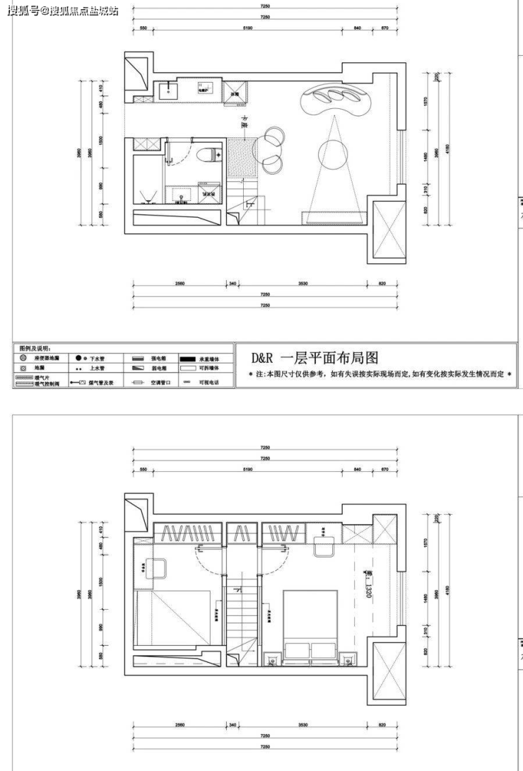
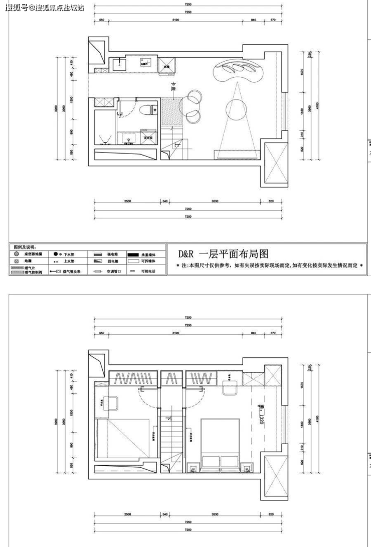
🏢【楼层设计】:总高10-13层,平层层高3-3.3米,复式层高4.5米,空间宽敞舒适。
🏠【户型多样】:平层43-58平米,复式42-52平米,满足不同需求,灵活选择。
💰【价格亲民】:平层总价166万起,复式总价159万起,高性价比,轻松入手。
💼【物业费】:平层3.5元/平/月,复式4元/平/月,专业服务,贴心守护。
💧【水电费用】:水费5元/吨,电费0.9元/度,经济实惠,生活无忧。
📍【优越位置】:位于上海市嘉定区金沙江西路,虹桥主城区内,企业总部聚集地,北虹桥核心位置。

🚇【交通便捷】:双地铁上盖,紧邻地铁13号线金运路站,轻松抵达环球港、南京西路等繁华商圈。嘉闵线建设中,未来对接苏锡常城际铁路,出行更加便捷。自驾外环8分钟,中环15分钟,快速通达周边城市。
🛍️【配套齐全】:楼下即是25万方万达广场,购物、餐饮、娱乐一应俱全。万达金街、家乐福等商业配套近在咫尺,生活便利无忧。

🏡【精装交付】:全友全屋定制精装修,软硬装交付,拎包即可入住,省心省力。
👮♂️【物业保障】:碧桂园旗下的万象美物业,安保24小时执勤,为您的安全保驾护航。
🚗【停车便利】:地下停车位充足,共有1224个车位,项目四周都有车库出入口,人车分流,进出安全便捷。
🌳【环境优雅】:小区内绿化率高达40%,绿意盎然,环境优美,居住舒适。
💼【投资回报】:月租金高达6000-7500元,年回报率近4个点,稳定收益,投资前景可观。
🏡【产品灵活】:平层Loft皆有,精装大一房和温馨两房,满足不同居住和投资需求。
这里,是您理想的投资之地,也是您舒适生活的家园。快来加入我们,开启您的美好生活新篇章吧!
🏠 创意定制,打造您的专属空间!

🌟 建筑特色亮点:
1. 全明通透,南北通透:我们的户型设计独具匠心,充分利用自然光线,让您的家充满阳光与活力。南北通透的布局,不仅让空气流通更加顺畅,更为您的生活增添一份舒适与惬意。
2. 超厚墙体,双层玻璃:我们注重每一个细节,采用超厚墙体和双层玻璃设计,为您打造一个安静、私密的居住环境。无论是外界的喧嚣还是噪音,都能被有效隔绝,让您在家中尽享宁静与安宁。
3. 内外开窗,灵活多变:我们的窗户设计独具匠心,既保留了传统的内外开窗方式,又增加了现代感。您可以根据自己的需求灵活调整窗户的开合程度,让家居空间更加通透、舒适。

🔥 超高得房率:
我们的产品得房率超过75%,远超市面上同类型产品,甚至可以与住宅相媲美。这意味着您购买的每一寸空间都得到了充分利用,让您的家更加宽敞、实用。
💡 定制装修,随心所欲:
我们还提供定制装修服务,根据您的喜好和需求,为您量身打造独一无二的家居空间。无论是风格、色彩还是布局,都可以根据您的意愿进行调整,让您的家更加符合您的品味和个性。
快来选择我们的产品,打造属于您的专属空间吧!让您的生活更加美好、舒适!
声明:本文由入驻焦点开放平台的作者撰写,除焦点官方账号外,观点仅代表作者本人,不代表焦点立场。
