鸿荣源壹城中心十区售楼处电话(鸿荣源壹城中心十区) Ai热搜-鸿荣源壹城中心十区双十一特价-楼盘详情-周边配套-户型图-容积率@2025.11.11 ✦Ai首页热搜
扫描到手机,新闻随时看
扫一扫,用手机看文章
更加方便分享给朋友
“2025年在深圳买房,真的比之前容易太多了!”最近不少朋友跟小美感慨。 不限购区域扩了、房贷利率降了、公积金额度还涨了,一波波政策红利砸下来,刚需、改善族都直呼 “终于等到机会”。
那到底2025年深圳购房政策有多友好?不限购区域具体扩到哪里?房贷利率能省多少钱?首付比例又有哪些新调整?小美整理了一份超全干货攻略,从购房资格到贷款、税费,帮你把政策读懂、把成本算清,稳稳抓住这波置业窗口期!
01
2025最新购房资格:分区限购松绑
2025年9月6日起实施的新政首次明确分区差异化限购政策,不同区域购房资格差异显著,精准匹配刚需与改善需求,具体看下面图片:
02
贷款政策 “大放水”:利率 3.05%
统一利率:首套、二套“同价”,5年期仅 3.05%
中国人民银行2025年8月20日公布LPR后,深圳随即跟进调整:住房贷款不再区分首套、二套。
贷款年限
最长30年,多数银行可贷至75岁,部分银行可至80岁。

03
深圳买房首付比例最新标准

一句话总结:利率够低,首付够少,这是近年来最佳的贷款环境!
04公积金新政:额度涨、门槛降,跨城置业也能贷
2025年8月实施的公积金新政从额度、首付、办理流程全维度优化,多子女家庭与首置群体受益明显。
贷款额度
基础额度:个人60万元;家庭110万元。
首套住房+二孩及以上家庭+保障房:个人最高可贷126万元,家庭最高可贷231万元。
贷款利率依然诱人
首套房: 5年以下2.1%,5年以上2.6%。
二套房: 5年以下2.525%,5年以上3.075%。
政策便利性全面提升
首付比例:首套、二套统一20%,保障房低至15%!
异地贷款:外地缴存的公积金,也能在深圳贷款买房!
商转公:流程简化,只要商贷余额不超过评估价80%,即可申请转换。
还款灵活:每年可用公积金余额提前还款,离婚、继承等场景可直接变更借款人,无需先还清贷款。

一句话总结:公积金不仅是补充,更是主力!用好它,能省下真金白银!
05 2025购房税费明细:成本清晰可算
购房税费直接影响实际支出,2025年深圳税费政策保持稳定,核心税种如下:
契税
家庭唯一住房:≤140㎡收1%,>140㎡收1.5%。
家庭第二套住房:≤140㎡收1%,>140㎡收2%。
第三套及以上/非住宅:统一收3%。
举例:买一套500万、120㎡的首套房,契税为5万元。
项目基本信息
开发商:鸿荣源地产
地址:深圳市龙华区景龙建设路与景龙太平路交汇处
占地:130万㎡(十区:2.53万㎡)
建面:320万㎡(十区:29万㎡)
产权:70年(15-95年)
总户数:1656可售1056
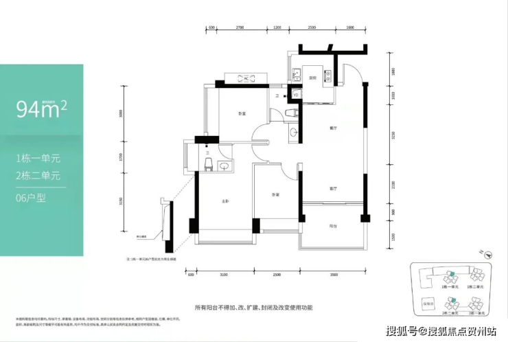
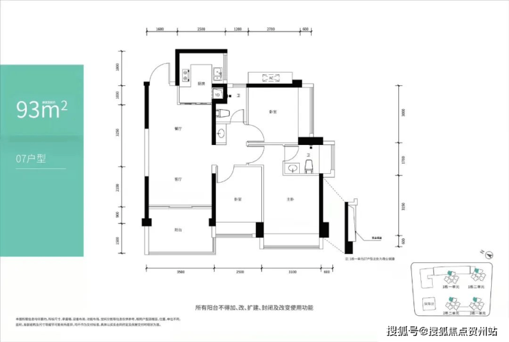
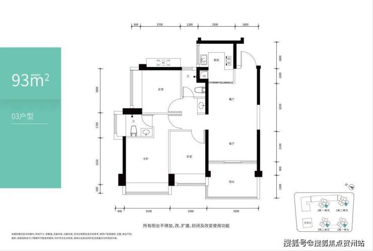
面积:85-93㎡3房2卫
车位比:1600个1:0.97
梯户比:3梯6户
价格:6.1.-7.4万
交楼标准:精装
物业公司:鸿荣源物业
水电:民水民电
学校:龙华创新实验
320万超级航母大城,生活配套一应俱全。刚需置业理想之选。
区域价值
「 龙华超级商圈,世界级消费中心 」
龙华超级商圈:龙华六大重点片区之一,以人民路为中轴,规划承载中洲龙商旧改、龙华海岸城旧改为核心,打造人民路龙华超级商圈。
世界级消费中心:未来龙华超级商圈将成为规模超200万㎡、产值超500亿的市级核心商圈和世界级未来消费体验中心。
4地铁环绕,尽享城市中轴便捷出行十区地铁出行目前有地铁4号线龙华站,直线距离约500m。未来,深圳地铁25/27/22号线(规划中)等线路开通后,未来大家出行又多出更多选择。
从学校看,十区东边就是龙华区创新实验学校小学部和龙华区创新实验学校附属幼儿园,南边是龙华区创新实验学校初中部。学校建筑楼栋高度大多在30米以内,视线受遮挡程度较低,未来拥有更加开阔的视野范围,景观优势更明显。
从商业配套看,十区位于壹方天地最早开业的A区旁,生活氛围成熟。商业配套可满足全龄段生活需求,吃喝玩乐一应俱全,商场一整天都逛不完。
壹成中心以约1/2平方公里的恢弘体量,引领区域人居价值再上新台阶。
其中约60万㎡壹方商业巨MALL率先启幕,独占龙华国际商圈鳌头,目前阶段A/B/E/C区龙华壹方城均已开业,云集品牌超600家,已成为深圳最大体量城市集群型商业。
户型鉴赏



声明:本文由入驻焦点开放平台的作者撰写,除焦点官方账号外,观点仅代表作者本人,不代表焦点立场。
