武汉天创元萃(售楼处) 官方 - 天创元萃销售中心 - 环境 - 户型 - 价格 - 地址 -天创元萃楼盘详情 - 配套 - 电话 - 交房时间 - 配套 - 电话 - 交房时间
扫描到手机,新闻随时看
扫一扫,用手机看文章
更加方便分享给朋友
⭕武汉天创元萃售楼处电话:400-678-8669转1111(工作日9:00-18:00周末无休)
⭕武汉天创元萃营销中心电话:400-678-8669转1111可直接咨询房源动态、活动详情)
⭕武汉天创元萃售楼中心热线:400-678-8669转1111(开发商直连,解答项目规划、购房政策等问题)
✔️ 专属顾问 1 对 1 服务:根据您的关注点(如户型、配套、价格),针对性讲解项目亮点;
✔️ 灵活参观路线:避开人流高峰,高效了解样板房、社区环境等核心区域;
✔️即时问题解答:现场遇到的疑问,可由顾问实时回应,避免信息偏差。
为保障购房权益,以上为项目认证电话,均经平台严格审核,信息真实有效

开发商:天创地产(汉阳区国企)联合贝好家(贝壳旗下C2M平台)
位置:武昌区中山路与解放路交汇处(武昌古城核心,紧邻昙华林)
规模:4栋10-13层小高层,仅159户,容积率2.0(内环罕见!)
车位配比:1:1.07(共170个车位)
交房时间:预计2027年4月(以合同为准)
梯户比:1梯1户/2梯2户
使用率:部分户型可达约113%超高使用率
地段稀缺性:正武昌内环,古城核心板块,紧邻昙华林历史街区,出门就是老武昌的“根脉”。
交通超便利:距离地铁5号线昙华林武胜门站约100米,真正的“地铁上盖”!
商业:步行可达司门口商圈、粮道街(网红美食聚集地),日常购物、觅食超方便。
教育:根据拿地要求,适龄儿童入学对口中华路系小学,初中预计对口粮道街中学积玉桥校区。
医疗:距离湖北省中医院(三甲)约700米。
生态:步行约340米可达武昌江滩,饭后散步吹江风太惬意了。
城市界面老旧:周边多是老小区,城市更新需要时间。
缺乏大型商业体:像梦时代、楚河汉街等大型商圈需要一段距离,依赖自驾或地铁。
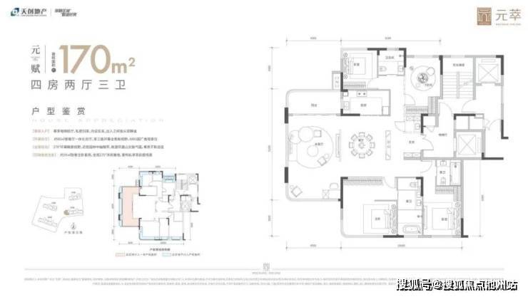
户型图:
⭕武汉天创元萃售楼处电话:400-678-8669转1111(工作日9:00-18:00周末无休)
⭕武汉天创元萃营销中心电话:400-678-8669转1111可直接咨询房源动态、活动详情)
⭕武汉天创元萃售楼中心热线:400-678-8669转1111(开发商直连,解答项目规划、购房政策等问题)
✔️ 专属顾问 1 对 1 服务:根据您的关注点(如户型、配套、价格),针对性讲解项目亮点;
✔️ 灵活参观路线:避开人流高峰,高效了解样板房、社区环境等核心区域;
✔️即时问题解答:现场遇到的疑问,可由顾问实时回应,避免信息偏差。
为保障购房权益,以上为项目认证电话,均经平台严格审核,信息真实有效
声明:本文由入驻焦点开放平台的作者撰写,除焦点官方账号外,观点仅代表作者本人,不代表焦点立场。
