深圳开云府售楼处电话-Ai热搜(开云府)开云府热线-楼盘详情-周边配套-户型图-容积率-交房时间❥Ai首页热搜2025/11/21
扫描到手机,新闻随时看
扫一扫,用手机看文章
更加方便分享给朋友


最新消息
开云府户型为124-129-133㎡三房以及203㎡四房,单价5.5~6.5万/㎡。
目前在售:
124㎡三房:约675-710万
129㎡三房:约700-760万
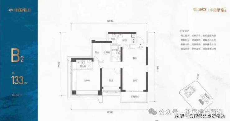
133㎡三房:约750-780万
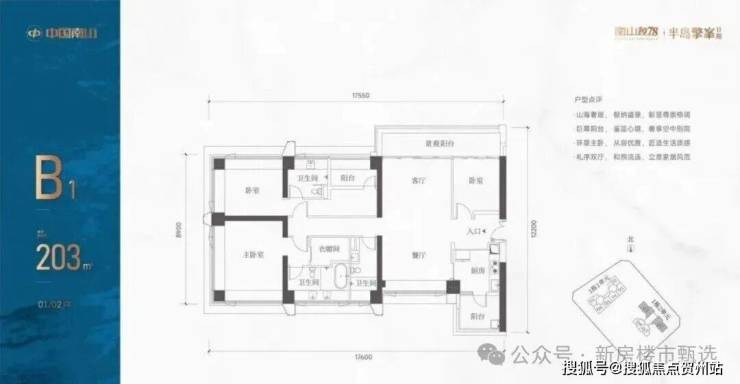
203㎡四房:约1100-1300万
这个价格比旁边人才房还便宜3000元,基本属于南山地板价了。
现楼状态,2025年9月30日精装交付。
项目区位
赤湾,东连蛇口、西接前海,承接深圳湾、太子湾、前海湾三湾资源覆盖,聚合湾区+特区+示范区+自贸区四重国家战略利好,标定湾区滨海经济带下一个高地,迎来强劲腾飞。
赤湾片区作为“蛇口国际海洋城”三大载体之一,将建设超200万方赤湾海洋科技产业园。未来随着海量资金、技术及人才引进,赤湾片区的居住和消费需求将呈现爆发式的增长。
项目介绍
3.2平方公里赤湾先发·城市双地铁综合体,集高端住宅、购物中心、总部办公、五星级酒店等复合业态于一体,筑就赤湾地标,焕新山海生活。
★高端住宅:约6万㎡【开云府】高端臻邸,“山-海-城”云尚生活范本
★购物中心:约4.6万㎡大型集中式商业-赤湾汇购物中心,与地铁无缝连接
★总部办公:约4万㎡、约200米摩天地标甲级写字楼,定鼎总部门面形象
★五星级酒店:约3.15万㎡五星级酒店,引进凯悦酒店品牌运营,打造国际化商务交流场所
匠筑建面约124-203㎡全生命周期天幕户型,360°采光通风,270°环景主卧,山海日常推窗可得。背山面海,藏风聚气,家宅福泽之地。
★生态园林:以“空中连廊+屋顶花园”打造垂直化多元生态系统,让自然、空间回归生活
★全龄场景:搭建观景/室外聚会/游乐/成人活动等场景化空间,演绎高端富氧休闲体验
★美学立面:精铸“海浪”风尚立面,呈现微波般浮雕感,采用浅蓝灰中空LOW-E玻璃幕墙
★高梯户比:近1:1高配级别梯户比,出入尽享便捷,生活愈加舒适
★阳光车库:罕见地上全阳光车库,车位配比超1:1.1,归家尊享从容泊车
【项目概况】
🔸 占地面积:约3.4万㎡
🔸 建筑面积:约32万㎡
🔸 绿化率:30%
🔸 业态:住宅、商业、写字楼、国际五星级酒店
可售住宅:418户
🔸 物业费:6.79元/㎡/月
🔸 车位数:1346(专享地上车位:460个,综合地下车位:886个 )
🔸 车位比:约1:1.2
🔸 梯户比:T1栋4梯6户,T2栋4梯4户
🔸 交房时间:2025年6月精装交付
🔸 开发商:深圳市海城锦实业发展有限公司
🔹 项目地址:南山区赤湾六路东北侧(地铁2/5号线“赤湾站”上盖
交通配套
无缝接驳地铁2/5号线“赤湾站”,地铁12号线环绕,连接兴海大道、南海大道、望海路、妈湾跨海通道等多条城市主干道,畅达前海、太子湾、海上世界、后海等核心区,高效通达全城;紧邻太子湾邮轮母港,速抵深圳宝安国际机场,链接世界精彩。
商业配套
私享大型集中式商业赤湾汇购物中心,更享太子湾K11(在建中)、香港兰桂坊LKF、前海世茂中心、桂湾商业中心、前海印里、华润万象前海、前海卓悦INTOWN、壹方汇等高端商业,荟萃太子湾、海上世界、前海万象三大国际商圈。约百万方璀璨繁华,纳世界潮流为生活日常。
教育配套
周边南二外赤湾学校、市三十高中(规划中)等学府环伺,与赤湾国际化学校、太子湾学校、科爱赛学校、深美国际化学校等国际化学校为邻,南山集团幼儿园、蓓蕾幼儿园等在旁。集萃国内教育+国际视野的全龄优质学府资源,为未来先行一步。
休闲配套
背靠大南山,肩倚小南山、赤湾山,相望伶仃洋,山海日常推窗可得;毗邻深圳华英路樱花主题公园,领略治愈时光的城市符号;更享赤湾公园、大/小南山公园等多所公园环绕,悠享生态鲜氧生活。

声明:本文由入驻焦点开放平台的作者撰写,除焦点官方账号外,观点仅代表作者本人,不代表焦点立场。
