90后夫妻100平复古风婚房,弧形元素甜蜜升级
扫描到手机,新闻随时看
扫一扫,用手机看文章
更加方便分享给朋友
本案业主是一对小夫妻,女业主是一位孕妈,男业主平时爱打打篮球,他们还养了一只可爱的柯基。他们对生活品质要求很高,俩人审美也很在线,对装修很有自己的想法。跟着岳阳美迪装饰小编一起看看他们的婚房吧~
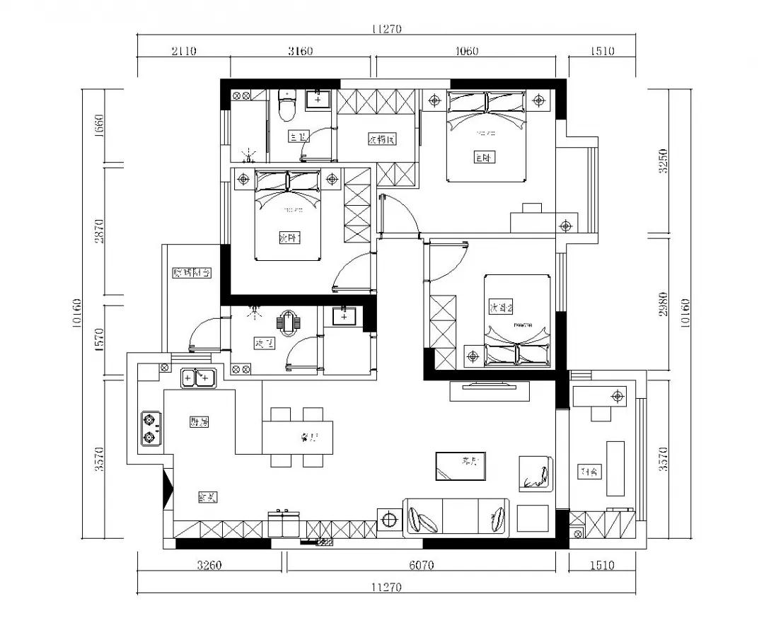
格,并希望有充足的收纳空间和完善的居住功能。来看看岳阳美迪装饰设计师是怎么打造这个复古美家的吧~户型面积:100㎡设计风格:复古美式风01
复古韵味的客厅
充满浓厚的底蕴感
满满的北欧复古风,整体充满韵味和质感。
大胆碰撞时髦的复古绿墙面搭配黄调沙发,高级、耐看、有个性。电视背景的大量留白,更显明亮通透。鞋柜跟酒柜一体的设计优质地把冰箱并为一体,整个客厅复古又拥有质感。
过道门洞做了弧形处理,给人一种异域风情,又适当地为走道两边的区域增添了一丝隐秘感。
阳台和客厅融为一体既增加室内空气的流通,又实现了视野开阔,让生活更加惬意,洗衣机跟烘干机一体的设计更符合年轻人对于便利的要求。02
厨房餐厅合二为一
有仪式感的就餐环境
木色搭配白色,简约中又透出高级感。
餐厨一体化设计把吧台的仪式感和收纳功能优质的结合,满足了业主功能需求的同时还打造了一个极具格调的就餐环境。03
有格调的卧室
透露出来的尽是甜蜜
颜色搭配复古且耐看,功能性极强。
卧室沿用了客厅的复古绿+棕色的较佳搭配,雅致又不高冷,由情调生发出的温度不仅让空间成为经典的存在,还会显露出好品味。
一进门便能看到业主的婚纱照,整个屋子都散发着甜蜜,最幸福的模样大概就是这样吧~
美式元素的砖搭配大规格的扣板,让卫生间不那么普通,每个地方都是业主喜欢的样子。
原始户型是标准的3房2卫的户型,餐厅和客厅的空间布局没有特色。岳阳美迪装饰设计师改造成了开放式的餐厨一体的空间,生活阳台也直接并入客厅,整个餐厨、客厅一线,是业主想要的感觉。
从软装上,每件单品都是精心挑选,还原业主对复古小屋所有的想象,复古挂画,蕾丝纱帘,复古灯具等一些生活气息的小物件,凑成了一个温馨的家。
声明:本文由入驻焦点开放平台的作者撰写,除焦点官方账号外,观点仅代表作者本人,不代表焦点立场。
