中福·未来星宸售楼处电话(杭州中福·未来星宸)2025详情-最新房价-户型配套-容积率
扫描到手机,新闻随时看
扫一扫,用手机看文章
更加方便分享给朋友
杭州【中福·未来星宸】
中福未来星宸售楼处𝙑𝙄𝙋📞400-000-5503转接8888✓✓✓
温馨提示:(来访提前一个小时预约)—欢迎电话咨询【售楼处电话】!
[Marketing Center]-(Make an appointment one hour in advance for the visit)-Welcome to telephone consultation!
我们将安排一对一的专业服务(★)邀您品鉴!
We will arrange one-on-one professional service (★) to invite you to taste!
中福未来星宸售楼处𝙑𝙄𝙋📞400-000-5503转接8888✓✓✓
【中福·未来星宸】
<甲级独栋总部办公>
-FUTERE-START-
未来科技城·永福地铁TOD多元商业综合体
稀缺4.79米层高·难得现房写字楼
中福未来星宸售楼处𝙑𝙄𝙋📞400-000-5503转接8888✓✓✓
【5#楼独栋企业总部办公】概况
【整栋面积】12950.25方
【单层面积】约1250 方
【产 品】甲级写字楼
【产 权】40年产权
【层 数】9层
【标准层】约4.79米
【物业公司】中宙物业
【梯户比】4梯4户
【交付时间】2023年8月
【外立面】玻璃幕墙+铝板
中福未来星宸售楼处𝙑𝙄𝙋📞400-000-5503转接8888✓✓✓
【区域价值】
未来科技城核心 与世界巨头为邻
项目位于杭州“第三中心”——未来科技城核心,为地铁5号线永福站地铁上盖综合体项目,北临余杭塘路,南临联创街,西临聚橙路,东临新桥路。未来科技城作为新进的“杭州第三中心”,比肩武林和钱江新城的新中心。这里不仅是杭州城西科创大走廊产业聚集的创新极核,更是杭州高净值人群及独角兽企业的聚集地,是杭州走向世界的时代引擎。
中福未来星宸售楼处𝙑𝙄𝙋📞400-000-5503转接8888✓✓✓
项目南面约800米为阿里巴巴集团全球总部,西侧约3km为欧美金融城,板块内聚集了像菜鸟网络、字节跳动、水晶光电、 OPPO等众多独角兽企业和全球巨头总部。大量龙头企业的涌入以及创新资源的有效集聚,使得板块内拥有着超强的产业规模和聚焦度。
【项目价值】
未来新主场:多元TOD综合体项目
项目北面紧邻余杭塘路,与永福地铁出口DEF零距离,是唯一同时拥有3个地铁出入口的写字楼项目,不管对于员工上下班还是商务出行,都将拥有极大的出行便利;项目总建筑面积约142715㎡,地上地下整体规划,综合开发,以“总部、生态、连接”三大设计理念,打造成一个集商务、商业、文化、教育、娱乐、餐饮等于一体的多元TOD综合体项目。涵盖了科创文创产业创新区、Block体验式精品街区、时尚生活邻里中心、潮趣生活景观广场。
中福未来星宸售楼处𝙑𝙄𝙋📞400-000-5503转接8888✓✓✓
稀缺4.79米准现房写字楼
产品拥有约4.79米稀缺奢阔层高,突破式的层高设计,使得装修风格可更加灵活多变,大气恢弘的立体空间,是企业形象气质达到更高一层领域的表现。约4.79米层高还可做隔层设计,打造成为您企业的展示空间、仓储空间、休憩空间等、实现多重办公可能。同时项目还拥有极致的户型设计,方正的户型、无柱设计,都将带来更高的空间利用率,使企业轻松分割布局随心设计,不浪费每一寸空间。
中福未来星宸售楼处𝙑𝙄𝙋📞400-000-5503转接8888✓✓✓
【独栋总部办公亮点】
『独栋专属冠名权』:5#楼独栋总部办公享专属冠名权,且所处余杭塘路昭示性强,为企业定制专属尊崇。不仅是一方办公用地,更是企业形象、实力的第一展示台;
中福未来星宸售楼处𝙑𝙄𝙋📞400-000-5503转接8888✓✓✓
『专属形象与独立空间打造』:5#楼独栋总部办公一楼可定制化打造企业大堂及第一展示面,提升企业形象 ;标准层约4.79 米的挑高空间,根据每一个企业的个性化需求。员工区域、会议区域、独立总裁室、休闲空间等企业各个功能空间的独立设计,功能分布明确且不影响协同作战, 实现零时差功能设置;
『现房 2023年8月交付』:“现”象已成,价值眼见为实。项目虽然准现房,但是基本已经实景呈现,可以规避了不能准时交付的风险,同时也缩短了物业从购置到使用的周期,所见即所得,省去等待时间,更符合成本核算原理,使企业利益最大化 。
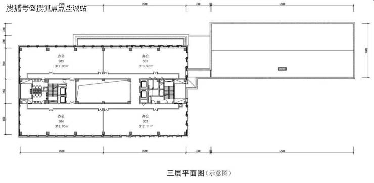
【独栋5号楼标准层示意图】
杭州【中福·未来星宸】
中福未来星宸售楼处𝙑𝙄𝙋📞400-000-5503转接8888✓✓✓
温馨提示:(来访提前一个小时预约)—欢迎电话咨询【售楼处电话】!
[Marketing Center]-(Make an appointment one hour in advance for the visit)-Welcome to telephone consultation!
我们将安排一对一的专业服务(★)邀您品鉴!
We will arrange one-on-one professional service (★) to invite you to taste!
声明:本文由入驻焦点开放平台的作者撰写,除焦点官方账号外,观点仅代表作者本人,不代表焦点立场。
