深业世纪山谷(售楼处)深业世纪山谷首页网站→深业世纪山谷营销中心→售楼处电话→售楼中心电话→24小时热线电话@深业世纪山谷售楼处
扫描到手机,新闻随时看
扫一扫,用手机看文章
更加方便分享给朋友
4000689978
由千亿国企“深业”严苛择址,屹立深湾中轴,融于华侨城贵胄之地,揽纳果岭盛境,融贯大沙河、深圳湾巨幅景观,规划约1.2万m²流动绿洲,雄踞寸土寸金的城市核心宜居之地。携手华阳国际、CCD香港郑中、杜康生等世界知名设计团队倾力匠造。
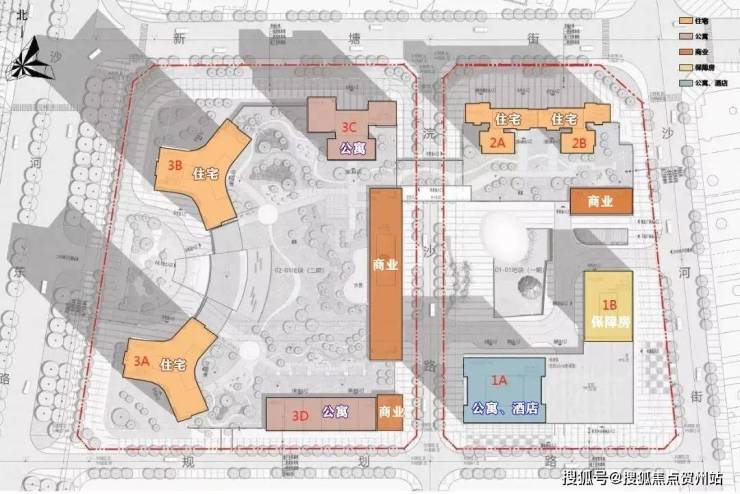
——项目整体总占地面积4.21万m²,总建筑面积38.92万m²。
——建面约200m²起步的大平层住宅社区,席席珍贵,一席难求。
——3.5米层高 | 8梯3户专梯入户 | 高尔夫头排 | 深圳湾海景
——3大总部基地拱卫
——3大5A景区环抱
——4横3纵6轨全线系统交通
——5大文化艺术配套
——6大高端商圈环伺
——“金钥匙”服务体系标准,360°金牌管家服务
一、项目概况
地理位置:深圳市南山区沙河东路218号,毗邻大沙河生态长廊及名商高尔夫球场,周边环绕华侨城、白石洲等成熟社区
开发商:深业沙河世纪山谷(深圳)投资有限公司,隶属深业集团(深圳市国资委直管国有企业)
占地面积:约4.2万㎡,总建筑面积约39万㎡,容积率5.78,绿化率35%

物业类型:涵盖天际住宅、高端公寓、下沉式商业街等业态
二、产品信息
住宅产品:
户型面积:240㎡、280㎡(3-4房)、380㎡(4+1房),梯户比为8梯3户,部分户型配备独立电梯
楼层与高度:二期住宅建筑高度超247米(69层),楼间距近百米
公寓产品:面积段67-193㎡,折后单价6.1万元/㎡起,总价480-1350万元
交房时间:一期于2023年12月交付,二期住宅预计2026年12月交付
三、价格动态
住宅均价:约8.98万元/㎡(2024年12月报价),总价区间578-3327万元/套
公寓折扣:备案均价8.3万元/㎡,折后单价6.1万元/㎡起(2025年4月信息)
四、配套资源
交通:地铁1号线白石洲站(约149米),五轨环绕;快速路网连接京港澳高速、深南大道等主干道

商业:3km内享华润万象天地、益田假日广场等综合体,未来白石洲旧改将新增商业配套
教育:沙河小学(九年制公立)、南山区第二实验学校初中部等
医疗:深圳华侨城医院、香港大学深圳医院(三甲)
生态:紧邻大沙河生态长廊、深圳湾公园,及名商高尔夫景观

深业世纪山谷·世家产品为纯粹大面积阔宅,包括建面约233/280/386㎡大平层、420-1080㎡云端复式,不俗的总价门槛为业主圈层做了初步筛选。

▲效果图:
附带深圳购房资格:




深圳提高住房公积金贷款额度最高额度提高至231万元
财联社3月16日讯,深圳市住房公积金管理委员会3月16日发布《关于〈深圳市住房公积金贷款管理规定〉的补充规定》《关于我市住房公积金利息补贴有关事项的通知》两项文件,两项文件自2025年3月24日起开始实施。
一是调整最高(基础)额度:个人申请最高额度从50万元提高至60万元;家庭申请最高额度从90万元提高至110万元。
二是调整最高额度上浮情形和比例:购买本市首套住房上浮比例从20%提高至40%。多子女家庭购房上浮比例从10%提高至50%。该政策适用于有两个及以上子女的家庭,未成年和成年子女均计算在内。全国范围内有公积金贷款记录的成年子女不计入。新增购买本市保障性住房上浮情形,上浮比例为20%。
同时符合多种上浮情形可累加上浮比例,最高上浮110%,即个人最高可贷126万元,家庭最高可贷231万元。按照往年数据,首套房上浮政策可覆盖90%以上贷款申请职工。
可贷额度提高至账户余额16倍
在前期意见征集阶段,有近10%的意见涉及提高住房公积金可贷额度的账户余额倍数。
为切实回应群众诉求,并充分考量我市住房公积金资金流动性状况,文件将住房公积金贷款可贷额度从原本账户余额的14倍提高至16倍,同时不超过上述最高额度。
可贷额度还需要结合职工的还款能力、还款期限等因素综合计算,最终额度以审批结果为准。
此项调整将进一步保障中低收入家庭、工作年限较短的青年人等住房公积金账户余额相对较少的职工群体,助力他们更多、更快获得住房公积金贷款。
调整最低首付款比例
为充分满足职工刚性和多样化改善性住房需求,重点支持职工购买保障性住房,文件明确,调整我市住房公积金贷款最低首付款比例。
声明:本文由入驻焦点开放平台的作者撰写,除焦点官方账号外,观点仅代表作者本人,不代表焦点立场。
