鸿荣源珈誉玖玺售楼处→鸿荣源珈誉玖玺营销中心→鸿荣源珈誉玖玺电话→(鸿荣源珈誉玖玺售楼处)→最新售楼中心电话2025-07-29 18:00
扫描到手机,新闻随时看
扫一扫,用手机看文章
更加方便分享给朋友
鸿荣源·珈誉府·珈誉玖玺
【世界湾 约248万㎡超能城宇宙】
宝安沙井【鸿荣源珈誉玖玺】小户型加推!79-126平绝版户型
这次加推的新品均是爆款!有珈誉府绝版的97㎡横厅三房、有豪宅才享受的全视角园景的84㎡实用三房、还有性价比超高的75㎡南向精品三房。无论是景观朝向、还是户型设计,都是爆款中的爆款!
建面约75-97㎡全能3房 新品上新!!!
建面约122-199㎡臻奢4房 火爆销售中!
——世界湾轴心 为城市珈冕——
三大国家战略叠加,鼎定中心
11号线直连,6站约22min到宝中
(时间来源:深圳地铁官方网站乘车指引)
三大千亿产业,跃升区域发展
头部房企抢滩,焕新城市想象
毗邻深外名校,天赋一生优越
——超能城宇宙 为生活珈誉——
鸿荣源所在,必树标杆
约248万㎡恢弘钜作,献礼时代
约50万㎡旗舰商业,再造一座壹方城
“誉”系精工,奢藏级都会园境
中国物业服务百强,领航高端服务
鸿荣源珈誉府总建面约248万㎡,其中住宅面积70万㎡,商业面积30万㎡,分为8个地块进行开发,是鸿荣源集团全新开发的地标级综合体大盘,涵盖高端住宅、商业办公、星级酒店、优质教育、大型购物中心等业态。【鸿荣源·超能城宇宙首发之作·珈誉府1区】
传承“誉”系产品精工,公园式纯居社区
【占地面积】:约4.31万㎡
【建筑面积】:约35.45万㎡
【园林面积】:约3万㎡
【户型产品】:建面约76-181㎡3-5房
【产权年限】:70年(2022.5-2092.5)
【项目地址】:深圳·宝安·11号线塘尾站
【世界湾轴心,为城市珈冕】
【三大国家战略规划叠加,鼎定中心】
定中心:汇集三大国家战略规划,湾区价值荣耀绽放,奠定中心地位!
誉未来:机场东商务总部、新桥东先进制造产业基地,西部城市中心多核叠加,誉满未来!
【三大千亿产业,跃升区域发展】
兑现中心价值,成就世界湾芯
会展/海洋/文旅3大千亿级产业加持
科创总部汇集,凸显中心价值
立新湖科创总部,吸引高端人群
【六维立体交通,便捷湾区出行】
地铁:无缝连接11号线塘尾站,6站到宝中(22min),7站到前海(25min),9站到后海、11站到车公庙,便捷到达南山、福田
11号线通勤时间来源于深圳地铁官方网站乘车指引
规划中30号线,预计将经过项目,西部再添轨道主动脉
30号线的具体规划来源于:深圳市规划和自然资源局公布的《深圳市轨道交通线网规划(2016-2030)规划方案》
4站直达机场东综合枢纽(规划中):大型“空铁联运”的综合交通枢纽,集国际航空、高铁(深茂铁路-在建中)、城际铁路(穗莞深城际-在建中)、地铁(1号线、12号线)、公交等多种交通方式于一体
7站即达前海交通枢纽(在建中):是亚洲第一、世界第四大地下交通枢纽换乘站,预计日客流量达到75万人次
【头部房企抢滩,焕新城市想象】
众多知名发展商入驻,区域城市更新整体规模超过1000万㎡
鸿荣源珈誉府属于净地开发,地块更大更完整,更纯粹,兑现速度更快
区域蝶变,一座世界级城市中心正在崛起
【毗邻深外名校,天赋一生优越】
深圳外国语学校(集团)宝安学校,广东省一级学校
宝安区委区政府首次引进的深圳“四大名校”
文字来源:深圳外国语学校(集团)官网
(图片来源于网络,本项目不做学位承诺,有关学区划分、入学政策等教育规划均以当地教育主管部门的公示文件为准。)
【超能城宇宙,为生活珈誉】
【鸿荣源所在,必树标杆】
鸿荣源,城市地标缔造者,与城市共荣
汇集鸿荣源32年匠心精铸,传承“誉”系精工品质,携超能标杆钜作,献礼湾区
鸿荣源32年稳健发展、布局大湾区,累计综合开发建筑面积超过1000万㎡
2015年至今,地产开发销售额累计逾1000亿,累计服务客户逾4万户
打造了前海鸿荣源中心、壹方玖誉、壹成中心、香蜜湖熙园等标杆项目
【超体量城宇宙,再造标杆大城】
建面约248万㎡城宇宙,鸿荣源礼献湾区,缔造城市地标
以“定中心、誉未来”为打造理念的城市级的恢弘钜作
集“誉”系高端住宅、约50万㎡城市级购物中心、总部办公、高端酒店于一体
【再造一座“壹方城”,顶级全能配套】
鸿荣源斥资约250亿打造的又一城市地标级“壹方城”
全国规模最大的“50万㎡全业态重奢奥莱”,由鸿荣源前海壹方城运营团队原班人马运营
相比于前海壹方城规模更大,业态更丰富,体验更高端,影响力更大
商业定中心,万千繁华尽在掌握
【“誉”系精工匠造,八重都会园境】
秉承“誉”系品质,打造“星空花园”主题大园林
约3万㎡围合式园林,约等于4.2个标准足球场大小,绕小区园林跑步一圈都有约1公里
源于梵高《星月夜》为灵感的“八重都会园境”,让您和公园只有一部电梯的距离
配备全龄泳池,两大儿童主题空间,构建全龄景观配套
【中国物业服务百强,领航高端服务】
国家物业管理一级资质企业、深圳市物业管理行业协会副会长单位
致力于做中国高端物业专属服务的先行者,实现客户对美好生活的向往
中国物业服务品牌100强,粤港澳大湾区物业服务综合实力50强
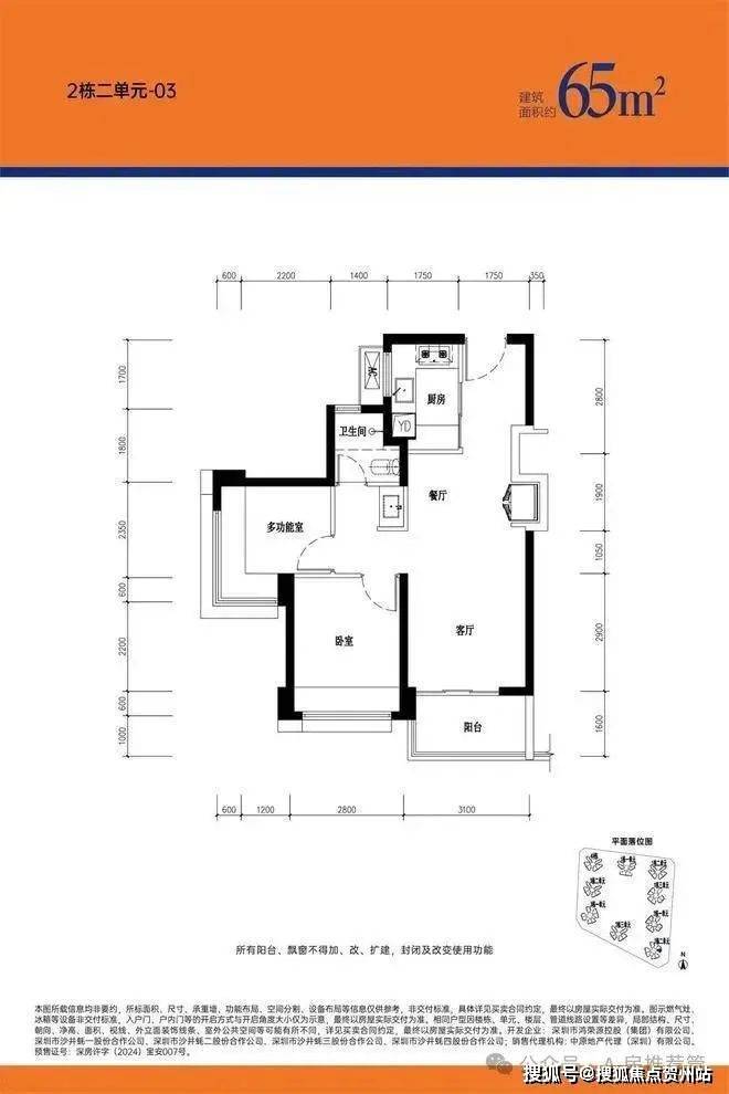
户 型 图
免责声明:本文如无意中侵犯了某方的知识产权告知即删,部分内容图片可能来源于网络,无法核实其真实出处,如涉及侵权请联系本网站删除!!!
声明:本文由入驻焦点开放平台的作者撰写,除焦点官方账号外,观点仅代表作者本人,不代表焦点立场。
