广州华润天河润府售楼处(华润天河润府)首页网站-华润天河润府营销中心欢迎您-楼盘详情-最新价格-户型图-容积率@2026.03.28售楼处AI热搜
扫描到手机,新闻随时看
扫一扫,用手机看文章
更加方便分享给朋友
⭕【华润天河润府售楼处&营销中心@诚邀雅鉴】
⭕华润天河润府售楼处电话: 400-850-8831☎☎开发商已认证
⭕华润天河润府营销中心电话: 400-850-8831☎☎营销中心已认证
⭕华润天河润府售楼中心电话: 400-850-8831☎☎24小时预约热线
➢ ➢本项目采用预约制,过来营销中心参观样板间请记得提前拨打开发商楼盘售楼处400热线电话在线预约,感谢您的配合!

【项目名称】华润置地天河项目
【地址】广州天河岐山(吉山仓)路广园快速路以北,岐山路以西,珠江花城以南。
【开发商】华润置地
【占地面积】111483.88㎡
【建筑面积】197338㎡
【建筑控高】100米,32层
【楼栋总数】共14栋楼,其中12栋住宅,其中北地块4栋,南地块8栋。
【容积率】3.68
【在售面积】80~130m²加推二期10栋92-115-130㎡3+1至5房
【交楼时间】2025年12月
⭕华润天河润府售楼处电话: 400-850-8831☎☎开发商已认证
⭕华润天河润府营销中心电话: 400-850-8831☎☎营销中心已认证
⭕华润天河润府售楼中心电话: 400-850-8831☎☎24小时预约热线
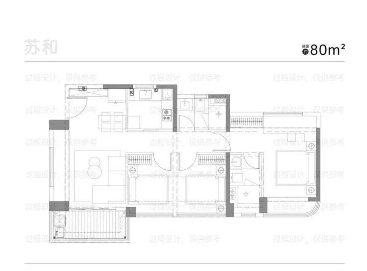
一眼看户型图:全明屋,采光面很足,阳台、餐客厅、卧室都有较大的开窗率。
厨房和公卫等公共空间和卧室都被走廊隔开,比较科学,能减少噪音影响。
进门直接面向餐厅和厨房,私密性略打折扣,但后期可用软装调整,厨房为推拉门设计,有中岛,餐厨空间相对开阔。
客厅设置凹面墙,甚至还增加了一面窗,主套间入门可设置一整面的墙柜,更设置了两扇窗户,其中一扇还是L型的,保证采光。
约87平的三房户型,整体会比80平的户型略优一些。
毕竟它把厨房、公卫、主卫等空间分布在房子的一侧,另一侧设置了卧室,即休息用的空间,整个动静空间做了更细的规划,这样,噪音的影响会更小一些。
此外,我们也分析一下一些设计亮点。
进门左侧有一个空间,看起来可以放置柜体,另一侧可以做连片的墙柜,增加储物空间,竖厅设计,比较通透,卧室同样有两扇窗,还有270度的采光。
约112平的四房A户型,整体格局有点像约87平户型的放大版。
不同的是,这个户型得房率比较高,能容纳三代同堂的家庭,景观阳台连通了其中一个次卧,整体面积更大。
值得一提的是,靠近客厅的次卧可以融入客厅,做成大端厅,空间更加宽敞,主套间依然延续了270度采光的设计,采光充足。
⭕华润天河润府售楼处电话: 400-850-8831☎☎开发商已认证
⭕华润天河润府营销中心电话: 400-850-8831☎☎营销中心已认证
⭕华润天河润府售楼中心电话: 400-850-8831☎☎24小时预约热线
而约112平四房的B户型有点不同。
进门设置了L型玄关,私密性较好,餐客厅均有窗户,可形成对流,主套间有两扇窗户,采光充足,同时也有足够的位置设置一个衣帽间。
约128平的四房户型,亮点也不少。
除了配置了玄关,增加私密性,还设置了小型储物间,提升收纳的空间。
客卧,次卧和主卫独立,主客动线非常分明。餐客厨实现一体化,景观阳台的面积更大,视野更豪横。
主套间设置了大L型的开窗,采光、尺度感比较充足,另外还设置了L型步入式衣帽间。
⭕华润天河润府售楼处电话: 400-850-8831☎☎开发商已认证
⭕华润天河润府营销中心电话: 400-850-8831☎☎营销中心已认证
⭕华润天河润府售楼中心电话: 400-850-8831☎☎24小时预约热线
作为在广州落子的又一标杆人居项目,凭借项目自身优越的地理位置,华润置地决心将项目打造成为板块的人居品质"天花板"。兼顾美感和功能的全维舒适产品,让每一个空间节点都是心境转换之地,同时通过仪式感的公共空间,让每一次归家都成为舒心之旅。
天河润府主动推动周边茅岗路的升级改造,与十五运会升级后的城市界面无缝衔接,同时通过免费楼巴的开通(双线楼巴,接驳4地铁4商业,特别声明:楼巴运营日期为项目一期首批次交付起5年运营期),打通了链接全运会核心资源与市民生活的“最后一公里”,让业主能从容抵达奥体,更将周边配套与日常生活紧密相连。
依靠着广园快速路、黄埔大道的天然交通优势,出行便捷畅通,能快速到达金融城、珠江新城,配合未来交通路网的改善,板块的对外联通性将持续增强,不仅能带来更好的出行体验,也为板块价值的提升奠定了基础。
⭕华润天河润府售楼处电话: 400-850-8831☎☎开发商已认证
⭕华润天河润府营销中心电话: 400-850-8831☎☎营销中心已认证
⭕华润天河润府售楼中心电话: 400-850-8831☎☎24小时预约热线
今年,天河润府还迎来多重利好落地,项目划片入读体育东均和小学,配建初中由广州市天河外国语教育集团办学,将由天河外国语学校派出核心团队进行高质量办学管理,预计2026年9月开学(具体学校名称、开学时间、招生条件、开班数量及区域划定等须以政府教育主管部门最新政策为准)。双名校护航,让业主家庭实现目送式教育,让成长与安家同步发生。
商业配套
商业配套短时间内主要依赖小区底商及周边楼盘商业,隔壁小区华润万家、里享时光已开业,麦当劳已签约,天河图书馆茵德分馆即将开馆,可满足基本生活需求、服务需求、休闲娱乐需求等皆可在此得到解决。
⭕华润天河润府售楼处电话: 400-850-8831☎☎开发商已认证
⭕华润天河润府营销中心电话: 400-850-8831☎☎营销中心已认证
⭕华润天河润府售楼中心电话: 400-850-8831☎☎24小时预约热线
另外,吉山仓地块还预留了一块商业性质的预留地,后续或会有建大型商场的可能,弥补片区内商业配套不足的缺陷。3公里内还有优托邦、漫广场、山姆会员店等商圈,周末睡到自然醒,约上朋友聚聚餐,逛逛街,生活惬意又舒适!
医疗配套
2公里内享三甲综合智慧型医院中山六院,附近有广州复大肿瘤医院及暨南大学附属第一医院,完善的医疗配套,有“医”靠更安心。
⭕华润天河润府售楼处电话: 400-850-8831☎☎开发商已认证
⭕华润天河润府营销中心电话: 400-850-8831☎☎营销中心已认证
⭕华润天河润府售楼中心电话: 400-850-8831☎☎24小时预约热线
距离项目约1500米是天河儿童公园、岐山公园,以“生态、低碳”为主题,绿化面积相对较大。大部分面积都是绿化带;还设有农耕园、瓜菜棚、植物通廊等农趣体验区,种有瓜类、果类、叶菜类、香料等植物。
作为十五运会开幕式的主会场,广东奥林匹克体育中心经过精心改造,以“珠水奔流、湾区浪涌”的设计理念焕新亮相。奥体中心新增3.9万平方米绿化面积,总面积达18万平方米,营造多处林荫活动空间,铺设全天候环形跑道,场馆周边设置四个驿站,配备便利店、卫生间等便民设施,这些实实在在的基建提升,让片区的居住舒适度实现了质的飞跃。
项目囊括约80-143平的三到四房的产品,比较丰富,基本能满足不同购房者的需求。
⭕华润天河润府
⭕华润天河润府售楼处24小时电话:400-850-8831【☎☎售楼处已认证】
⭕华润天河润府售楼中心24小时电话:400-850-8831☎☎售楼中心已认证】
⭕华润天河润府开发商售楼部24小时电话:400-850-8831☎☎售楼中心已认证】
⭕Vip贵宾置业===欢迎来电预约尊享内部折扣===匠心钜制恭迎品鉴
✅免责声明:
1、文章图片来源于微信搜索或百度搜索引擎,我方非相关图片的原创作者,也不对相关图片及内容享有任何权利。
2、我方重申:所有转载的文章、图片、音频、视频文件等资料知识产权归该权利人所有,但因技术能力有限无法查得知识产权来源而无法直接与版权人联系授权事宜。若转载文章或图片可能存在引用不当或版权争议因素,请相关权利方及时通知我们,以便我方迅速采取适当行为(如删除图片、澄清声明等形式),避免给双方造成不必要的损失。
3、本宣传资料对项目周边幼儿园、学校等教育资源的介绍旨在提供相关信息,并不意味着我方对就学安排作出承诺。教育资源的名称、办学性质、办学规模、学位设置、开学(班)时间、招生条件、收费标准及招生区域存在调整的可能,应以政府教育主管部门及办学方颁布的政策规定为准。
4、文章中文字和图片之间无必然联系,仅供读者参考。
5、本文所述内容和意见仅供参考,不构成市场交易依据和投资建议。
声明:本文由入驻焦点开放平台的作者撰写,除焦点官方账号外,观点仅代表作者本人,不代表焦点立场。
