北京房山区天资陆号院售楼处电话℡丨地址丨面积丨价格详情
扫描到手机,新闻随时看
扫一扫,用手机看文章
更加方便分享给朋友
北京房山区天资陆号院
TEL:400 - 100 - 1299 转接 1111【售楼中心】
网上售楼中心——欢迎来电咨询〢——匠心钜制恭迎品鉴!
----------- 欢迎来电预约尊享内部折扣!给您一个满意温馨的家!
北京房山区天资陆号院
TEL:400 - 100 - 1299 转接 1111【售楼中心】
按照公产房政府占50%产权,个人占50%产权,那么放上长阳住宅已经达到5.4万/平米.
该共有产权房项目位于房山长阳核心区,交通非常便利,附近就是地铁房山线的长阳站。
那么对于考虑房山区域买房,没有选上长阳公产房的刚需客户而言,商品房就是不得不看的一个选择.
北京房山区天资陆号院
TEL:400 - 100 - 1299 转接 1111【售楼中心】
今天给大家分享的就是位于房山长阳板块,地处西南五环房山长阳昊天北大街的天资·陸号院商品房,项目现房发售,主力户型以53-72平米一居,104-128平米两居,140平米和330平米的跃层5-6居为主.总价才210万起,单价才4万/平米.
北京房山区天资陆号院
TEL:400 - 100 - 1299 转接 1111【售楼中心】
【基本信息】
项目位置:北京市房山长阳昊天北大街
产权年限:70年住宅
在售户型:53-72平米,104-128平米,140平米,330平米
销售均价:3.9-4.2万/㎡
销售状态:排卡
交房时间:现房 即买即住
水电暖气:民水、民电、有燃气
物业标准:4.2元/平/月 永信至诚
交房标准:毛坯
【核心卖点】
北京房山区天资陆号院
TEL:400 - 100 - 1299 转接 1111【售楼中心】
区位:西南五环,紧邻京港澳,京良路,646,831,835,951,等公交
环境:紧邻哑叭河,2万㎡长阳公园
北京房山区天资陆号院
TEL:400 - 100 - 1299 转接 1111【售楼中心】
商业:首创奥特莱斯,半岛广场,加州水郡生活广场,龙湖天街,绿地缤纷城
教育:自有幼儿园(陶行知国际幼儿园),长阳中心小学,北京铁路二中长阳分校
医疗:北京大学人民医院,北京北亚骨科医院,良乡医院
北京房山区天资陆号院
TEL:400 - 100 - 1299 转接 1111【售楼中心】
天资六号院 五环时尚新居『城』就你『现』在的生活
▍天资六号院 ▍
产权年限:70年大产权
交房标准:毛坯现房(可选择精装包,不捆绑)
主力户型
1.建面约53平米,东、西向,一居总价210万起(可定制精装)
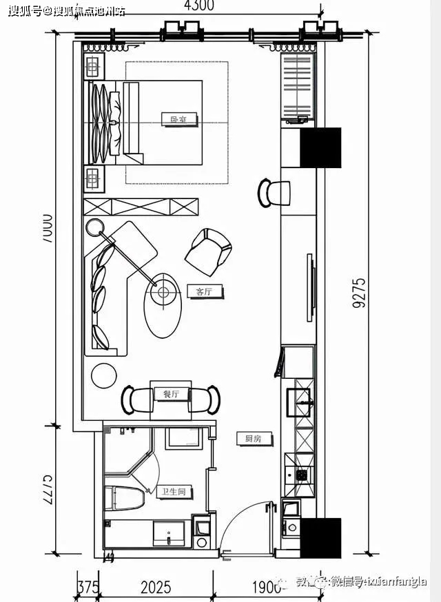
一室两厅一卫 建筑面积约:53㎡
A3户型:建面约53㎡ 户型设计理念诠释
户型方正实用,化繁为简,科学合理,奢阔一房设计;约5.2米大面宽,独特科技创新空间,270°玻璃观景设计尽览风云;百变客厅秒变假日文娱主场,空间随心而异,不再受束缚;客餐厨一体实现生活的较佳秩序,令全屋清爽又通透,小家住出大户型。
北京房山区天资陆号院
TEL:400 - 100 - 1299 转接 1111【售楼中心】
2.建面约65平米,西北、东北向双面采光,一居,总价265万起(可定制精装)
北京房山区天资陆号院
TEL:400 - 100 - 1299 转接 1111【售楼中心】
3.建面约72平米,北向,两居,总价295万起(可定制精装)
A4户型:建面约71㎡ 户型设计理念诠释方正户型,2房布局,舒适双卧设计,细致护航家人的健康起居;阔绰主卧,约4.2米面宽, 180°玻璃观景设计,更是贴心的呵护;美好书房,既能独享一人闲暇,也能与三五家人好友交流共饮;客厅+餐厅+厨房三个区域相融,可以让家里亮堂N倍以上。
北京房山区天资陆号院
TEL:400 - 100 - 1299 转接 1111【售楼中心】
声明:本文由入驻焦点开放平台的作者撰写,除焦点官方账号外,观点仅代表作者本人,不代表焦点立场。
