上海壹号院售楼处电话→上海壹号院售楼中心电话→上海壹号院楼盘百科...
扫描到手机,新闻随时看
扫一扫,用手机看文章
更加方便分享给朋友
重磅爆料!黄浦风貌区核心,新湖&融创亚龙项目案名正式定名为:昼锦园!预计8月首开建面约260-930㎡高层&复式!预计7月下旬开放样板间!
上海黄浦「上海壹号院」
售楼处电话:400-000-0460转6666✔✔【预约热线】上海壹号院售楼处电话:400-000-0460转6666✔✔【预约热线】如有问题欢迎来电咨询,专业一对一热情服务,让您用专业眼光去买房。
上海壹号院售楼处电话:400-000-0460转6666✔✔【预约热线】上海壹号院售楼处电话:400-000-0460转6666✔✔【预约热线】
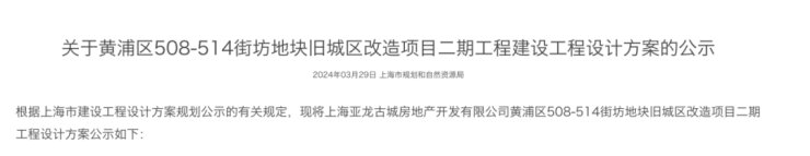
近日,上海市规划和自然资源局官网发布了黄浦区508-514街坊地块旧城区改造项目二期设计方案。该地块也就是新湖融创亚龙项目的二期。

项目设计方案显示,地块西至木桥街、北孔家弄、吉祥弄,南至复兴东路、东至松雪街,北至方浜中路,总用地面积56535.04平方米,总建筑面196710.10平方米,其中地上建筑面积89437.20平方米。住宅方面,项目拟建2幢19层高层住宅以及合院别墅。

上海壹号院售楼处电话:400-000-0460转6666✔✔【预约热线】上海壹号院售楼处电话:400-000-0460转6666✔✔【预约热线】上海壹号院售楼处电话:400-000-0460转6666✔✔【预约热线】2022年6月,新湖融创亚龙项目一期设计方案公示,总建筑面积约23万平方米,将建设六栋高层住宅,楼层高度在14至37层之间,以及部分经过改建并保留的联排别墅和合院别墅。

【项目区位】
上海壹号院位于中华路和复兴东路交汇处,总建筑面积约23万方,距离新天地直线距离约900米、陆家嘴直线距离约2公里、外滩直线距离约1.3公里。

地理位置:东至吉祥弄、北孔家弄,西至肇方弄,南至金家坊、复兴东路,北至昼锦路;
出让面积:39128.6㎡;
总建筑面积:230072.96㎡;
规划用地性质:住宅;
根据规划,项目总建筑面积约23万方,由6栋14-37层的高层住宅、部分改建保留的联排别墅、合院别墅以及部分配套用房组成。

上海壹号院售楼处电话:400-000-0460转6666✔✔【预约热线】上海壹号院售楼处电话:400-000-0460转6666✔✔【预约热线】上海壹号院售楼处电话:400-000-0460转6666✔✔【预约热线】
G、D区北面规划的昼锦路目前还未东延至此,未来建成后,项目内将开辟昼锦路和方浜中路之间的公共绿地以及城市开放空间,着力打造成富有海派文化底蕴的历史风貌保护和城市更新经典片区。

从面积热力图上来看,项目甚至包含了面积超过850㎡的超大住宅,贫穷限制了独家君的想象力......

上海壹号院售楼处电话:400-000-0460转6666✔✔【预约热线】上海壹号院售楼处电话:400-000-0460转6666✔✔【预约热线】
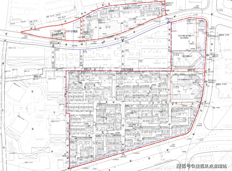
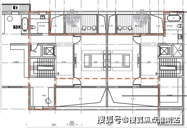
网传合院户型图如下👇


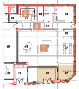
部分保留历史建筑的户型平面图👇
(双击可查看大图)
一层

二层

一层

二层

一层

二层

一层

二层

一层

二层

一层

二层

三层

一层

二层

三层

一层平面图

二层平面图

上海壹号院售楼处电话:400-000-0460转6666✔✔【预约热线】上海壹号院售楼处电话:400-000-0460转6666✔✔【预约热线】上海壹号院售楼处电话:400-000-0460转6666✔✔【预约热线】
亚龙项目,经历了多轮方案后,最终明确了中间为低区,东西两侧为高区的形态排布方式。设计阵容,采用了gad团队和华东建筑设计院共同打造!ps:gad的经典作品有阳光城檀悦101、阳光城滨江悦、杭州仁恒滨江园等。

效果图👇





项目由6栋14-37层的高层住宅、部分改建保留的联排别墅、合院别墅以及部分配套用房组成。

项目效果图:







【周边配套】
交通配套:地块直线距离8号线/10号线老西门路站约300米,轨交出行非常方便。

商业配套:周边内有香港名都城、豫园商圈、复兴艺术中心,人民广场、新天地、外滩、南京路步行街等顶级商业。
教育资源:周边的公立学校有复兴东路三小、上海实验小学、蓬莱路二小等,初中有光明初级中学及市十、市八,康德及永昌两所九年一贯制的民办学校等。

医疗配套:周边有上海九院、瑞金医院、仁济医院西院、黄浦区中西医结合医院、曙光医院西院、复旦大学附属妇产科医院及上海红房子医院等众多享誉全国的医疗资源。
上海壹号院售楼处电话:400-000-0460转6666✔✔【预约热线】上海壹号院售楼处电话:400-000-0460转6666✔✔【预约热线】休闲资源:周边的休闲配套有人民广场、城隍庙、文庙、太平湖、周公馆、一大会址、外滩等等。
更多楼盘消息会在群里及时更新,欢迎大家进群交流。
售楼处电话:400-000-0460转6666【售楼中心热线】营销中心热线400-000-0460转6666售楼处地址400-000-0460转6666
声明:本文由入驻焦点开放平台的作者撰写,除焦点官方账号外,观点仅代表作者本人,不代表焦点立场。
