【保利裕华天珺】售楼处电话—保利裕华天珺百科详情【裕华天珺售楼部24H预约热线】—实时动态-保利裕华天珺最新价格-保利裕华天珺户型图-容积率
扫描到手机,新闻随时看
扫一扫,用手机看文章
更加方便分享给朋友
保利裕华天珺
保利裕华天珺售楼处电话:400-678-1582转分机号6666【已认证】
保利裕华天珺售楼处位置:400-678-1582转分机号6666【楼盘认证】
➤➤➤➤VIP贵宾置业〢欢迎来电咨询,售楼处官方认证电话400-678-1582转分机号6666
☎为您安排楼盘现场销售全程接待并讲解,给您更贴心的看房体验!
近日,石家庄规划局下发了保利裕华天珺的调规后的总平面规划方案
这是继龙湖青云阙于2023年年底调整规划后
(楼盘社区大堂实景图)
下面,我们具体看一下
保利怎么去调整适配市场客户的购置需求的
我们先看下核心数据
容积率:2.59,不敢动
绿地率:35%,不敢动(洋房小院计入绿地面积)
建筑密度由18.96%变成19.98%
这个数据的变化主要在于有一栋楼由1个单元变成2个单元
总户数:由1014户增加1070户(基本未变)
接下来,分户型去看
追加了一栋9X㎡+13X㎡大高层,砍掉了一栋大高层16X㎡
原因很简单,整个裕华二环环内160-170万含装修预算区间就是市场空白,以后也很难再有类似的产品出来
既然之前97㎡是个流量户型,虽然诟病是挂个连廊
但是卖得好,走量
那就先加一栋回回血
个人认为,这个户型在大高层里做的比较极致了
(大高层97㎡户型图)
集中砍掉164㎡四面宽四居
从总图看出,大概率就保留了一栋楼(未售)的164㎡+133㎡的户型组合
原因更简单,2.59的容积率,大户型确实有销售难度
不过,这个164㎡产品能做到了四面宽朝南,尺度感有
可惜生错了地方
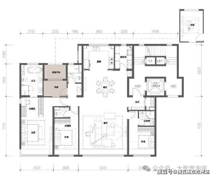
(小高层164㎡户型图)
追加128㎡新政四居产品
长安琅悦走量的128㎡四叶草四居
或者调整为华药南126㎡四居
进一步压缩133㎡的上手总价
和天正日汽贸城地块后的产品面世直接“硬扛”
从新的总图得出,共计设置了6栋楼10个单元的主力户型
不过和目前在售的小高层133㎡对比
单层层高会不会从3.15m调整为3m
我们持续跟进
(保利天曜西地块126㎡户型图)
砍掉196㎡类洋房产品
不解释了,客户不愿意做“鸡头”
400多万直接买别的地方去了
保利裕华天珺
保利裕华天珺售楼处电话:400-678-1582转分机号6666【已认证】
保利裕华天珺售楼处位置:400-678-1582转分机号6666【楼盘认证】
➤➤➤➤VIP贵宾置业〢欢迎来电咨询,售楼处官方认证电话400-678-1582转分机号6666
☎为您安排楼盘现场销售全程接待并讲解,给您更贴心的看房体验!
声明:本文由入驻焦点开放平台的作者撰写,除焦点官方账号外,观点仅代表作者本人,不代表焦点立场。
