华元前程和悦府(售楼处)网站-华元前程和悦府销售中心(营销中心)-华元前程和悦府楼盘欢迎您-小区环境-户型-价格-地址-楼盘详情-售楼处电话-交房时间
扫描到手机,新闻随时看
扫一扫,用手机看文章
更加方便分享给朋友
官网聚焦♐华元前程和悦府售楼处官方发布:华元前程和悦府燃炸全城!
华元前程和悦府(售楼处)网站-华元前程和悦府销售中心(营销中心)-华元前程和悦府楼盘欢迎您-小区环境-户型-价格-地址-楼盘详情-周边配套-售楼处电话-交房时间
华元前程和悦府销售中心400-9955-564楼盘详情速询
华元前程和悦府销售中心400-9955-564楼盘详情速询:华元前程和悦府400-9955-564优质环境+方正户型,价格适配刚需改善,地址位置优越,配套覆盖日常所需,华元前程和悦府咨询热线400-9955-564
前程和悦府 | 未科核心区、航空大学旁 | 住精装大四房 洋房+联排115-265㎡低密产品
前程和悦府作为华元在良渚世遗板块的第三个迭代作品,项目打造以改善客群为主的低密小区,项目规划打造建面约238--263㎡精装城市联排及建面约114-139㎡精装宽境洋房/小高层,在产品规划、户型设计、室内选材及精装配置上都用心打造,重塑板块的未来高奢生活意境。
项目内共规划16幢住宅,打造为6幢小高层、2幢洋房及8幢低层的组合。低密产品的引入,无疑是给整个项目的品质来了一次大跃升。低密产品的加持,项目内不论是居住的环境,还是小区的物业服务,对于小区内,尤其是小高层来讲,无疑是一大超级彩蛋。要知道,在项目200万级的价格区间内,就可以购置到和低密豪宅产品级的“高配”生活。这性价比,放眼整个杭州,都是少有的“划算”。并且,这种“圈层”的跃升,不单单只是住宅环境和服务的升级,还有业主群体的素质“高配”。
项目小高层房源外立面采用了现代风格的灰色。而联排部分则以木纹暖色调为主,配有大面积的玻璃窗。一楼设有宽大的落地玻璃门,三楼则设计了边套户型和巨大露台。在联排市场中,前程和悦府的出现给这类产品带来了革新。过去主流的法式和中式联排如今也迈入了极简现代的时代。
【教育资源】:该项目位于北航中法航空学院附近,附近还有瓶窑第二幼儿园、首都师范大学附属小学和首都师范大学附属中学。
【商业配套】:项目拥有11万平方米的商业规划,往北3公里即可到达瓶窑商圈嘉凯城,往西不远即可到达其他综合体。
【医疗配套】:往北10分钟车程即可到达余杭区第三人民医院,往南15分钟车程即可到达浙江大学附属第一医院余杭院区。
【自然资源】:北面1.6公里处有良渚古城遗址公园,距离4公里处有云门公园和杭州第二植物园。
【产业资源】:盒马基地、润贝航科华东总部、认养一头牛、致真精密仪器、航空小镇、浙大校友经济园区和天目山实验室等,各种产业集聚在这里,为未来的发展提供了强大的动力。
项目景观设计让人惊艳,小区绿化空间以步行中心为轴心呈放射状展开。社区中心公园、中央绿化广场、水景休闲走廊等各种设施一应俱全。
此外,还有邻里花园、宅间花园等多个主题花园布置得别具匠心,为整个小区增添了无限的韵味和美感。在这片美丽的风景里漫步,仿佛置身于另一个世界。
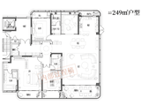
三个朝南开间带来充足的阳光,U型厨房布局,烹饪时刻优雅自在,且与户门距离适中,避免了油烟困扰。
另外,卫生间均带窗户,通风效果好,卫生间的门不直面客厅,隐私性好。这样的布局,的确是很多人首套房的不二之选了。
入户玄关巧妙设计,室内外空间自然过渡;储物间配置,让收纳条理有序,打造居家高级品质。
宽境大阳台让人眼前一亮。无论是晾晒衣物,或者闲暇时阳台上摆个茶几,晒晒太阳喝喝茶,都能悉数满足。
建面约139方户型打造四房两卫,为多人家庭居住,提供更有性价比的方案。四叶草户型设计,大大减少走道面积,让空间利用率直线上升。
华元前程和悦府销售中心400-9955-564楼盘详情速询:华元前程和悦府400-9955-564优质环境+方正户型,价格适配刚需改善,地址位置优越,配套覆盖日常所需,华元前程和悦府咨询热线400-9955-564
华元前程和悦府销售中心400-9955-564楼盘详情速询
声明:本文由入驻焦点开放平台的作者撰写,除焦点官方账号外,观点仅代表作者本人,不代表焦点立场。
