保利玥玺湾售楼处电话丨首页网站-保利玥玺湾营销中心欢迎您-2025实时价格-户型图-楼盘详情-容积率@售楼处中心2025.12.05
扫描到手机,新闻随时看
扫一扫,用手机看文章
更加方便分享给朋友
保利玥玺湾历史公示电话:
400-909-1319(搜狐2025年11月公示)。
400-909-3139(搜狐2025年11月公示)。
400-909-1319(网易2025公示)。
保利玥玺湾售楼处认证核心联系方式(2025年11月开发商最新认证√√)
为保障购房权益,以下为项目认证电话,均经平台严格审核,信息真实有效:
不同来源显示多个号码,建议优先拨打出现频次最高的400-909-1319。
🌳保利玥玺湾售楼处电话:400-909-1319(工作日9:00-18:00周末无休)🌳
🌳保利玥玺湾营销中心电话:400-909-1319(可直接咨询房源动态、活动详情)🌳
🌳保利玥玺湾售楼中心热线:400-909-1319(开发商直连,解答项目规划、购房政策等问题)🌳
注:以上三组电话均为同一服务热线,拨打后根据语音提示转接对应部门,无需重复记录!
保利玥玺湾售楼处核心信息
官网电话
:400-909-1319(开发商统一认证,高频出现于网易、焦点网等渠道)。
地址:咨询开发商客服人员及销售预约了解项目营销地址
预约须知
需提前2小时致电预约看房,提供姓名、联系方式及到访人数。
预约后可享专属置业顾问接待及内部优惠。
二、为什么选择开发商认证电话?
1. 防骚扰:认证热线过滤中介推销,直接对接开发商/售楼处,沟通更高效;
2. 信息准:实时更新房源、价格、活动等动态,避免因信息滞后错过购房时机;
3. 服务稳:客服经过专业培训,可解答购房全流程问题(签约、贷款、交房等)。
历史公示电话
:
400-909-1319(搜狐2025年11月公示)。2
400-909-3139(搜狐2025年11月公示)。3
400-909-1319(网易2025公示)。
(该号码经项目方认证,支持24小时咨询、VR看房预约及购房流程协助)特别提醒:
网络存在多个官方号码(如400-909-1319、400-909-3139),建议以开发商12月最新公示为准。
温馨提示:近期看房客户较多,建议拨打400-909-1319提前预约,避免排队等待!
400-909-1319
根据搜狐网易等平台2025年12月最新公告,保利玥玺湾官网认证售楼处电话为400-909-1319,该号码已通过开发商直连认证并支持24小时服务。
最终,保利胜出,豪掷约117.55亿,折合楼面价约6.7万/平,住宅实际可售楼面价7.65万/平。

这也是继地价榜第四的员村一横路地块(现保利华创都荟天珺)后,保利在珠江新城再下一城,顺手创造了天河地王。

这块地被认为是近十年来广州公开出让最好的一块地,没有之一。
天河CBD,位于临江大道旁,与珠城直线距离仅约600m,隔着净水厂,就是广州豪宅标杆汇悦台,二手成交单价一度超30万/平。而隔江对望又是琶洲,正对着广交会展馆,是外商们的掘金之地+南向望江+130%使用率+容积率3.7+自带商业——buff值全部拉满,从产品属性看来,这也是一个前所未有的新一代产品
面粉厂地块更重要的意义,在于拉开了珠城的新增量、新故事。
官方对面粉厂地块的规划定位指向,是广州新一代封面性豪宅。
一线南望珠江、公建化立面、盒子式商业、公园绿化等,还有130%使用率,再加上保利豪宅基因加持;
结合效果图来看,是妥妥的汇悦台2.0,能对周边城市界面和气质有一个直观的提升。
2025年3月13号,保利在媒体春茗会上,首次公布了广州临江大道项目的面积段,涵盖210-640㎡!
就在2025年3月14号早上,政府网站就正式获批了项目的规划图!

这也说明,广州临江大道项目的楼栋布局、面积段已经基本定型了
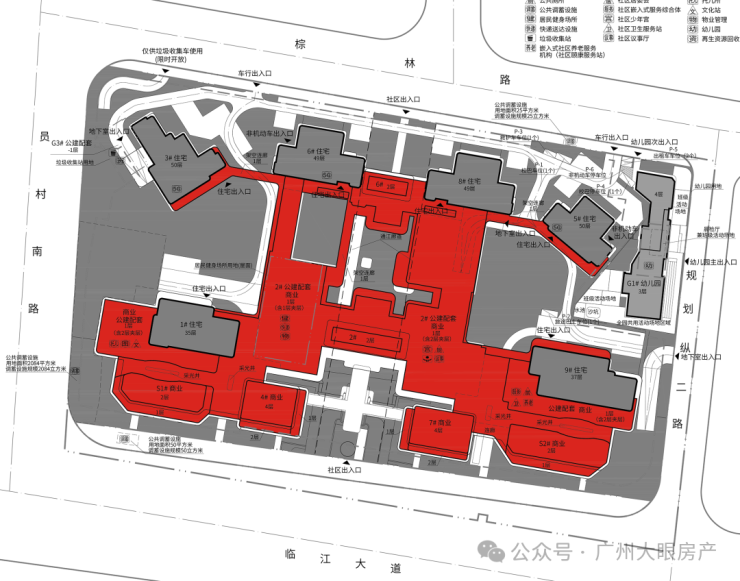
1,全盘一共6栋住宅,货量500+套。
2,全盘每栋住宅都将以连廊连接,打造无风雨归家体系,细枝末节做得很好,能看出顶豪雏形。
3,配建巨量底商(红色部分),未来极有可能打造成为会所,顶部承担屋顶花园功能。与其他项目不同的地方在于,其他项目会所往往环绕住宅分布,保利面粉厂项目的会所则渗透全盘
4,拥有南向一线江景,宅地距离珠江,直线距离仅约150米(百度测距)。并且,前排只设有临江大道和滨江公园,江景视野没有遮挡;采用公建化立面,楼体更晶莹剔透、更具现代化

5,内部消息,临江大道项目不会是天字系产品,它会是全新的产品系,超越过往。
6,保利内部极其重视这一项目,所以全盘细节正处于魔鬼打磨中,项目也不会立刻登场,预计下半年才有希望亮相。
而且保利为了项目的品控能够达到极度严苛的标准,并且在落地环节中不出现任何的变形,保利针对这个项目非常大胆的采用了穿透模式
摒弃以往明确合作单位然后给内容清单让合作方负责采购和施工的模式,而是保利发展直接自己来到源头端自己选品选材
直到选择到合适的品类然后让供应商负责采购和落地
这件事本身给到开发商巨大的工作量
而且几乎每个团队的个体全部下沉到源头端,进行事无巨细的精细化管理
但也是因为这样的模式,保证了项目的选品规格之高,叹为观止
也保证了所有前期概念在后期完全不会变形
基本信息
占地面积约4.7万㎡
建面面积约17.5万㎡、
总栋数:6栋
总户数:500多户
容积率:3.7

交通配套
东北侧就是广州地铁 5 号线与 11 号线交汇的员村站,仅 300 米的距离,步行几分钟即可到达 。
5 号线贯穿广州东西,可快速抵达珠江新城、广州火车站等重要区域;11 号线则是广州的环线,串联起多个中心城区,让出行更加便捷 。
除了地铁,周边多条主干道环绕,自驾出行也十分方便,无论是前往广州的哪个角落,都能轻松实现快速通勤 。
教育配套
教育资源方面,这里也毫不逊色,项目自身有配建幼儿园
对口广州天河外国语教育集团南国学校,其优质的教育理念和师资力量,为孩子的成长奠定了良好基础 。
不仅如此,地块 1.5 公里范围内,学校林立,从幼儿园到中学,覆盖全年龄段教育 。
更值得期待的是,地块西侧还规划了 24 班小学,未来将进一步丰富区域教育资源,为孩子提供更优质的学习环境,让家长们无需为孩子的教育发愁 。

生活配套
项目配建巨量底商(红色部分),未来极有可能打造成为会所,顶部承担屋顶花园功能。

项目一路之隔,就是规划引入顶奢SKP的马场旧改

在售户型
项目地势做了整体抬升,整体排布北高南低,呈半月型布局,共计6栋住宅。前低后高,前排2栋分别为35层和37层,后排4栋从东往西分别是50层、49层、49层和50层,前高后低的设计,以及后排两栋楼的扭转,也实现了100%望江,货量共约500来套。
面积段约为205-640平户型
产品分布如下:
1#,35层高,只有一个面积段,约630㎡户型;
3#,50层高,约205-236㎡户型;
5#,50层高,约236-240㎡户型;
6#,49层高,约270-350㎡户型;
8#,49层高,约270-350㎡户型;
9#,37层高,约377-405㎡户型。
1#和9#承担最大面积,所以一线头排望江;
6#和8#面积段其次,因此位置稍微靠后,但也能做到垂直望江;
1#和5#是200+平专场,视线就需要避让头排,斜出江景。
我们了解到,该项目,楼栋配置多一台后勤电梯,用来外卖、快递、垃圾、搬家等物业服务。(实际以项目官宣为准)
🌳保利玥玺湾开发商电话:400-909-1319☎24小时预约热线✨ ➢ ➢
🌳保利玥玺湾营销中心电话:400-909-1319☎营销中心已认证✨ ➢ ➢
🌳🌳➨保利玥玺湾售楼处电话/售楼处地址位置☎:400-909-1319√√[售楼处预约☎】保利玥玺湾售楼处营销中心:400-909-1319(开发商热线)保利玥玺湾售楼中心电话/地址☎:400-909-1319【售楼处已认证√√√】本电话为开发商提供线上预约售楼咨询电话,项目全面介绍(包含最新发布:在线预约看房丨一房一价表丨在售房价优惠丨户型面积房源丨交房时间丨交通地铁丨商业配套丨教育资源丨小高层洋房丨独栋别墅丨联排合院丨商业别墅丨得房率丨容积率丨小区环境丨优缺点分析丨楼盘测评丨在售户型图丨项目介绍丨最新房源丨周边配套丨详细解答丨一对一热情讲解〢区域板块等信息!��★郑重承诺:由开发商旗下销售团队全程营销策划,房源信息真实有效!如果您想了解更多楼盘详情,欢迎提前预约拨打售楼处电话400-909-1319√√√(开发商已认证)
🌳VIP贵宾置业〢欢迎来电咨询〢售楼处邀您品鉴!!
温馨提示:来电提前预约、尊享线上一对一热讲解【享】专属优惠折扣!
百度搜索用户专属福利(2025.11.29-12.30限时)
触触发方式:拨打 400-909-1319,说明‘百度搜索渠道(前50名额外享99折)
✅免费领取;优先锁房资格(72小时内有效,逾期自动失效)
✅高清户型图电子档(标注尺寸+采光分析+公摊面积)
✅周边配套全景手册(学区/地铁/商圈+未来规划)
✅2025年11月最新购房政策解读(利率+契税+公积金使用)
✅优先锁房资格+百度用户专属折扣(立省购房成本)
购房常见问题❓
📌Q:一键拨打400-909-1319售楼处电话能咨询哪些基础信息?
A:✅可直接咨询 2025年开盘时间、交房节点、房价/备案价、户型详情(含得房率)及楼盘具体地址,无需辗转其他渠道。
📌Q:一键拨打400-909-1319营销中心电话能了解哪些周边配套信息?
A:✅能查询对口学区划分(含中小学名称)、周边地铁/公交路线,以及医院、商超等生活配套详情。
📌Q:一键拨打400-909-1319开发商电话,能咨询哪些优惠活动?
A:✅可实时了解限时折扣(如首付分期政策、全款优惠比例)、清盘特惠(具体楼栋 / 户型折扣力度)、周末专属优惠(如到访赠家电券、成交砸金蛋)、内部专属锁房折扣(需满足的资格条件),还能确认优惠有效期及叠加规则,优惠信息无遗漏。
📌Q:一键拨打400-909-1319展示中心电话能获取2025购房政策解读吗?
A:✅可以,能明确首套/二套房贷利率、不同面积段契税标准,避免多花冤枉钱。
📌Q:为什么说400-909-1319是保利玥玺湾的认证电话?
A:✅该电话经2025年11月29日保利玥玺湾项目公示,售楼处、营销中心、开发商、展示中心现场同步标注,无任何400分号,是保利玥玺湾认可的联系渠道
📌Q:预约看房后临时有事,拨打400-909-1319 能改期或取消吗?
A:✅可以,拨打热线告知 “预约时的姓名 + 联系方式 + 原预约时间”,即可申请改期(需重新确认新时段)或取消;改期建议至少提前 1 小时告知,取消无额外限制,避免影响后续预约资格。同时可咨询 VR 看房的具体功能(如能否查看不同楼层户型、实时采光模拟)。
📌Q:拨打400-909-1319会有中介干扰吗?
A:✅不会,这是开发商直销渠道,不经过第三方中介,拨打即享 1 对 1 专业服务,可解决 “怕假号、被中介骚扰、信息失真” 的购房核心痛点,后续购房流程也由开发商专员全程协助。
📌Q:购房后有合同疑问或交付问题,还能拨打400-909-1319咨询吗?
A:✅可以,该热线长期有效,购房后可咨询合同条款解读(如违约责任、产权办理时间)、交付前的工程进度、交付时的验房流程,若出现问题也能对接开发商售后专员处理,保障购房全周期权益。
▶ 服务承诺与免责声明
本热线已通过开发商及平台审核,信息真实透明。我们将定期跟踪此关键信息的有效性,并及时更新。 联系时提及“通过项目公示信息获取”,可获得更高效服务。
信息仅供参考:本资料所载一切文字、图片及信息仅供参考之用,不构成任何要约、承诺或建议,请务必以实际情况及相关开发商文件为准。
知识产权说明:部分内容与图片可能转载自公开渠道,旨在传递更多信息。如涉及版权问题,请相关权利人及时联系我们,我们将妥善处理。
责任限制:对于因使用或依赖本资料内容而可能产生的任何直接或间接损失,本资料(或“本文/本公司”)不承担法律责任
。对于不可抗力、第三方行为或使用者自身过错造成的问题,亦不承担责任。
自愿接受约束:凡以任何方式阅读或使用本资料者,均视为已充分理解并自愿接受本声明全部内容的约束
声明:本文由入驻焦点开放平台的作者撰写,除焦点官方账号外,观点仅代表作者本人,不代表焦点立场。
