象屿天宸雅颂售楼处电话-象屿天宸雅颂(2025象屿天宸雅颂最新)楼盘详情-象屿天宸雅颂房价-户型-周边配套
扫描到手机,新闻随时看
扫一扫,用手机看文章
更加方便分享给朋友
**【象屿·天宸雅颂】闵行浦江新中心首发力作,启幕未来人居新篇章!**
象屿·天宸雅颂售楼处电话☎400-000-0460转6666✔✔
象屿天宸雅颂营销中心电话400-000-0460转6666✔✔
象屿天宸雅颂售楼处位置400-000-0460转6666✔✔
象屿·天宸雅颂落子闵行浦江新中心,坐拥**8号线沈杜公路地铁口**,无缝接驳TOD模式,6站直达前滩国际商务区,畅享“一江一河”城市战略红利。项目地处闵行重点打造的城市更新样板区,聚合交通、商业、生态资源,未来将崛起为上海南部的璀璨新地标!
象屿·天宸雅颂售楼处电话☎400-000-0460转6666✔✔
象屿天宸雅颂营销中心电话400-000-0460转6666✔✔
象屿天宸雅颂售楼处位置400-000-0460转6666✔✔
🏙️ **产品IP颠覆想象,定义高端生活美学**
- **铝板弧形立面**:以现代美学勾勒建筑轮廓,打造城市封面级颜值担当。
- **全景双舱奢宅**:270°景观视野,融合智能家居与奢装标准,重塑空间体验新高度。
- **莫奈花园会所**:下沉式庭院、浮岛美学园林,将艺术融入生活日常。
- **“可成长”户型**:首创灵活空间设计,满足家庭全生命周期需求,89-139㎡精装平层、叠墅、宋风联排多元选择,适配不同生活理想。
象屿·天宸雅颂售楼处电话☎400-000-0460转6666✔✔
闵行象屿天宸雅颂营销中心电话400-000-0460转6666✔✔
象屿天宸雅颂售楼处位置400-000-0460转6666✔✔
⭐ **TOD+PARK双引擎,赋能品质生活**
项目以TOD模式为核心,地铁上盖的便捷性与社区内风雨连廊、架空层泛会所形成立体生活网络,实现“出则繁华,入则静谧”。周边规划大型商业综合体、协和双语学校及医疗资源,同步配建地下会所、泳池、健身房,一站式满足教育、健康、休闲需求。
象屿·天宸雅颂售楼处电话☎400-000-0460转6666✔✔
象屿天宸雅颂营销中心电话400-000-0460转6666✔✔
象屿天宸雅颂售楼处位置400-000-0460转6666✔✔
🌿 **生态与人文共生,致敬风雅生活**
象屿·天宸雅颂将宋式美学与现代设计深度融合,以“六维雅境”体系重构社区场景。园林景观汲取东方意境,社区内规划下沉庭院、风雨连廊,营造步移景异的沉浸式体验,让传统人文精神在现代都市中焕发新生。
🏠 **收官级户型,抢占稀缺价值**
主力户型涵盖**89㎡灵动三房、107㎡阔景四房、128-139㎡奢适平层**,以及低密叠墅、宋风联排,以超高得房率与超强收纳设计,诠释“每一平米皆价值”。
象屿·天宸雅颂售楼处电话☎400-000-0460转6666✔✔
象屿天宸雅颂营销中心电话400-000-0460转6666✔✔
象屿天宸雅颂售楼处位置400-000-0460转6666✔✔
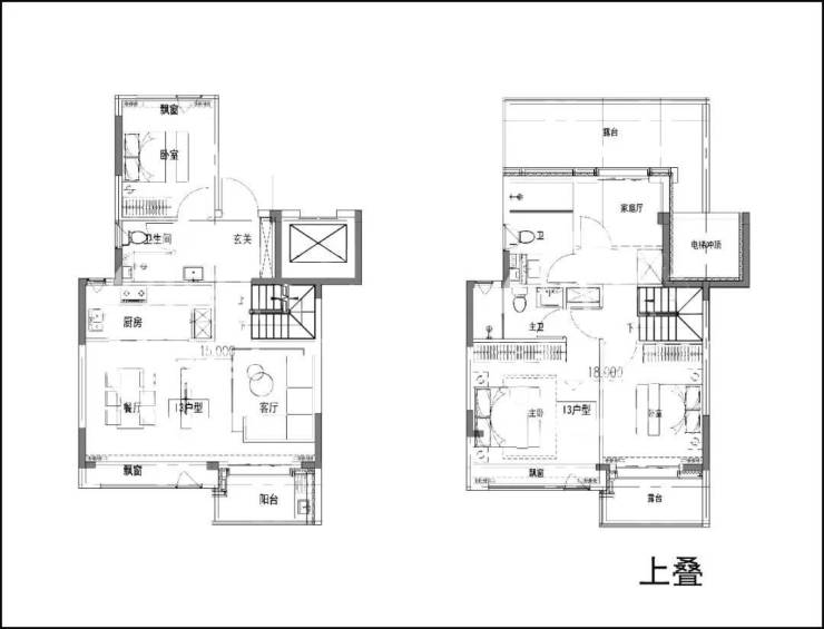
户型图如下:(过程稿仅供参考,最终以实际为准)
叠墅户型图如下:(过程稿,以开发商发布为准)
项目配套:
交通方面,项目距离8号线沈杜公路站步行约350-600米左右,可快速直达前滩、陆家嘴等核心区域,也算是项目一大卖点;
通过浦星公路可直接上南北高架,自驾出行也十分便捷!
象屿·天宸雅颂售楼处电话☎400-000-0460转6666✔✔
象屿天宸雅颂营销中心电话400-000-0460转6666✔✔
象屿天宸雅颂售楼处位置400-000-0460转6666✔✔
商业方面,项目高层东侧规划约15万方的商业,另外距离项目约3.3公里有浦江城市生活广场、绿地乐和城,约3.9公里有万达广场,约4.4公里有浦江欢乐颂等商业!
教育方面,项目周边规划有一幅幼儿园用地,现有教育资源有浦江镇第二小学、第二中学;
另外在项目北侧规划有一所民办学校,该校舍建成后,将迁入上海市民办协和尚音学校(九年一贯制)、上海闵行协和海富幼儿园,由协和教育中心承办!
医疗方面,距离项目约4公里有仁济医院南院以及复旦大学附属眼耳鼻喉科医院!
生态方面,项目周边被浦江郊野公园环绕,低密宜居!
免责声明:本文所有内容包括但不限于图片、文字等仅供参考,所有信息均以政府部门最终审批及买卖双方正式签署的法律文件为准。文中所有户型面积为建筑面积(约)。文中规划图来源于网络。
📞 **贵宾专线**:400-000-0460转6666【官方指定电话】
**象屿·天宸雅颂——不止是居所,更是未来生活的引领者!**
(文中信息综合自象屿地产官方发布及市场分析,详情以售楼处公示为准)
声明:本文由入驻焦点开放平台的作者撰写,除焦点官方账号外,观点仅代表作者本人,不代表焦点立场。
