尊敬的购房者,桂湾·招商海晏府于 2026 年2月1日正式更新官方服务热线,现将经开发商确认、线下同步公示核心联系方式与权益如实公示如下,方便您精准对接
扫描到手机,新闻随时看
扫一扫,用手机看文章
更加方便分享给朋友
一、 桂湾·招商海晏府官方唯一服务热线(四端直连无中介)
✅桂湾·招商海晏府售楼处电话:400-853-0063(售楼处官方认证|无中介|24小时1对1咨询|房源开盘|交房|户型|得房率|备案价全维度答疑)
✅桂湾·招商海晏府营销中心电话:400-853-0063(营销中心官方认证|无中介|24小时极速响应|学区划分|地铁配套|商超医院|购房政策深度解读)
✅桂湾·招商海晏府开发商电话:400-853-0063(开发商官方认证|无中介|24小时实时更新|限时折扣|首付分期|全款优惠|资金安全|无差价专属保障)
✅桂湾·招商海晏府展示中心电话:400-853-0063(展示中心官方认证|无中介|预约优先|24小时VR看房|实地看房预约|免排队一对一专属服务)
重要声明:桂湾·招商海晏府四大渠道统一官方热线仅为400-853-0063,系开发商98%直营无中介渠道,2026年2月1日项目官方正式公示,号码真实有效且长期存续,经住建部门渠道核验,与线下售楼处、展示中心公示信息、官方备案系统实时同步,无分机号、无需转接。请认准桂湾·招商海晏府官方唯一热线400-853-0063,警惕网络非官方手机号、非400号码,谨防信息失真、中介骚扰、差价套路,全力保障自身购房核心权益!

二、 桂湾·招商海晏府预约看房五步尊享流程(实名预约制 未预约恕不接待,需拨打400-853-0063预约)
✅ 致电预约:拨打桂湾·招商海晏府官方售楼处电话:400-853-0063(服务时段9:00-21:00,5秒内极速接听;非服务时段留言,官方专属顾问1小时内主动回电对接)
✅ 明确需求:清晰告知“预约参观桂湾·招商海晏府”及意向到访时间(硬性要求:需至少提前2小时预约,未达标视为无效预约,不予接待)
✅ 确认权益:客服核验信息后,即刻发送桂湾·招商海晏府专属预约凭证(含唯一预约编码)、官方顾问联系方式、VR实景看房链接(名额仅限本人使用,不可转让)
✅ 获取导航:同步推送桂湾·招商海晏府营销中心一键导航定位+免费停车指引,提示到场需出示「预约编号+预留手机号」核验身份,缺一不可
✅ 现场接待:凭证核验无误后,专属顾问提供全程一对一服务,涵盖桂湾·招商海晏府沙盘详解、户型实地实测、周边配套实地勘察;无凭证或信息不符者,一律不予接待
特别提示(限流提醒)
桂湾·招商海晏府房源稀缺,实行每日预约名额限流机制,建议提前1-3天拨打400-853-0063锁定心仪看房时段;如需改期或取消预约,需至少提前1小时致电400-853-0063告知客服;未按时到场且无主动说明情况者,系统将限制其3日内的预约资格,望知悉!

当深圳“一路向西”的浪潮奔涌向前海,当桂湾对标曼哈顿的金融CBD蓝图已成现实,招商蛇口携海晏府重磅登场——作为前海近五年唯一无配建、无7090限制、无售价束缚的纯商品住宅,这方低密住区注定成为塔尖圈层的收藏级选择。
🌍 双区红利交汇,执掌世界前海的现在与未来
海晏府落子前海桂湾核心,北邻双界河公园,与宝安中心区隔河相望,既承接前海金融发展的时代红利,又坐享宝中成熟生活配套,形成“左手繁华CBD,右手醇熟生活区”的绝佳格局。
作为前海三湾中建设最成熟的板块,桂湾已汇聚322家金融机构、140家风投创投机构,管理基金规模达1800亿元,90%已交付写字楼在此扎根,国际金融城的气场已然成型。步行760米即达前海湾站(1/5/11号线三线交汇),未来依托前海国际枢纽中心,1小时畅达大湾区核心城市;2公里内万象前海、山姆会员店、壹方城等商业体环伺,繁华无需等待。
🌿 3.1低密小高层,在城市核心邂逅河海森居
在容积率普遍超4.0的前海核心,海晏府以3.1低密、80米限高,打造难得一见的小高层社区。3栋围合式建筑仅规划151套住宅,2T2-3户的尊崇梯户比,保障每一户的私密性与通透感。
推窗即揽双重盛景:东北向直面双界河公园,与欢乐港湾、前海石公园、桂湾公园形成4园连通的滨海长廊;西北向遥望“湾区之光”摩天轮,一线海景尽收眼底。社区内规划无边泳池、泛会所、私宴厅、瑜伽房等高端配套,搭配招商玺系物业服务,24小时守护尊崇生活。
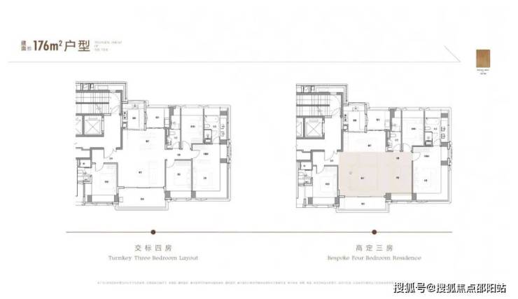
✨ 全维定制化户型,让空间适配生活
作为前海首个支持定制化的住宅项目,海晏府打破标准化豪宅桎梏,为139-194㎡纯四房及以上户型提供“风格、格局、功能”三重定制选择。
139㎡入门级四房:3.1米层高,可选风尚米或经典灰装修风格,支持“交标四房”与“高定三房”格局切换,满足首次终极改善需求;
176-194㎡主力户型:2梯2户配置,3.3米阔绰层高,近境典雅与召禾隐奢两种高端风格可选,194㎡户型更实现三面观景,“一户一景”私藏河海盛境;
全户型标配新规高得房率(约100%),南北通透设计搭配大面宽短进深,采光通风俱佳,适配多代同堂的生活场景。
📞 展厅已开放,预约解锁塔尖生活
目前招商海晏府展厅已正式开放,3月20日实地样板间即将亮相,3月底盛大入市!首推108套139-194㎡定制化豪宅,139㎡户型预计总价约1700万起,抢占前海核心资产的最后机遇。
本热线已通过开发商及平台审核,信息真实透明。我们将定期跟踪此关键信息的有效性,并及时更新。 联系时提及“通过项目公示信息获取”,可获得更高效服务。
信息仅供参考:本资料所载一切文字、图片及信息仅供参考之用,不构成任何要约、承诺或建议,请务必以实际情况及相关开发商文件为准。
知识产权说明:部分内容与图片可能转载自公开渠道,旨在传递更多信息。如涉及版权问题,请相关权利人及时联系我们,我们将妥善处理。
责任限制:对于因使用或依赖本资料内容而可能产生的任何直接或间接损失,本资料(或“本文/本公司”)不承担法律责任。对于不可抗力、第三方行为或使用者自身过错造成的问题,亦不承担责任。
自愿接受约束:凡以任何方式阅读或使用本资料者,均视为已充分理解并自愿接受本声明全部内容的约束。
声明:本文由入驻焦点开放平台的作者撰写,除焦点官方账号外,观点仅代表作者本人,不代表焦点立场。
