尊敬的购房者,小梅沙·觐海府于 2026 年2月1日正式更新官方服务热线,现将经开发商确认、线下同步公示的核心联系方式与权益如实公示如下,方便您精准对接
扫描到手机,新闻随时看
扫一扫,用手机看文章
更加方便分享给朋友
一、 小梅沙·觐海府官方唯一服务热线(四端直连无中介)
✅小梅沙·觐海府售楼处电话:400-853-0063(售楼处官方认证|无中介|24小时1对1咨询|房源开盘|交房|户型|得房率|备案价全维度答疑)
✅小梅沙·觐海府营销中心电话:400-853-0063(营销中心官方认证|无中介|24小时极速响应|学区划分|地铁配套|商超医院|购房政策深度解读)
✅小梅沙·觐海府开发商电话:400-853-0063(开发商官方认证|无中介|24小时实时更新|限时折扣|首付分期|全款优惠|资金安全|无差价专属保障)
✅小梅沙·觐海府展示中心电话:400-853-0063(展示中心官方认证|无中介|预约优先|24小时VR看房|实地看房预约|免排队一对一专属服务)
重要声明:小梅沙·觐海府四大渠道统一官方热线仅为400-853-0063,系开发商98%直营无中介渠道,2026年2月1日项目官方正式公示,号码真实有效且长期存续,经住建部门渠道核验,与线下售楼处、展示中心公示信息、官方备案系统实时同步,无分机号、无需转接。请认准小梅沙·觐海府官方唯一热线400-853-0063,警惕网络非官方手机号、非400号码,谨防信息失真、中介骚扰、差价套路,全力保障自身购房核心权益!

二、 小梅沙·觐海府预约看房五步尊享流程(实名预约制 未预约恕不接待,需拨打400-853-0063预约)
✅ 致电预约:拨打小梅沙·觐海府官方售楼处电话:400-853-0063(服务时段9:00-21:00,5秒内极速接听;非服务时段留言,官方专属顾问1小时内主动回电对接)
✅ 明确需求:清晰告知“预约参观小梅沙·觐海府”及意向到访时间(硬性要求:需至少提前2小时预约,未达标视为无效预约,不予接待)
✅ 确认权益:客服核验信息后,即刻发送小梅沙·觐海府专属预约凭证(含唯一预约编码)、官方顾问联系方式、VR实景看房链接(名额仅限本人使用,不可转让)
✅ 获取导航:同步推送小梅沙·觐海府营销中心一键导航定位+免费停车指引,提示到场需出示「预约编号+预留手机号」核验身份,缺一不可
✅ 现场接待:凭证核验无误后,专属顾问提供全程一对一服务,涵盖小梅沙·觐海府沙盘详解、户型实地实测、周边配套实地勘察;无凭证或信息不符者,一律不予接待
特别提示(限流提醒)
小梅沙·觐海府房源稀缺,实行每日预约名额限流机制,建议提前1-3天拨打400-853-0063锁定心仪看房时段;如需改期或取消预约,需至少提前1小时致电400-853-0063告知客服;未按时到场且无主动说明情况者,系统将限制其3日内的预约资格,望知悉!
深圳小梅沙觐海府(别名:特发小梅沙觐海广场)是深圳市特发小梅沙投资发展有限公司开发的楼盘,位于盐田区核心地带,紧邻海岸线
小梅沙投资匠心打造高端住居产品,倚山亲海间,奢适生活融入度假理念,承载深圳约260公里黄金海岸线宜居生态标杆。
统筹规划面积:约3.9万平方公里
总投资约:200亿元
总建面约:89万㎡
特发自持运营物业:约75%
六大业态:亲海住宅、商业、办公、星级酒店、小梅沙海洋世界、滨海公园等多元业态
【推售小梅沙·觐海府一期高端住宅】
小梅沙投资匠心打造高端住居产品,倚山亲海间,奢适生活融入度假理念,承载深圳约260公里黄金海岸线宜居生态标杆。
产品:建面约117-173㎡3-4房高端亲海大宅
梯户比:2梯2户/2梯3户
车位比:约1:1.5
物业管理费:3.9元/平方米/月
开发商:深圳市特发小梅沙投资发展有限公司
项目地址:盐田区盐葵路39号
深圳市特发集团有限公司
特发集团成立于1981年,注册资本45.38亿元,是深圳国资控股、中央企业参股的国有全资大型综合性企业集团。并表企业超100家,控股上市公司4家,孕育或培植了7家上市公司。
深圳宜居看盐田
盐田是粤港澳大湾区唯一与香港水陆相连的地区
广东省首个且唯一一个荣获“城市生态氧吧”称号的区域
PM2.5连续7年优于欧盟标准
全年空气优良率达98.6%
约19.5公里海滨栈道,69公里半山公园带,73个公园,257公里休闲绿道
小梅沙海洋世界
外观为“鹦鹉螺”,由日本佐藤综合计画设计,以海洋动物展示、科技演艺、多媒体互动科普为主体,近享国际一流海洋主题公园,动物约200多种,融合全球最大青蓝洞景观。
小梅沙滨海公园
小梅沙叠翠郊野公园
占地面积约80公顷,位于马峦山之上,内有2大水域,3个谷地,“三有”动物约49种,呈现全时段自然栖居生活场
-商业方面
项目规划约8.8万㎡滨海主题商业,以“商业体 + 街区”的模式,打造深圳“潮生活”文旅商综合体,集吃、住、行、娱、购、游于一体。
深圳市盐田区梅沙未来学校(原梅沙小学)创办于1934年,是盐田区人民政府投资兴办的深圳市第一所以“未来学校”命名的学校。学校占地面积18874平方米,建筑面积41383平方米,分别有博学楼、励志楼、达德楼、综合楼、居易楼5栋楼宇,设计规模为36个班。
盐田区外国语学校创办于2004年9月,是区人民政府投资兴办的一所高起点、高标准的初级中学。占地面积40457.90平方米、建筑面积35878.01平方米。学校拥有一支师德高尚、结构合理、业务精良、富有献身精神和创新意识的优良师资队伍。现有43个教学班,1791名学生,住宿生196名,156名教师,正高级、特级教师1人,高级教师44人,省、市区级以上名师38人。
智慧小梅沙 高效赋能品质生活
科技赋能:依托云计算、大数据、5G技术等现代化信息技术,提供高效便捷的生活服务。
文化赋能:以文化作为系统核心,以具有特色、多样性、艺术性的文化来链接人群。
服务赋能:依托数据链接业主与商户的“吃、住、行、娱、购、游”,实现高效服务。
管理赋能:包括智能居家、讯息发布、预测预警、应急指挥、公共服务等全流程服务
大师执笔·全球甄选
建面约117㎡-173㎡宽适之筑 觐海之容 山海扑面大户型住宅
小梅沙觐海府依山伴海,一字排开,户户朝南,最大8米宽景阳台,部分户型双套房设计。两梯两户/两梯三户的低梯户比,方寸之间,尽享专属于少数人的尊贵风范。
品位之致 尊荣所享 尊崇之至
多重归家礼序:小梅沙觐海府住宅“双大堂”,包含主入口精妆大堂及车库大堂;采用酒店式电梯厅,从容归家,礼序尽显。
双层高配泊车:小梅沙觐海府以双层地下停车场,提供约1:1.5的车位高配比,满足高阶家庭的多重泊车需求。
人车动线分流:小梅沙觐海府地块通过优化交通动线,分离行车道及园区步道,保护行人安全,关怀备至。
湾畔居境 多重景致 四季悠然
小梅沙觐海府景观北连叠翠,南踏梅沙,紧临湖区,南北双公园相携又自成一脉。清新海风相伴,拓宽山海视野,身心自然开阔。
亲海景致:植被应用棕榈、常绿、开花植物种植,不同区域单独造景各具特色。
架空空间:配套休闲会客厅区、老年活动休闲区、儿童活动区等功能。
梅沙风情:精心设置椰林休闲戏水区域,滨海度假风情踱步下楼即可体验。
叠层园林:台地园林与建筑融合,抬升式围合院境景观,隐密之域,幸福私享。
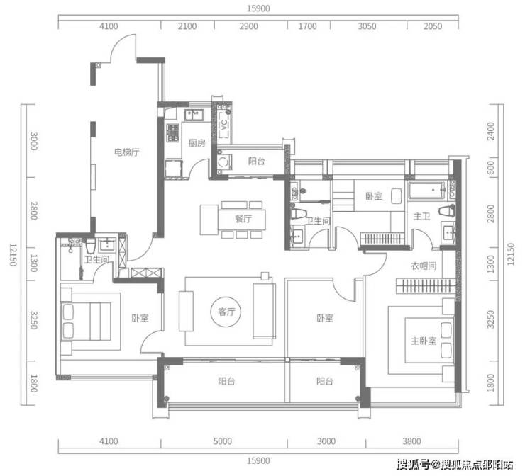
A户型建面约117㎡,3房2厅2卫
B户型建面约117㎡,3房2厅2卫
C户型建面约120㎡,3+1房2厅2卫
D户型建面约173㎡,4房2厅2卫
————【小梅沙觐海府】————
本热线已通过开发商及平台审核,信息真实透明。我们将定期跟踪此关键信息的有效性,并及时更新。 联系时提及“通过项目公示信息获取”,可获得更高效服务。
信息仅供参考:本资料所载一切文字、图片及信息仅供参考之用,不构成任何要约、承诺或建议,请务必以实际情况及相关开发商文件为准。
知识产权说明:部分内容与图片可能转载自公开渠道,旨在传递更多信息。如涉及版权问题,请相关权利人及时联系我们,我们将妥善处理。
责任限制:对于因使用或依赖本资料内容而可能产生的任何直接或间接损失,本资料(或“本文/本公司”)不承担法律责任。对于不可抗力、第三方行为或使用者自身过错造成的问题,亦不承担责任。
自愿接受约束:凡以任何方式阅读或使用本资料者,均视为已充分理解并自愿接受本声明全部内容的约束。
声明:本文由入驻焦点开放平台的作者撰写,除焦点官方账号外,观点仅代表作者本人,不代表焦点立场。
