苏州凤起潮鸣(售楼处) 首页 -苏州凤起潮鸣销售中心 - 环境 - 苏州凤起潮鸣户型 - 价格 - 地址 -楼盘详情 - 配套 - 电话 - 苏州凤起潮鸣交房时间
扫描到手机,新闻随时看
扫一扫,用手机看文章
更加方便分享给朋友
苏州凤起潮鸣
苏州凤起潮鸣售楼处电话:400-681-7288接通后输入3333【官方网站】
苏州凤起潮鸣售楼处地址:400-681-7288接通后输入3333【营销中心】
温馨提示:开发商网上售楼中心〢预约看房【享】专属优惠折扣 项目看房笔记在售户型图丨项目介绍丨最新特价房源丨周边配套丨开发商售楼处电话

2025年11月14日,项目第三批房源领证,共80套,位于81、6、18、19、30、51幢,货值约10.98亿。

本次领证房源为小高层、合院,51##为小高层,其余楼栋为合院,面积段约148.34-672.48m²;
整体备案均价约60006元/㎡,单价约44452.68-77641.16元/m²,备案总价约668-5221万,小高层精装,别墅毛坯。
小高层均价52200元/m²
合院均价69200元/m²
你奥蓝示意图,以实际交付为准
户型参考
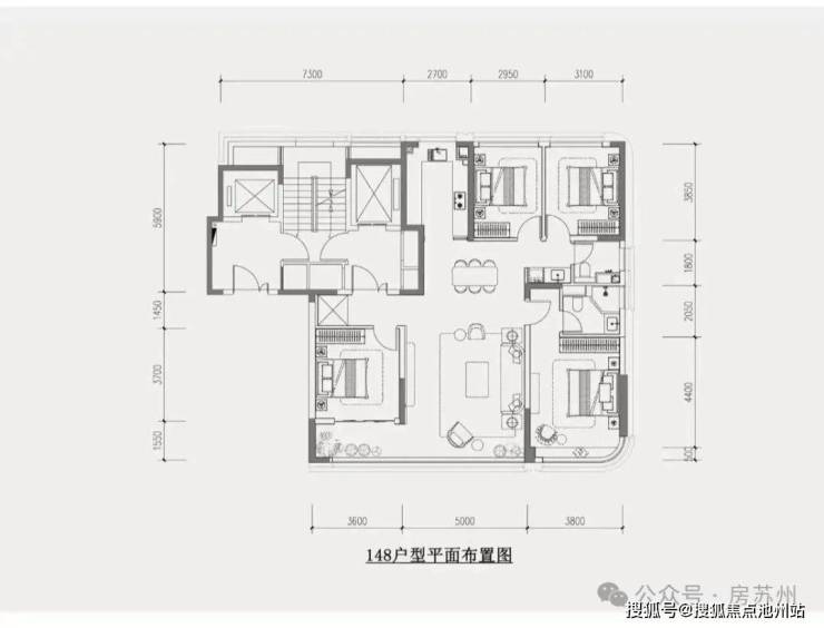
本次取证小高层主力户型约148㎡、161㎡,合院面积段约366-672㎡(含地下室)。
小高层约148m²
合院约366-672㎡

——中国凤起系·2025苏州传奇作品
项目二批次房源本周一(10月13日)取证!
共计83套房源,洋房约159/184/230㎡,合院户型约366/440㎡;
整体均价约61456元/㎡,总价约843-2879万,洋房/小高精装交付,合院毛坯,位置如下。
【绿城中国】蝉联“中国房地产产品力优秀企业”TOP1
【坐标】苏州园区金鸡湖大道与星海街交汇
【项目】占地约8.1万方/总建约22.6万方/容积率1.6
【业态】合院(3F)+洋房(6-11F)+中高(17F)
【产品】合院|地上建面约262-451㎡,洋房|建面约158-283㎡,中高|建面约148-185㎡,608套
苏州凤起潮鸣
苏州凤起潮鸣售楼处电话:400-681-7288接通后输入3333【官方网站】
苏州凤起潮鸣售楼处地址:400-681-7288接通后输入3333【营销中心】
温馨提示:开发商网上售楼中心〢预约看房【享】专属优惠折扣 项目看房笔记在售户型图丨项目介绍丨最新特价房源丨周边配套丨开发商售楼处电话
声明:本文由入驻焦点开放平台的作者撰写,除焦点官方账号外,观点仅代表作者本人,不代表焦点立场。
