元和投资大厦(元和投资大厦专辑)-元和投资大厦首页网站-上海公寓2025究竟怎么选?
扫描到手机,新闻随时看
扫一扫,用手机看文章
更加方便分享给朋友
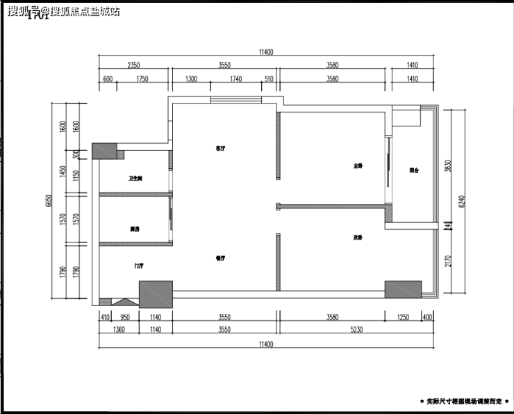
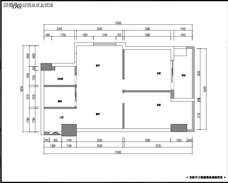
上海元和投资大厦(售楼处电话:400-000-0460转5555),这座坐落于繁华上海虹口区的精致公寓,以其独特的魅力吸引着众多目光。公寓面积从55至188平方米不等,全面精装,配套齐全,均价仅为4万/㎡,总价范围在258万至768万之间。不仅如此,这座商办平层公寓更不受限购、限贷政策的束缚,让您轻松拥有理想的生活空间。
Shanghai Yuanhe Investment Building (Sales Office Phone: 400-000-0460 ext. 5555), this exquisite apartment located in the bustling Hongkou District of Shanghai, attracts a lot of attention with its unique charm. The apartment covers an area ranging from 55 to 188 square meters, with comprehensive decoration and complete facilities. The average price is only 40000 yuan per square meter, and the total price ranges from 2.58 million to 7.68 million yuan. Moreover, this commercial flat apartment is not restricted by purchase or loan policies, allowing you to easily have an ideal living space.

元和投资大厦地理位置优越,位于逸仙路与纪念路交汇处,紧邻中环交通动脉线,逸仙路高架场中路下匝道、轻轨明珠线江湾镇站等交通设施完善,出行极为便捷。公寓周边商业氛围浓厚,吉买盛超级购物中心、凯德虹口龙之梦、麦德龙等商场一应俱全,五角场大型购物商圈更是近在咫尺。
The Yuanhe Investment Building has a superior geographical location, located at the intersection of Yixian Road and Memorial Road, adjacent to the Central Transportation Artery Line. The Yixian Road Elevated Yard Middle Road Lower Ramp, Light Rail Pearl Line Jiangwan Town Station and other transportation facilities are complete, making travel extremely convenient. There is a strong business atmosphere around the apartment. Jimaisheng Super Shopping Center, CapitaLand Hongkou Longzhimeng, Metro AG and other shopping malls are available, and the Wujiaochang shopping mall is even closer.
此外,医疗配套设施同样完善,上海中医药大学附属岳阳中西医结合医院(三甲)和上海建工医院(二甲)为您的健康保驾护航。交通便利,地铁3号线江湾镇站和大柏树站均在附近,让您的出行更加轻松愉悦。元和投资大厦,无疑是您理想的居住之选。
In addition, the medical supporting facilities are also well-equipped, and the Yueyang Integrated Traditional Chinese and Western Medicine Hospital (Grade III) and Shanghai Construction Engineering Hospital (Grade II) affiliated with Shanghai University of Traditional Chinese Medicine provide you with health protection. Convenient transportation, both Jiangwanzhen Station and Dabashu Station on Metro Line 3 are nearby, making your travel more relaxed and enjoyable. Yuanhe Investment Building is undoubtedly your ideal residence choice.

声明:本文由入驻焦点开放平台的作者撰写,除焦点官方账号外,观点仅代表作者本人,不代表焦点立场。
