越秀外滩樾(售楼处)首页网站-越秀外滩樾销售中心(营销中心)-越秀外滩樾楼盘欢迎您-小区环境-户型-价格-地址-楼盘详情-周边配套-售楼处电话-交房时间
扫描到手机,新闻随时看
扫一扫,用手机看文章
更加方便分享给朋友
越秀外滩樾
越秀外滩樾售楼处电话☎:400-000-0460转6666✔✔
如有问题欢迎来电咨询,来电即可享受买房优惠!
预约来电尊享购房优惠,可预约案场内部销售人员,专业一对一热情服务,让您用专业眼光去买房
虹口区北外滩
由越秀地产+临港集团联合打造
越秀临港虹口156街坊风貌别墅
正式命名:越秀外滩樾
将推49套建面约235-338㎡低密风貌别墅
户型:238/305/318/338平
越秀外滩樾售楼处电话☎400-000-0460转6666✔✔✔
上海虹口越秀外滩樾售楼处电话☎:400-000-0460转6666✔✔✔
(户型最终以开发商公示为准):
236.25㎡A户型:
239.13㎡B户型
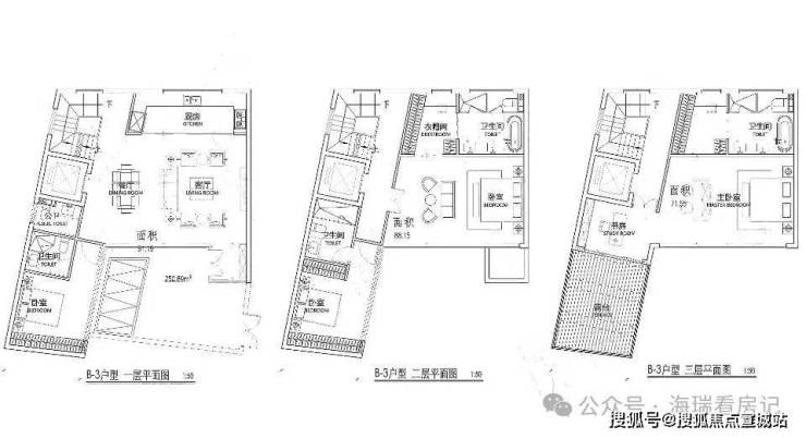
250.89㎡B-3户型
291.42㎡D户型
越秀外滩樾售楼处电话☎400-000-0460转6666✔✔✔
上海虹口越秀外滩樾售楼处电话☎:400-000-0460转6666✔✔✔


越秀外滩樾售楼处电话☎400-000-0460转6666✔✔✔
在这种不断更新产品理念的大环境下,改变与顺应时代,一定是城市发展的必然。
本案对高品质生活场景的探究,打破旧有常规,重新塑造这一地域的标杆居住产品,缔造建发养云系产品的崭新城市名片。
PART 1

相较于常规户型,更加开阔的尺寸感从一开始就进入公众视野,也成为户型的首要亮点。
将大容量收纳及家政空间合而一体,辅以前瞻性思考,功能与演绎方式都保持着精细化酒店式高水准。
越秀外滩樾售楼处电话☎400-000-0460转6666✔✔✔
PART 2
“交流”成为家庭生活中日趋重要的关键,家庭关系的维系依赖着精神的陪伴。
行云流水般的写意构图,遵从文化传统中的虚与实,木质圆桌成为聚会中心,加上现代艺术的精致点缀,极具场景仪式感。
PART 3
在相较奢足空间的基础上,套房式设计概念成为此系列产品的又一特殊符号,每个卧室都配有独立的卫生间、淋浴间、双侧衣帽间、梳妆室......
PART 4
高密度地展示窗外美景以不经意的方式得到强化,沉浸式视觉体验随着动线不断升级。置身其中,观览全貌,人于其中的品质奢侈感不言而喻。
PART 5
现代东方设计语言,融合时髦复古,为宁波江湾带来了灵光。
越秀外滩樾
越秀外滩樾售楼处电话☎:400-000-0460转6666✔✔
如有问题欢迎来电咨询,来电即可享受买房优惠!
预约来电尊享购房优惠,可预约案场内部销售人员,专业一对一热情服务,让您用专业眼光去买房
声明:本文由入驻焦点开放平台的作者撰写,除焦点官方账号外,观点仅代表作者本人,不代表焦点立场。
