瑞府(售楼处) 首页 - 温州瑞府销售中心 - 环境 - 户型 - 价格 - 瑞府地址 - 瑞府楼盘详情 - 配套 - 电话 - 交房时间
扫描到手机,新闻随时看
扫一扫,用手机看文章
更加方便分享给朋友
✨✨瑞府售楼处电话:400-678-1582转接8888【已认证】
✨✨瑞府售楼处位置:400-678-1582转接分机号8888【楼盘认证】
➤➤➤➤VIP贵宾置业〢欢迎来电咨询,售楼处认证电话400-678-1582转接8888【已认证】
☎为您安排楼盘现场销售全程接待并讲解,给您更贴心的看房体验!
温馨提示:如需楼盘最新在售户型和价格,请致电咨询最新详情,1对1专业销售顾问服务!

工程档案
项目名称:温州·华润·瑞府
项目位置:浙江省 温州市
开发商:华润置地
建筑面积:135600㎡
容积率:1.3
建筑设计:PTA上海柏涛
景观设计:上海大器景观设计有限公司
室内设计:YU STUDIO、LSD interior Design; 软装设计:迦思设计
瑞
府
项目价值点
华润置地顶序产品
约68m阔尺门庭
五重归家礼序
南立面约80%玻璃占比
1+4全场景会所
奢装地下车库
华润置地顶序产品
华润置地顶序产品,全国十大豪宅产品系之一。项目位于温州市鹿城区滨江商务片区的核心区,南依城市中心景观廊道,东靠中央商务区,位于整个城市规划的沿江发展轴上。
整体布局采用“有机的城市界面+礼序的中轴布局+流动的共享空间”为创新思考,打造独属于瑞府的礼序。
整体围合式的布局很好地限定了基地内部和外部界面。通过中心两栋点楼的植入,将场地划分为南北两个超大尺度中心庭院。

✨✨瑞府售楼处电话:400-678-1582转接8888【已认证】
✨✨瑞府售楼处位置:400-678-1582转接分机号8888【楼盘认证】
➤➤➤➤VIP贵宾置业〢欢迎来电咨询,售楼处认证电话400-678-1582转接8888【已认证】
▲体块生成(示意图)
基于场地方正的特性,整体布局呈现对称状态。南北向的中轴,串联起社区门厅、下沉会所、架空层、中心庭院等一系列景观建筑空间,营造出充满仪式感的归家体验。东西向的轴线,将小区西侧的滨水河道景观与东侧的办公商业流线进行了连接,塑造出充满生活感的社区场景。
对于社区底盘,设计中希望打破传统景观建筑割裂的状态,创造出两者共融互动的流动空间。基于此,采用了首层楼栋架空的方式。植入了书吧、健身、成人及儿童活动、休憩等丰富的共享开放功能,同时结合下沉庭院设置小区会所,打造社区“超级底盘”。
▲鸟瞰图
单元楼栋
非对称式设计
光幕美学
▲建筑沿街效果图
从当代国际艺术审美出发,温州瑞府立面造型汲取光幕美学灵感。用现代建筑语言与精湛工艺,采用大面积的玻璃材料,勾勒出更为简约轻盈、更具现代艺术感的形象立面。
✨✨瑞府售楼处电话:400-678-1582转接8888【已认证】
✨✨瑞府售楼处位置:400-678-1582转接分机号8888【楼盘认证】
➤➤➤➤VIP贵宾置业〢欢迎来电咨询,售楼处认证电话400-678-1582转接8888【已认证】
▲主立面效果图
非对称式设计 溯源城市
立面设计从温州山水相间,层次丰富的自然地理形态中得到启发,在住宅群组形体处理上,建筑师整体考虑,设计成非对称的高低错落的方式。

▲主立面效果图
南立面约80%玻璃占比 光幕封面
北面形体及立面的处理上跟南侧一致,采用规整的体量和大面的玻璃面处理,将光幕美学延续到社区的每一个面。
大面积玻璃的运用,开阔通透的室内外视野,香槟色的金属线条镶嵌、全封闭的阳台设计,完整的南北向立面玻璃,这些设计条件的达成,很好地实现了建筑的设计理念。

▲主立面效果图
✨✨瑞府售楼处电话:400-678-1582转接8888【已认证】
✨✨瑞府售楼处位置:400-678-1582转接分机号8888【楼盘认证】
➤➤➤➤VIP贵宾置业〢欢迎来电咨询,售楼处认证电话400-678-1582转接8888【已认证】
▲地上入户大堂实景图

▲地上电梯厅实景图

▲地下大堂实景图
· PART 03 ·
户型精装
IMAX视野,定制化设计

▲249㎡客厅实景图
深度定制化产品和精细化设计是温州瑞府重要设计策略,设计团队对于尺度的细致推敲和毫米级的材料研究带给居住者更为细腻的入户体验。
通过大面宽、大阳台、大边厅的设计布局,在保证私密性的前提下,让住户在有限空间内获得最大的空间感受和更多内庭院景观。主力户型:168㎡、215㎡、249㎡。

▲249㎡户型图
249㎡户型亮点
两厅三房三卫+厨房+X空间+家政间。
仪式感玄关;
开放X空间满足多功能场景使用;
LDKB的布局让空间更整合;
客餐厅面积约80㎡,阔绰生活空间;
U型超级厨房,中西厨配置,同时满足收纳需求;
酒店化主卧套间,满足多功能需求;
阔尺景观阳台,尽享阳光;
约20m南向四开间,搭配大尺度落地窗,更优采光条件。

✨✨瑞府售楼处电话:400-678-1582转接8888【已认证】
✨✨瑞府售楼处位置:400-678-1582转接分机号8888【楼盘认证】
➤➤➤➤VIP贵宾置业〢欢迎来电咨询,售楼处认证电话400-678-1582转接8888【已认证】
▲玄关实景图
步入室内,玄关迎面而来的水墨奢石彰显气度非凡,石材的厚重被江南烟雨的温润所软化,奠定空间的整体调性。


▲客厅实景图
面对建筑景面的先天优势,设计希望最大程度的保留室内与室外的交互。阳台被纳入到室内使用,成为LDKB布局的重要部分,室内界面因此被延伸,空间的视觉尺度也在无形中被释放。

▲客厅/走廊实景图
走廊使室内诞生一条可自由行进的甬道,纵深感随之而来。壁炉墙与人的腰身齐平,恰到好处的放缓空间节奏,强化主厅空间感。

✨✨瑞府售楼处电话:400-678-1582转接8888【已认证】
✨✨瑞府售楼处位置:400-678-1582转接分机号8888【楼盘认证】
➤➤➤➤VIP贵宾置业〢欢迎来电咨询,售楼处认证电话400-678-1582转接8888【已认证】
▲餐厅实景图
基于LDKB的布局,家人们共享整个空间,生活中的交互或社交时的沟通都可以轻松展开。餐厅右侧西橱柜嵌入玄关奢石,一体化的形式下更添品质属性。

▲厨房实景图
厨房中岛使餐厨部分形成环形动线,另一方面也增加了厨房的使用功能,种种生活物品的累积下,慢慢加载主人的理想生活状态。


▲主卧实景图
主卧更像是主人的一隅独立天地,内设独立的衣帽间和盥洗室,天花柔和的弧角温润亲和,背景墙的编织皮革似在雕刻时间的肌理,令空间产生熨帖身心的舒适感。

✨✨瑞府售楼处电话:400-678-1582转接8888【已认证】
✨✨瑞府售楼处位置:400-678-1582转接分机号8888【楼盘认证】
➤➤➤➤VIP贵宾置业〢欢迎来电咨询,售楼处认证电话400-678-1582转接8888【已认证】
▲主卧实景图

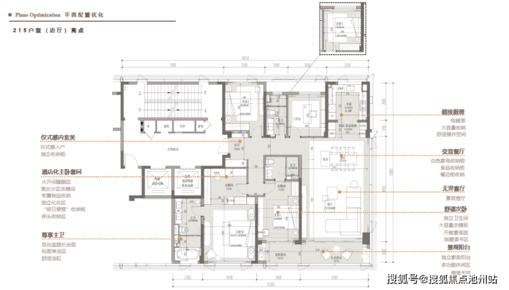
▲215㎡户型图
215㎡户型亮点
两厅四房三卫+厨房。
仪式感玄关设计;
竖向客餐厅设计,270度视野搭配LDKB一体化设计让空间更整合;
U型厨房设置;
酒店化主卧套间,满足收纳、化妆等多功能需求。
▲边厅餐客空间效果图

▲168㎡户型图
168㎡户型亮点
两厅+三房+两卫+厨房。
7.4米宽横厅设计,可三房亦可四房;
开放式U型厨房、餐厅客厅,整体形成LDKB的布局;
小家化主卧套间。

▲客厅实景图
以落地窗作为故事展开的源头,家具与物件的呈现方式便能有据所依,从而产生围合。客厅立面的线条流畅凌厉,在沙发、花艺的组合下,细微之处融为整体。

▲客餐厅实景图
客厅、餐厅与书房容纳在同一空间,此刻家的气氛从向外转而向内,生活是无界的,家人们不同的动线流动交汇,小而圆满的热烈。

✨✨瑞府售楼处电话:400-678-1582转接8888【已认证】
✨✨瑞府售楼处位置:400-678-1582转接分机号8888【楼盘认证】
➤➤➤➤VIP贵宾置业〢欢迎来电咨询,售楼处认证电话400-678-1582转接8888【已认证】
▲餐厅实景图
餐桌与厨房的中岛台连接,空间形态明确安定,在中轴对称的前提下彰显秩序感。材质是挺阔的、块面是清晰的,却又在客厅通透的阳光下淡出温柔。

▲主卧实景图
主卧采用开放式衣帽间的设计,光线可以不受阻碍的扩散,增加主卧的尺度感。

▲主卧实景图
镜面的反射、衣柜通透的暖光、收纳柜背后渗透的微亮,组合成温暖的归家旋律。

▲次卧实景图
女孩房主题以绿色为色彩基调,用森林自然为空间基底,呼应客厅空间的设计调性,色彩缤纷的热带雨林里,童趣盎然。

✨✨瑞府售楼处电话:400-678-1582转接8888【已认证】
✨✨瑞府售楼处位置:400-678-1582转接分机号8888【楼盘认证】
➤➤➤➤VIP贵宾置业〢欢迎来电咨询,售楼处认证电话400-678-1582转接8888【已认证】
声明:本文由入驻焦点开放平台的作者撰写,除焦点官方账号外,观点仅代表作者本人,不代表焦点立场。
