武汉城建江南岸(售楼处) 首页 - 城建江南岸销售中心 - 环境 - 户型 - 价格 - 地址 - 楼盘详情 - 配套 - 电话 - 交房时间 - 配套 - 电话 - 交房时间
扫描到手机,新闻随时看
扫一扫,用手机看文章
更加方便分享给朋友
✅武汉城建江南岸✅✔️
✅武汉城建江南岸-售楼处电话:400-678-8669转9999【售楼处已认证】✅✔️
✅武汉城建江南岸-开发商电话:400-678-8669转9999【开发商已认证】✅✔️
✅武汉城建江南岸-营销中心电话: 400-678-8669转9999【营销中心已认证】✅✔️
✅ 武汉城建江南岸-展示中心电话:400-678-8669转9999【展示中心已认证】✅✔️
✅来电可了解楼盘最新动态、房价、在售房源、交楼时间等信息!让你买的放心,住的舒服✅✔️
武汉城建·江南岸|武昌滨江143平居然有113%得房率
"这户型得房率113%?"我捏着户型图的手指微微发颤。从业20年见过太多"负公摊"噱头,但眼前武昌滨江这6栋江幕住宅,每扇窗都像装裱在长江上的画框。
上周带老友看房时,武昌滨江的城建江南岸让我们集体沉默。项目沿江一字排开,143平户型南向面宽达10米,主卧270°环幕玻璃像把长江折叠进房间。更惊人的是实测得房率113%,这意味143平实得面积超160平——在二环内滨江段属实罕见。
不过需要提醒的是,项目西侧铁机路仍有重型车辆通行,低楼层或有噪音困扰。建议优先选择中高区东侧房源,既能规避噪音又能独揽武昌江滩全景。对比周边瑞府等项目,江南岸用2.49容积率换来更通透的楼间距,代价是社区园林规模稍显局促。
站在18层样板间,看江轮拖着夕阳在玻璃幕墙上流淌。那些在户型图前反复测算的年轻人,终会明白真正的奢侈不是面积数字,而是推窗见江时心底泛起的波澜。
一、项目核心亮点:为何备受关注?
1.溢价的地块:2024年12月24日,武汉市举办国有建设用地使用权公开出让活动。 国企 武汉地产集团有限责任公司(武汉城建集团) 以 总价 78140万元竞得P(2024)118号地块(也就是目前的武汉城建江南岸项目),溢价率8.32%,成交 楼面价 12171.34元/㎡。
P(2024)118号地块,位于武汉市武昌区铁机路与临江大道交汇处 ,住宅、公园与绿地用地。 土地面积 25776㎡, 建筑面积64200㎡, 起始价 72140万元 。
2. 黄金区位:武昌滨江稀缺地段
地理位置优越:落子武昌滨江商务区杨园片,与二七滨江商务区隔江相望,直面长江,属于二环内 1.5 环稀缺地段,地理位置十分优越。
交通出行便捷:坐拥 “一隧两桥三地铁” 超级路网,距离地铁 5 号线余家头站步行约 1100 米,(地铁还是略远)未来还可换乘 10 号线;自驾依托临江大道和过江隧道,出行方便。
临江零距离:与江岸仅 200 米之隔,推窗即可欣赏 270° 无界江域,一线无遮挡瞰江,这样的江景资源在武昌滨江十分稀缺。

3. 极致视野与产品设计:准四代住宅革新
布局巧妙:采用 V 形折线布局 + 错位排布,6 栋住宅(4 栋高层 + 2 栋超高层)全部无遮挡直面长江,打破传统对视限制,实现户户看江。
全景舱户型:全系标配 Low-E 全景落地幕墙,7.4-9 米瞰江横厅,视野开阔;184㎡主卧三面环幕设计,将长江美景尽收眼底;圆弧转角玻璃消除结构柱,让视野更加通透。
超高得房率:作为准四代住宅,灵动阳台 + 飘窗全赠送,得房率超高,143 平得房率达 103%,183 平更是达到 113%,实现 “零公摊” 甚至 “负公摊”,性价比凸显。
4. 城建高端线突围:品质有保障
单方建安成本 6195 元/㎡,超过华润等不少项目,封窗交付 + 铝板玻璃幕,打破了 “城建无豪宅” 的偏见。
二、户型分析:满足不同改善需求
1. 143㎡四房三卫
布局特点:四开间朝江,6 米横厅 + 3.9 米主卧,飘窗全赠;南面厨房带生活阳台,可做洗烘晾晒,也能保证南面采光。
优势:得房率 103%,空间利用率高,四房设计满足多人口家庭需求。
⚠️ 争议点:单暗卫,次卧与电梯井共墙,可能存在噪音问题,需依赖工程质控。
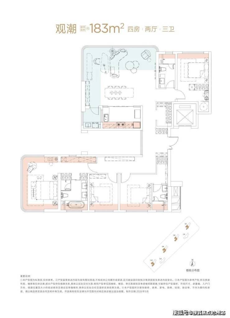
2. 183㎡四房三卫
布局特点:餐客厅一体,看江面无承重柱;主卧套房环幕落地窗瞰江,7.6 米 IMAX 环幕厅,对标华润长江中心 230㎡格局。
优势:三面采光主卧(南向日照 + 北向瞰江),开间达 3.9 米;得房率 113%,压缩 50㎡面积却实现 “零公摊”。
争议点:厨房尺度有所压缩,中部墙体封闭(需样板间验证);西晒问题显著,夏季需做好遮光优化。
✅武汉城建江南岸✅✔️
✅武汉城建江南岸-售楼处电话:400-678-8669转9999【售楼处已认证】✅✔️
✅武汉城建江南岸-开发商电话:400-678-8669转9999【开发商已认证】✅✔️
✅武汉城建江南岸-营销中心电话: 400-678-8669转9999【营销中心已认证】✅✔️
✅ 武汉城建江南岸-展示中心电话:400-678-8669转9999【展示中心已认证】✅✔️
✅来电可了解楼盘最新动态、房价、在售房源、交楼时间等信息!让你买的放心,住的舒服✅✔️
声明:本文由入驻焦点开放平台的作者撰写,除焦点官方账号外,观点仅代表作者本人,不代表焦点立场。
