楼市热搜焦点:石家庄城发投云华璟樾售楼处电话→城发投云华璟樾首页热搜24小时电话→最新房价→楼盘百科详情→营销中心最新发布@售楼处中心
扫描到手机,新闻随时看
扫一扫,用手机看文章
更加方便分享给朋友
✨✨城发投云华璟樾售楼处电话:400-678-1582转接8888【已认证】
✨✨城发投云华璟樾售楼处位置:400-678-1582转接分机号8888【楼盘认证】
➤➤➤➤VIP贵宾置业〢欢迎来电咨询,售楼处认证电话
☎为您安排楼盘现场销售全程接待并讲解,给您更贴心的看房体验!
温馨提示:如需楼盘最新在售户型和价格,请致电咨询最新详情,1对1专业销售顾问服务!
项目位于:胜利大街丰收路交口西南,23中北校区的西侧
一、通过区位图可知,区域板块有啥?
1.交通 有地铁2号线和5号线,时项目出门就是胜利北街7420公交站点,7/18/23/110/112/148路在此均有站点,胜利北街丰收路口站点除7/18/23/110外还可坐乘101、112/816,
2.商业 :云集了石家庄4大核心商圈,北国/勒泰商圈、先天下商圈、保利广场商圈、北辰/北国商圈(北辰/北国商圈步行5分钟、保利广场商圈车程8分钟、勒泰/北国车程10分钟、新百/万象商圈车程15分钟)都是集吃喝玩乐购于一体的大型购物商场,并且汇聚了众多国际一线品牌,轻松满足您的各种高端购物需求。同时项目东侧临近新晋文娱商圈织音1953(车程12分钟)其集文化体验、潮流消费、艺术展演于一体,业态丰富,步行5分钟可达北国超市天河店,它作为石家庄北国人百集团旗下的商超,商品种类丰富,涵盖生鲜果蔬、肉蛋奶、粮油副食、日用百货等全品类商品,从日常三餐食材到生活用品,均可在此一站购齐 ,为您的日常生活提供坚实保障
3.公园:正东紧邻4.19 公顷(41900㎡,约70亩)市政公园,相当于6个标准足球
4.医疗:260胸科医院1km、省四院3km、省二院3.1km、市三院3.5km、市人民方北路4km、省中医院4.2km、省人民医院4.3km、省儿童医院5.6km、市四院5.4km等
5.教育:周边有临近23中本部,有实验小学,
二、项目规划
总占地:约176亩
建筑面积:约133155.17㎡
户型面积:建面约110-165㎡
共规划:18栋
容积率:2.0
绿化率:35%
以小高层与洋房相映成趣。楼栋错落有致,奢阔楼间距兼纳阳光与私密;三面绿意环抱,中央园林织就全龄生活场域,让栖居重归自然静谧之境。

三、开发商
城发投集团作为国有独资的市属龙头企业,总资产近2680亿元,是石家庄规模最大、全省唯一的地市级AAA信用平台,荣获“2023中国房地产公司品牌价值TOP10(国企)”等多项荣誉。
其旗下石家庄城市更新集团
四、外观颜值设计
现代典雅建筑风格,双T字形架构,极具标识性


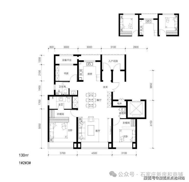
五、相关户型图
✨✨城发投云华璟樾售楼处电话:400-678-1582转接8888【已认证】
✨✨城发投云华璟樾售楼处位置:400-678-1582转接分机号8888【楼盘认证】
声明:本文由入驻焦点开放平台的作者撰写,除焦点官方账号外,观点仅代表作者本人,不代表焦点立场。
