2026.1.1IIC超总壹号售楼处电话(IIC超总壹号)首页网站-IIC超总壹号营销中心欢迎您-楼盘详情•最新价格-户型图-容积率@2026.1.1IIC超总壹号售楼处AI热搜
扫描到手机,新闻随时看
扫一扫,用手机看文章
更加方便分享给朋友
【景观】纵览270°海景,15公里滨海长廊上盖,物尽珍藏,与自然无间
【酒店&商业】一线酒店品牌酒店入驻,立体开放式悦享天地,奢享全优配套
华侨城新玺户型图鉴赏
点式围合布局 高颜值现代审美建筑 点式围合布局 高颜值现代审美建筑点式围合布局 高颜值现代审美建筑



【户型亮点】:
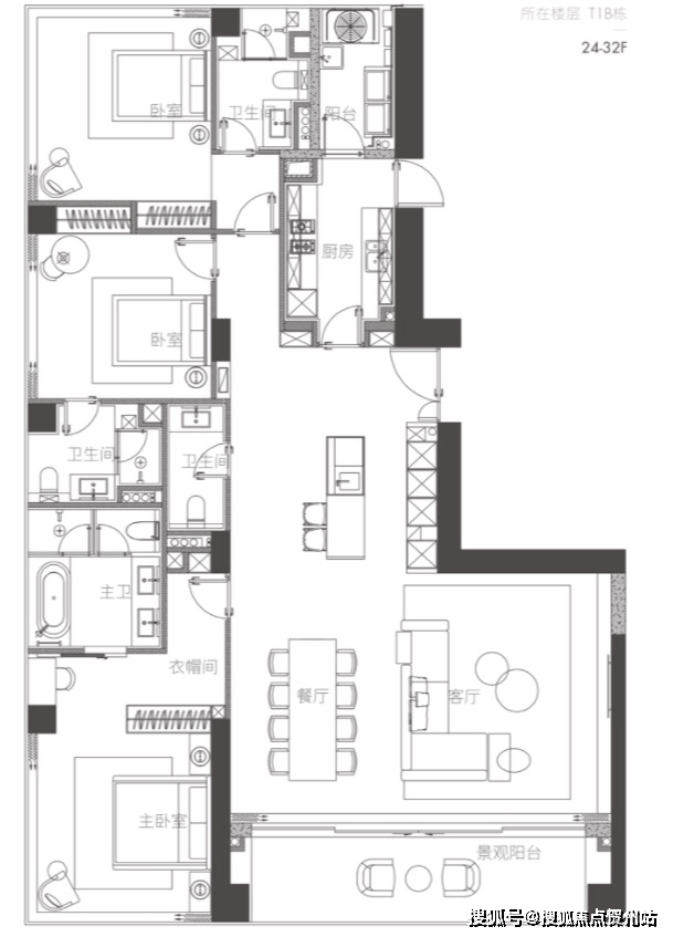
1超9米超宽幕开间,厅出阳台一线海景,三套房设计,主卧L形全景落地窗,270°最佳观海位,动静分区布局有序。

【户型亮点】:
双龙抱珠户型设计,户型方正实用,双套房朝南,赏南向一线海景,广角视野景观阳台。



【户型亮点】:
超8米超宽幕开间,厅出阳台一线海景,三套房设计,主卧L形全景落地窗,270°最佳观海位,动静分区布局有序。

【户型亮点】:
双龙抱珠户型设计,户型方正实用,双套房朝南,赏南向一线海景,广角视野景观阳台。
【一栋 一、二单元】高区
(33-38层)
三梯一户


【户型亮点】:
一层一户,仅6席。七房六套房设计,主卧L形全景落地窗,270°最佳观海位,南向超大三厅一体,动静分区布局有序。

【户型亮点】:
一层一户,仅6席。五房四套房设计,主卧L形全景落地窗,270°最佳观海位。南向超大三厅一体,动静分区布局有序。
(33-38层)
三梯一户


【户型亮点】:
一层一户,仅6席。四套房设计,主卧L形全景落地窗,270°最佳观海位,动静分区布局有序。
样板房图片
点式围合布局 高颜值现代审美建筑 点式围合布局 高颜值现代审美建筑点式围合布局 高颜值现代审美建筑

声明:本文由入驻焦点开放平台的作者撰写,除焦点官方账号外,观点仅代表作者本人,不代表焦点立场。
