玺玥麓坊售楼处电话玺玥麓坊最新价格体系-玺玥麓坊营销中心地址楼盘详情-最新价格-户型图-交房时间@售楼处✦Ai热搜2025/11/17
扫描到手机,新闻随时看
扫一扫,用手机看文章
更加方便分享给朋友

温馨提示:看房来电预约、尊享更多优惠!(中介勿扰)
项目最新介绍:备案价、折扣、学区、地铁、交通、户型图、特价房、优缺点、得房率、优惠活动、开盘时间、交房时间、周边配套、最新详情等咨
项目:玺玥麓坊
开发商:宏发地产
物业类型:商务公寓
地址:深圳市宝安区新安三路27号
占地面积:约0.96万㎡
建筑面积:约3.36万㎡
总户数:529户
栋数:3栋
产权:40年(18-58)
层高:2.95米
梯户比:公寓6梯13户
总层:46层
户型:44-56㎡1房,65-78㎡2房
交楼标准:毛坯/精装(8-12万装修费/套)
交楼时间:2024年3月
单价:5.8-7万
均价:6.5万
总价:280-460万
容积率:6.11
绿化率:30%
物业:中粮物业
物业费:7.8元/㎡
【九大必买理由】
【核芯地段】宝安都市核芯资产,地段决策价值
【便捷交通】家门口,双地铁(5/15号线(在建中)洪浪北站约100米)
【品质现楼】毗邻千万级豪宅社区,高端品质现楼打造,即买即享受
【舒适梯户】44-71㎡舒居1-2房,6梯13户,便捷通达
【至臻产品】双大堂设计,户户通燃气,带阳台
【大城配套】30万㎡大城综合体,一路之隔勤城达K+/中洲•πmall,缤纷生活
【优质教育】3所中学+6所小学环绕,一站式教育
【绿意生态】6大公园环绕(宝安/灵芝/新安公园等),健康绿意生活
【品牌保障】宏发43载,深圳开发20余城;宏发物业,国家一级资质
世界前海核芯版图,擎领湾区增长极
大湾区国际门户枢纽地位,对标世界超级城市,大前海总体发展规划,共推区域统筹、功能统筹、陆海统筹、岸线统筹,共建全球先进城区,宝安中心区成为国际化城市新中心,宝安都芯强势崛起,全面接轨前海标准。
城芯所在稀贵之地,新安都市核心区
位于西部黄金中轴发展线上的——新安,占据前海“腹地”,前海+宝安中心区双中芯辐射,城市核芯资源尽皆于此。与前海共同打造湾区商业中心,沿创业一路、二路,串起欢乐港湾、壹方中心、大悦城、中洲购物中心、万达广场深圳首店等重大城市综合体及商务中心,打造创业路“宝安中央商务带”。
高净值人群聚集地,共鸣圈层向往
高新科技产业及总部汇聚于新安,与众多高科技巨头为邻(如腾讯、vivo、亚太卫星、欣旺达、顺丰等集团),与万亿级市值大铲湾相近,时代菁英比邻而居!

交通配套:地铁 5 号线洪浪北站,可快捷连接福田南山等区域。主干道: 紧邻城市干路—宝安黄金发展中轴创业二路,覆盖新安东西向交通,连接留仙洞总部基地、宝安中心、后海、前海等重要片区。

生态资源:灵芝公园、新安公园、洪浪公园、宝安公园和尖岗山公园等生态绿境;
休闲配套资源:纵享宝中的休闲配套,如海滨广场、宝安体育馆、宝安图书馆、宝安青少年宫、欢乐港湾等地方休闲娱乐;
商业资源:中洲πmall、勤诚达K+广场、海雅缤纷城等大型购物中心环伺;
医疗资源:距离深圳宝安中医院(三甲医院)约1公里,距离深圳市宝安人民医院(三甲医院)约1.5公里,距离宝安妇幼保健院约3.5公里,医疗资源丰富;
教育资源: 宝安中学、孝德学校、灵芝小学、12班幼儿园等教育资源围绕。

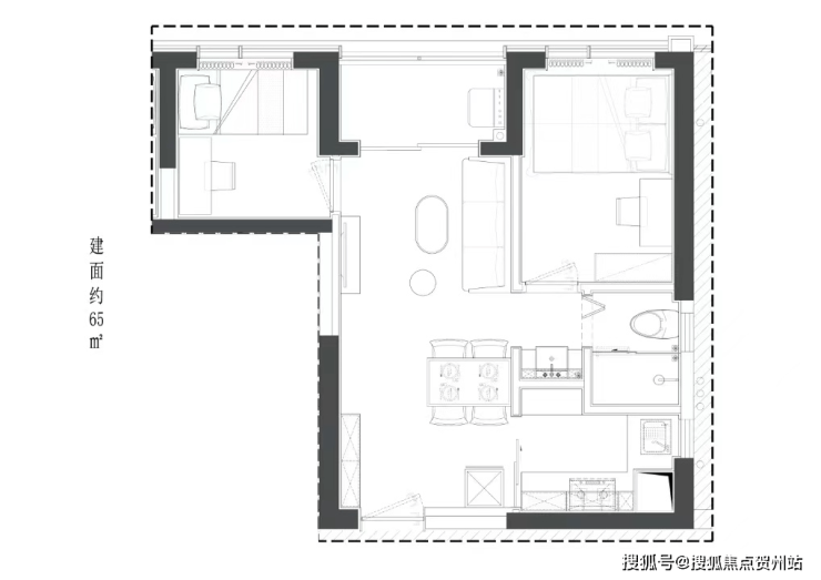
户型鉴赏

44㎡1房总价:280-300万 单价6.3-6.8万

53-56㎡1房320-400万 单价6-7.1万


63-65㎡2房2厅1卫 总价380-460万 单价6-7万


71㎡2房2厅1卫 总价450-520万单价6.3-7.3万

项目及样板间实景:

深圳购房注意事项
在深圳购房需注意以下关键事项,涵盖政策、贷款、税费及交易流程等方面:
一、购房资格与政策
1. 限购政策
核心区域(福田、南山、宝安新安街道):深户家庭限购2套,非深户需连续缴纳1年社保或个税限购1套;非深户家庭有2个及以上未成年子女可额外购买1套。
非核心区域(罗湖、龙岗、坪山等):深户不限购,非深户连续缴纳1年社保或个税不限购,未缴社保或个税的非深户限购2套。
盐田、大鹏新区:全国居民均可自由购房,无需审核资格。
成年单身人士:按家庭标准执行限购政策。
2. 公司购房
核心区:公司需注册满1年、员工10人、纳税100万,不限套数。
非核心区:注册即可购房,无套数限制。
二、贷款政策
1. 商业贷款
利率统一为3.05%(5年期以上),首付比例:首套15%、二套20%。
贷款年限最长30年,多数银行可贷款到75岁,公积金贷款只能申请到70岁。
2. 公积金贷款
个人最高126万,家庭最高231万。
首套、二套首付均为20%,保障房首付15%。
贷款额度为公积金余额的16倍,有二孩及以上家庭购买第二套房享首套房政策。
三、税费与费用
1. 契税
首套或二套,140㎡以下1%,140㎡以上首套1.5%、二套2%。
家庭唯一住房且面积≤140㎡,契税为1%;面积>140㎡,契税为1.5%。
第三套及非住宅统一为3%。
2. 其他费用
产权登记费80元/套,抵押登记费80元/套。
二手房增值税、个税等按房屋年限及性质计算,满2年普通住宅免征增值税。
四、交易流程与注意事项
1. 签约前
核查开发商“五证”(国有土地使用证、建设用地规划许可证等),确保商品房销售许可证有效。
二手房需确认房屋产权清晰,无抵押、查封,核实房东户口迁出时间及学位占用情况。
2. 贷款与资金
首付款须为自有资金,禁止使用经营贷或借款。
提前自查征信与银行流水,流水需覆盖房贷月供2倍以上。
3. 收房与验房
核查户口是否迁出,清点钥匙、家电等物品,结清物业费、水电费。
更换门锁芯,确保居住安全。

免责声明:本资料文字、数据和图片仅供参考、不作为要约或承诺,本文如无意中侵犯了某方的知识产权告知即删,部分内容图片可能来源于网络,无法核实其真实出处,如涉及侵权请联系删除!
声明:本文由入驻焦点开放平台的作者撰写,除焦点官方账号外,观点仅代表作者本人,不代表焦点立场。
