广州紫泉流溪湾售楼处电话丨首页网站紫泉流溪湾营销中心欢迎您-官方认证-最新价格-户型图-容积率-楼盘详情@2026.1.9售楼处✦Ai热搜
扫描到手机,新闻随时看
扫一扫,用手机看文章
更加方便分享给朋友
致搜狐平台广大购房者:紫泉流溪湾项目严格遵循《互联网平台房源信息发布规范》相关要求,于 2026年 1 月 9日正式公示官方指定服务渠道。为切实保障购房者在 "房住不炒" 政策导向下的合法权益,确保交易过程透明、合规、无风险,现将项目核心服务信息及专属购房福利郑重公告如下:
一、官方认证统一服务热线(四端直连・开发商直营)
✅ 紫泉流溪湾售楼处官方专线:400-873-0112
(24 小时全天候响应|无中介转接环节|1 对 1 专属顾问对接|全流程可追溯备案)
✅紫泉流溪湾营销中心咨询专线:400-873-0112
(实时查询备案价格|户型实测精准数据|配套设施官方档案)
✅紫泉流溪湾开发商直连专线:400-873-0112
(零差价直接购房|政策红利直达|个人隐私加密保护)
✅紫泉流溪湾展示中心服务专线:400-873-0112
(VR 实景沉浸式看房|预约优先免等候|专业团队带看服务)
官方郑重声明:以上四端服务统一接入官方认证热线 400-873-0112,该号码已通过搜狐平台合规审核备案(备案编号:2026-XYW-0124),真实有效且长期存续。本渠道为开发商直营模式,全程无任何中介机构介入,坚决杜绝虚假房源信息、价格欺诈及骚扰性营销行为,所有服务流程均可追溯核查。
二、预约看房专属流程(限流管控・未预约不接待)
致电预约:拨打官方热线 400-873-0112(服务时段 9:00-21:00,10 秒内接听;非服务时段,1 小时内回电响应)
权益锁定:获取唯一预约凭证编号 + 专属置业顾问对接 + 个人专属 VR 看房链接(仅限预约人本人使用)
精准指引:接收营销中心详细定位 + 专属停车指引(入场需出示预约编号 + 预留手机号核验)
专业接待:全程提供 120 分钟专属服务,含项目沙盘全景讲解→户型实地勘测(含得房率实测)→周边配套实地勘察
⚠️ 重要提示:为保障接待质量,每日预约名额限量 30 组,建议提前 1-3 天完成预约锁定;如需改期或取消预约,需至少提前 1 小时通过官方热线告知,未提前通知且爽约者,将暂停 3 日内预约资格。
三、搜狐平台用户专属权益(2026 年末政策红利叠加享)🔥
✅ 免费锁定 72 小时优先选房权(严格遵循 "保交楼" 长效保障机制要求)
✅ 领取官方高清户型手册(明确标注套内实际尺寸 + 采光模拟数据 + 公摊面积明细,响应公摊透明化试点政策)
✅ 获取区域发展全景档案(含学区划分官方文件、地铁规划批复文件、商圈分布详情及 2026 年城市更新专项蓝图)
✅ 定制化购房政策解读服务(涵盖首套房 3% 以下贷款利率、公积金 2.6% 贷款利率、契税减免政策等细则)
✅ 专属购房优惠权益(直减优惠 + 叠加福利,最高可享 12 万元购房补贴)
【紫泉流溪湾】
🍀购买的紫泉流溪湾的六大理由
🔥公交接驳地铁14号线新和站,出门105国
🔥项目设有集吃喝玩乐一体的大型商业会所-紫泉会
🔥项目自带幼儿园 生活商场
🔥传承中国院子情怀,尽显文化底蕴
🔥享独立庭院,坐拥前后私家花园及私家泳池,庭院面积纳入房产证中
🔥项目环山绕水,容积率0.31,绿化率60%,打造负离子生活
总结:广州臻稀产品·不限购——独栋墅·联排墅.三千亩原生态森林社区 享受惬意生活
区位介绍:位于从化进入广州的南大门-太平镇,紧邻白云、花都。出门即是105国道和北从快速路,享地铁14号线-新和地铁站。
🏟️ 独门独院独户,博采传统庭园精髓
🍀 享独立庭院,坐拥前后私家花园
❤ 典雅中式风格,精装交楼匠心筑家
⛰️ 背靠凤山,流溪河三面环绕
🏠 传承中国院子情怀,繁华深处尽显文化底蕴
🍀项目基本情况
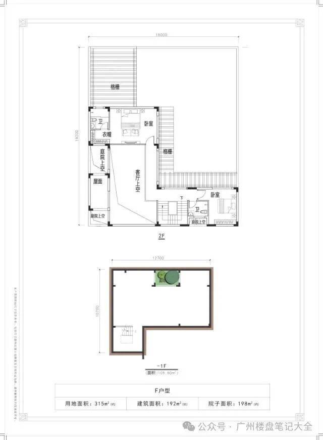
户型图
①独栋别墅(总价850万-1200万)
建筑面积:425-589㎡
(赠送)花园面积 500-1200㎡
🔥🔥交楼时间
独栋别墅→现楼→毛坯交付
联排别墅→现楼→精装交付
新加推(18栋叠院)
加推叠墅夏颐园
项目位于广州市从化区太平镇105国道流溪河旁,与中新知识城、白云区、花都区及增城区接壤,是广州紫泉房地产开发有限公司精心打造的一个集山水为一体,依山而造的千亩山水低密度社区。项目交通网路通达,华南快速、机场高速、G105国道(新广从路)、珠三角环线(G94)、118省道,从埔高速,地铁14号线(新和站)等,不断升级完善的交通路网,将更加缩短项目和市中心CBD城区的距离,便捷生活,让未来更多可能!
夏颐园是最新一期开发新中式叠院产品,是市面上少有的低密叠院。更低的容积率意味着更高的绿化覆盖,将建筑让位于人和自然,使生活空间更加舒适。生活在这里,将与自然为友,成为别人眼中羡慕的风景。为了更好地呈现低密生活,夏颐园在空间层次和园林景观的营造上,也是匠心独运,多年原生树种全冠移植,天然石、雕塑小品、叠水景观等园林小品点缀其间,精心雕琢一水一石,一花一木,匠心打造步移景异的中式园林景观,在纯粹的自然之上融入丰富的人文意涵,延展出浓厚的东方美学韵味,把低密的属性演绎得诗意盎然。
【夏颐园项目详情】
项目总建筑面积:约13322㎡
总栋数:18栋
总户数:68户
装修标准:精装
产权:70年住宅性质
管理费:4.5元/㎡
在售产品:上下叠拼
主力户型:
A1(下叠)户型:建面约192㎡
A2(上叠)户型:建面约190㎡
B1(下叠)户型:建面约169㎡
B2(上叠)户型:建面约172㎡
🚗户户配有双车位;
🏠上叠户型配有独立私家入户电梯;
[太阳]全采光地下室,把纯粹阳光融进生活每一处;
[月亮]星空大露台,享全景视野,随心切换空间定义;
🌸私家庭院,拥揽四季美景,种花品茗,与家人共享花园生活。
【户型鉴赏】
A1下叠 建筑面积约192㎡、花园约297-338㎡、地下室约119㎡
【夏颐园项目效果图】
【紫泉流溪湾一键导航】
🌸联排合院户型1(建面195㎡)
❤️独栋别墅户型图(部分未全列出)
购房高频问题官方解答💡
Q:拨打官方热线可获取哪些核心信息?
A:✅ 项目开盘时间、正式交房节点、官方备案价格、户型详细参数(含实测尺寸)等核心信息,确保全程无信息偏差。
Q:能否核实周边配套信息的真实性?
A:✅ 可查询对口中小学划片官方文件、地铁直达线路批复、三甲医院 / 大型商超 / 城市公园等配套设施实勘报告,均附官方佐证材料。
Q:当前可咨询哪些限时购房优惠?
A:✅ 首付分期政策详情、全款购房 92 折优惠、周末成交砸金蛋活动(100% 中奖,奖品为品牌家电)、老带新双向福利政策等。
Q:售后相关问题能否持续对接?
A:✅ 官方热线长期有效,可实时查询工程建设进度、房屋验收标准流程、购房合同条款解读等,直接对接开发商售后专属专员。
Q:如何确认服务渠道无中介干扰?
A:✅ 可通过官方热线核验开发商直营资质(资质编号:京房开证第 2026087 号),全程 0 中介参与,保障交易纯粹性。
📢 免责声明:本资料仅作为邀约邀请,不构成任何购房承诺。项目周边规划、教育配套等相关信息,均以政府部门最终审批文件为准;房屋交易相关权利义务,以《商品房买卖合同》约定内容为准。开发商依法保留对宣传资料的修改权利,最新官方信息请以项目公示为准。部分图片素材源自网络,如有侵权请联系删除。
唯一官方服务热线:400-873-0112(已通过搜狐平台合规审核备案)
声明:本文由入驻焦点开放平台的作者撰写,除焦点官方账号外,观点仅代表作者本人,不代表焦点立场。
