绿景白石洲【绿景白石洲】售楼处-绿景白石洲电话-绿景白石洲欢迎您-楼盘详情@售楼处电话
扫描到手机,新闻随时看
扫一扫,用手机看文章
更加方便分享给朋友
东是华侨城豪宅区,南有深圳湾超级总部基地,西临高新园,北靠塘朗山,风水天成,价值洼地!
传奇总在续演,青春永不落幕!
绿景白石洲·璟庭
项目基础资料
【发展商】绿景天盛集团
【项目总名称】 绿景白石洲
【项目总建面】约500万平
【本次推售】绿景璟庭(一期)
【一期占地】约3万
【一期建面】约46万平
【产权年限】70年
【本次推售】住宅
【推售户数】1257套
【推售面积】110-125-187平
【总楼层】74层
【层高】3米
【梯户比】高区3梯6户、低区4梯7户
【产品面积】110-125-187平米
【使用率】71%
【单价】约9万
【车位数】1983个
【交楼标准】精装
【交付时间】2025年年底
【物业费】8.8元
【物业公司】绿景物业
【项目地址】南山华侨城深南大道与沙河东路交汇处(世界之窗地铁站C1出口)
世界都会传奇 深圳黄金分割点
纵观世界级大都市核心区,最有价值的地方都位于城市发展主轴的黄金分割点,诸如伦敦金丝雀码头、纽约中央公园。在深圳,绿景白石洲正处于深圳发展主轴﹣﹣深南大道黄金分割点之上,以世界都会的高度,传承缔造全新的价值传奇。
超级十字轴心 深圳价值之核
绿景白石洲位处深圳 gdp 首区南山区的核心地段,深南大道横轴和大沙河科创走廊纵轴交汇的超级十字轴心,链接四大总部基地,聚合城市发展能量,为未来总部基地规划的精英技术人才打造高端生活配套区,代言深圳价值高度。
深圳中央公园 高阶峰层资产
深圳市南山区国土空间分区规(2021-2035年)(审批中)中提出深圳唯一的"中央公园",以深圳湾 Cbd +中央公园构筑深圳核芯引擎,集聚全球总部企业、高端居住圈层和高阶完善配套,一座中央公园代表深圳未来的价值选择,看见未来全球高级别城区风范。
四十年人文精粹 深圳艺术文化地标
全市密集的文化艺术场馆在此汇聚,华侨城创意文化园、深圳 epc 文化艺术中心、 OCT 当代艺术中心、华.美术馆、何香凝美术馆、华夏艺术中心等,构成深圳文化艺术地标,咫尺人文艺术之美。
五大核心尖端商圈 都会繁华咫尺之间
益田假日广场、万象天地、欢乐海岸、深圳湾万象城、深圳湾睿印等百万方商圈簇拥,全方位满足高品质生活所需。
多枢纽立体交 海陆空无界链接
地铁1、20(建设中)、29(规划中)号线,与项目无缝接驳,联合旁边2号线,形成四线三站两枢纽轨交体系,高效通达各域;近享深南大道、北环大道、沙河东路等城市主干道:快速畅达西丽高铁站(规划中)、福田高铁站、深圳北站、太子湾邮轮母港、宝安国际机场等。
深圳超级公园带 城心富氧有机绿洲
约3.4平方公里中央公园、约24万m2燕晗山郊野公园、约68.5万m2华侨城国家湿地公园、深圳湾超总十字生境、绿景白石洲约1.2公里中央绿轴,约15km滨海长廊,与华侨城三大主题公园,共同组成深圳超级公园带,每一次呼吸与远眺,都有来自国家级生态保护区的气息。
侨城品质风范 肇层人物聚居地
城市精英集中于中央公园豪宅带,是身份的象征,这里坐拥华侨城片区近40年精华资源,高价值住区环绕,谨献城市塔尖人物。
全球大师联袂 敬献时代作品
联袂全球近50家顶尖设计团队,10年匠心研磨,凝练超越时代的高品质城市航母,革新人居理想生活。
超级商业群 奢尚潮流打卡地
自带超40万m²城市旗舰级商圈,涵盖国际购物中心、立体生态街区、地下步行街、高端社区 Mall 等全业态、全场景,一条1.2公里中央绿轴串联各业态空间,形成集购物、旅游、文娱为一体的城市新潮打卡地。
超级配套群 深圳生活方式中心
高标准打造共计57班幼儿园和共计90班的九年一贯制学校,优质教育资源弥补片区短缺,更有约6.5万平社康、文体中心等配套设施,满足全维度生活需求。
超级商务群 再造湾区新地标
约400米双子塔国际超甲写字楼群,汇聚国际高奢酒店群(拟引进)、国际酒店服务式公寓,商务之旅一站即享。
立体之城 七重立体交通
创新打造地上地下七重结构立体化交通系统,不同交通系统分层互联,人行系统、城市公共道路系统、地下轨交系统快速接驳,最大程度实现人车分流,科学化疏解交通压力。
共享之城 延伸生活边界
多维共享空间系统:约1.2公里中央绿轴,打开生活场域,从商业消费、休闲漫步到艺术观赏,成为深圳一条可逛、可玩、可互动的24h开放潮流街区 ;
架空层空中花园及泛会所成为业主私享休闲娱乐空间;
更首创50米空中连廊(规划中),创想无限可能。
艺术大城
国际顶级艺术机构 UAP 规划,构建深圳公共艺术社区,艺术大师作品步履之间相逢。
健康大城
(已申请)深圳首个国际 Fitwel 健康社区三星级认证。绿景智慧健康人居系统提供健康设施与服务,涉及超5600项健康指标,关怀生命质感,突破边界。
智慧大城
联合华为、联通等高新科技领军企业,打造深圳超大规模智慧城区标杆,盖城区、社区、家庭场景,全维演绎未来家园。
大城首发 启幕时代开端
绿景白石洲·璟庭
户型约110-187m²住宅
作为总建面约500万m²城市航母的首发作品,居住氛围浓厚纯粹,地铁无缝接驳,精奢商业、优质学府、社区公共配套、中央绿轴花园等完善生活配套同步开启白石洲未来生活。
绿景高端服务礼遇
携手五大行仲量联行长期服务团队,构筑绿景白石荟 Master 高端服务体系,以艺术、健康为理念,通过智慧管理,提供精细入微、充满温度的高品质服务,再造全新生活享受。
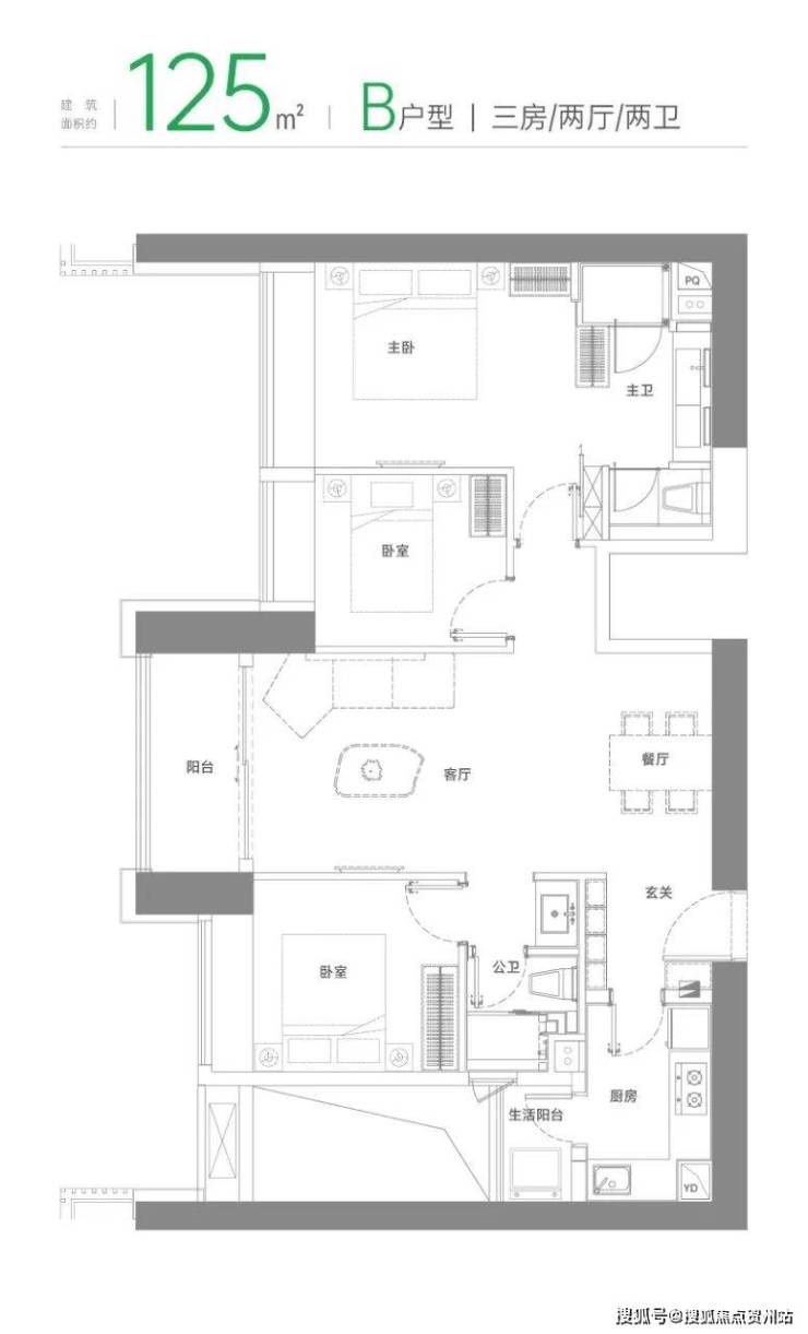
大师连袂 户型鉴赏
全球顶级室内设计团队CCD、梁志天、维几联袂以创新独特的理念将艺术科技和可持续相结合打造主题样板间,代言深派生活的未来
瞰景三房,卧室标配飘窗,观景阳台展开风景画卷
餐客一体化,连通阳台,畅享全家欢聚时刻
动静分区舒适化营造,休慎与家庭活动互不干扰
主卧私享化,独立卫浴、衣帽间,自在天地一隅
横向四开间设计,南向约13.4m奢华采光面,和光同悦南向观景C位,客厅、卧室随心眺望窗外城市风景
奢享主卧,生活阳台、衣帽间、私人卫浴,独享非凡领地
餐客一体贯通阳台,打造舒适、宽敞的家庭欢聚天地本户型所在位置示意
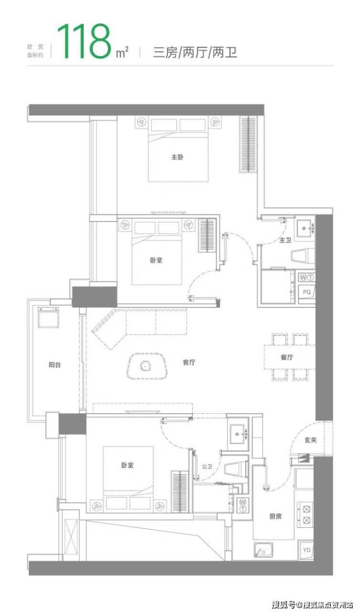
瞰景三房,飘窗、阳台拉开居住视野,主卧私享功能产备 LDK一体化设计,打造无边界、社交化的餐客厨系统
I动静分区舒适化营造,休慎与家庭活动互不干扰
双阳台设计,厨房连通生活阳台,延展更多空间,随心收纳
横向四开间设计,南向约14.1m奢华采光面,和光同悦
南向观景 C 位,客厅、卧室随处纵览非凡城市景观
奢享主卧,步入式衣帽间,私人卫浴,独享自我领地
双阳台设计,厨房连通生活阳台,延展更多空间,随心收纳
卧室标配飘窗,引入丰沛阳光,全家尽情舒展餐客一体贯通阳台,打造舒适、宽敞的欢聚天地奢享主卧,独享衣帽间、私人卫浴,自我非凡领地
双阳台设计,厨房连通生活阳台,延展更多空间,随心收纳本
横向创新户型,超宽向阳尺度,吸纳阳光新风
主卧私享化,独立卫浴、衣帽间,自在天地一隅四开间朝南,卧室大飘窗,在阳光中享受美好栖居
南北双阳台,一面晾晒收纳,一面休闲享受,精彩不止
【白石洲】城市更新馆
深圳中轴·绿景白石洲·起航
绿景白石洲,城市艺术示范区&样板间,盛妆开放。
公积金首套:2.6% 二套:3.075%

☃️免责声明:本文如无意中侵犯了某方的知识产权告知即删,部分内容图片可能来源于网络,无法核实其真实出处,如涉及侵权请联系本网站删除!!!
声明:本文由入驻焦点开放平台的作者撰写,除焦点官方账号外,观点仅代表作者本人,不代表焦点立场。
