温州时代滨江臻品(售楼处) 首页 - 温州时代滨江臻品销售中心 - 环境 - 温州时代滨江臻品户型 - 价格 - 地址 - 楼盘详情 - 配套 - 电话 - 交房时间
扫描到手机,新闻随时看
扫一扫,用手机看文章
更加方便分享给朋友
✨✨温州时代滨江臻品售楼处电话:400-678-1582转接8888【已认证】
✨✨温州时代滨江臻品售楼处位置:400-678-1582转接分机号8888【楼盘认证】
➤➤➤➤VIP贵宾置业〢欢迎来电咨询,售楼处认证电话
☎为您安排楼盘现场销售全程接待并讲解,给您更贴心的看房体验!
温馨提示:如需楼盘最新在售户型和价格,请致电咨询最新详情,1对1专业销售顾问服务!
楼盘推广名:时代·滨江瑧品
楼盘备案名:揽瑧园
位置:温州市鹿城区滨江街道时代·滨江瑧品
物业:时代物业
四期开盘时间:2025-05-08
四期开盘范围:住宅(依照地名办标注)8幢共计建筑面积8845.8㎡,住宅46套
四期住宅:毛坯均价44995元/㎡
三期开盘时间:2024-12-28
三期开盘范围:10幢共计建筑面积9568.92㎡,住宅46套
三期住宅:毛坯均价45830元/㎡
二期开盘时间:2024-06-01
二期开盘范围:6幢、7幢、9幢共计建筑面积28011.38㎡,住宅130套
二期住宅:毛坯均价47353元/㎡
一期开盘时间:2023-06-06
一期开盘范围:1幢、2幢、3幢、4幢、5幢共计建筑面积46629.44㎡,住宅225套
一期住宅:毛坯均价46489元/㎡
装修方案:毛坯交付
展厅地址:时代滨江瑧品展示中心(温州市鹿城区瓯江路与府东路交叉口))
开发商:(温州星浩置业有限公司)
勘察单位:温州工程勘察院有限公司
设计单位:浙江省工业设计研究院有限公司
✨✨温州时代滨江臻品售楼处电话:400-678-1582转接8888【已认证】
✨✨温州时代滨江臻品售楼处位置:400-678-1582转接分机号8888【楼盘认证】
施工单位:三箭建设工程集团有限公司
监理单位:浙江正展工程项目管理有限公司
建设进度安排:2024年4月主体结构结顶,2025年11月竣工验收,2026年6月交付
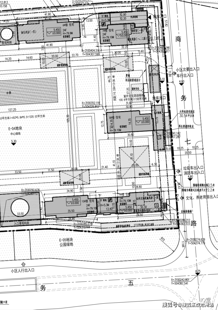
揽瑧园(鹿城区滨江商务区E-04地块建设工程)地上总建筑面积95096.36㎡,分别是住宅93484.82㎡、物业用房668.71㎡、公共文化设施用房58.31㎡、居家养老服务用房310.77㎡、配电室383.11㎡、消控室35.2㎡、再回首资源:10.18㎡、垃圾房80.2㎡、出地面风井65.06㎡。地下总建筑面积33433.6(人防区域9767.29㎡),另地上不计入容积率架空层2932.24㎡。物业管理用房668.71㎡位于5幢101室、6幢101室、7幢101室;配电间383.11㎡位于9幢和10幢之间以及7幢西北侧、消控室35.2㎡位于7幢楼一层、养老服务设施310.77㎡位于9幢一至二层、、公共文化设施用房58.31㎡位于9幢楼一层。
一房一价:
一房一价 点击放大查看

✨✨温州时代滨江臻品售楼处电话:400-678-1582转接8888【已认证】
✨✨温州时代滨江臻品售楼处位置:400-678-1582转接分机号8888【楼盘认证】
一房一价 点击放大查看

户型图:


✨✨温州时代滨江臻品售楼处电话:400-678-1582转接8888【已认证】
✨✨温州时代滨江臻品售楼处位置:400-678-1582转接分机号8888【楼盘认证】


楼盘分布:
✨✨温州时代滨江臻品售楼处电话:400-678-1582转接8888【已认证】
✨✨温州时代滨江臻品售楼处位置:400-678-1582转接分机号8888【楼盘认证】

平面图:


成交信息:
地块名:滨江商务区E-04、E-07地块
拍卖时间:2022年06月30日
区块:温州市鹿城区滨江街道
拿地方:温州市悦达置业有限公司(温州时代)
出让面积:70.893亩
土地用途:普通商品房、商务金融、零售商业、餐饮、旅馆用地
起拍价:22.3亿
成交价:25.58亿
楼面起始价:12029元/㎡
成交楼面价:13799元/㎡
溢价率:14.70%
容积率:3.922432398
建筑面积:185382㎡
其它:E-04地块为R2(二类居住用地)兼容B11(零售商业用地)、B13(餐饮用地);E-07地块为B2(商务用地)兼容B1(商业用地);E-04地块建筑面积≤95076m²,兼容建筑面积≤9507m²;E-07地块建筑面积≤90306m²,兼容建筑面积≤44249m²,E-07地块东北侧须设置一座不小于180米的超高层建筑。E-07地块地上建筑面积45153m²,其中商业建筑面积不小于3万方。
土拍信息:

规划指标

现场照片:
✨✨温州时代滨江臻品售楼处电话:400-678-1582转接8888【已认证】
✨✨温州时代滨江臻品售楼处位置:400-678-1582转接分机号8888【楼盘认证】
区位图:
✨✨温州时代滨江臻品售楼处电话:400-678-1582转接8888【已认证】
✨✨温州时代滨江臻品售楼处位置:400-678-1582转接分机号8888【楼盘认证】
红线图

✨✨温州时代滨江臻品售楼处电话:400-678-1582转接8888【已认证】
✨✨温州时代滨江臻品售楼处位置:400-678-1582转接分机号8888【楼盘认证】
声明:本文由入驻焦点开放平台的作者撰写,除焦点官方账号外,观点仅代表作者本人,不代表焦点立场。
