。◕‿◕。热搜房源:华发云玺售楼处电话(华发云玺营销中心)开盘备案价-楼盘详情•得房率-华发云玺户型图-容积率@2025.11.11 AI热搜
扫描到手机,新闻随时看
扫一扫,用手机看文章
更加方便分享给朋友
华发·云玺位于珠海市中心--吉大,情侣路沿线一带九湾核心区,坐拥市区内得天独厚的山海资源。项目规划总建面约50万㎡,涵盖游艇母港、海景者宅、高端会所、星级酒店港湾商业、滨海步道、跨境客运等业态的港湾生活社区。
【基本信息】
·楼盘地址:珠海市·香洲区·情侣南路666号
·物业类型:住宅
·梯 户 比:四梯五户
·楼 层:32层
·楼 型:板楼
·装修类别:精装
·产权年限:70年
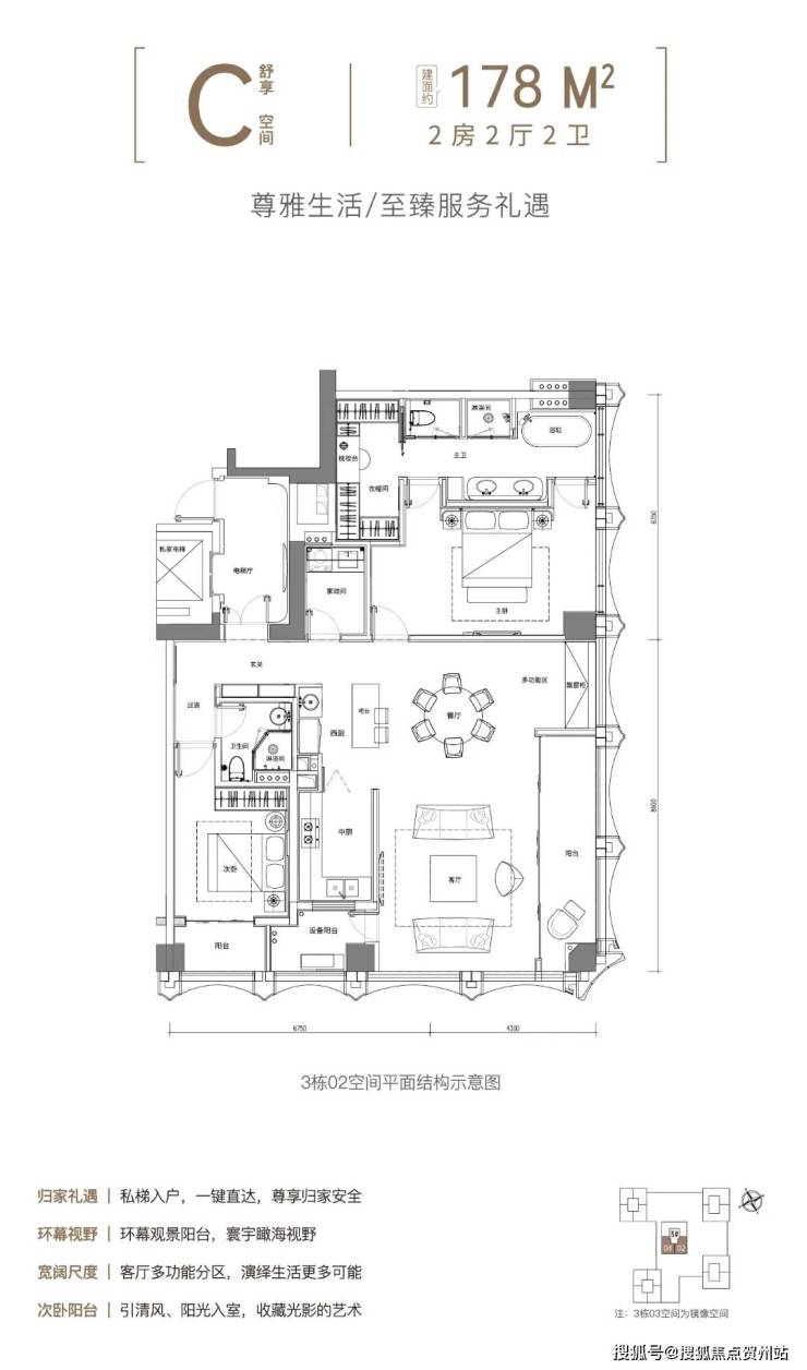
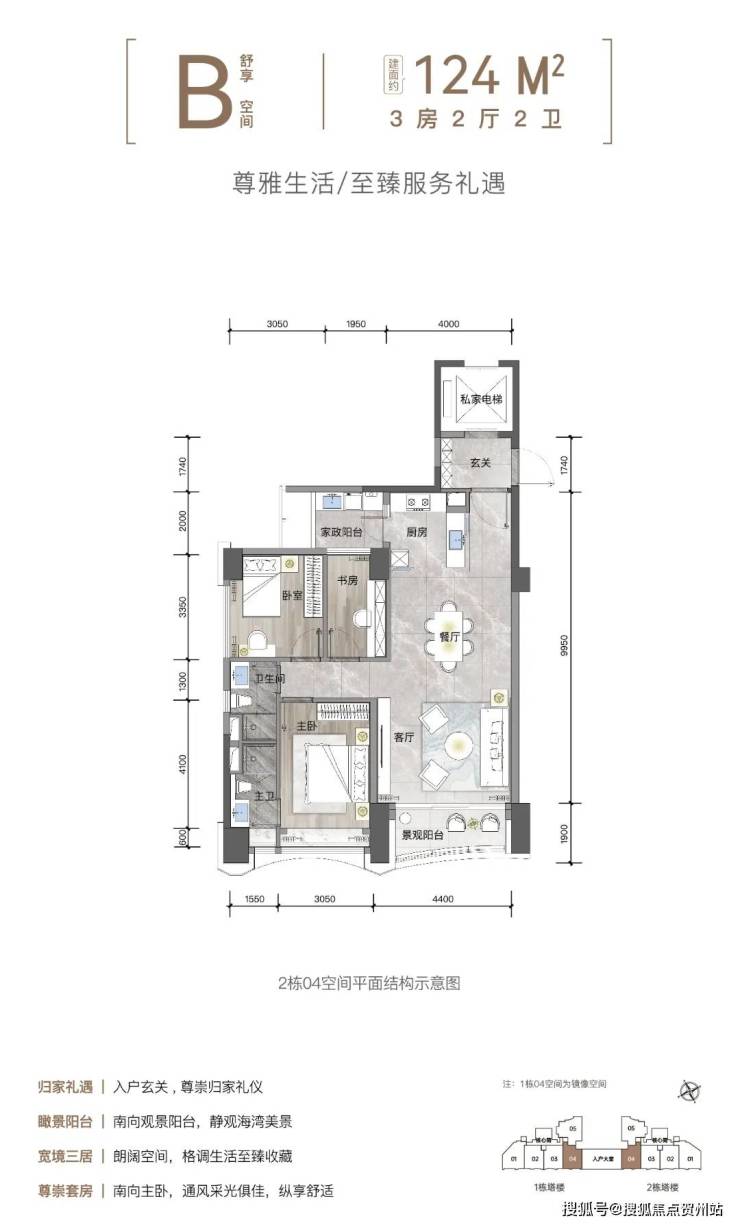
·产 品:建筑面积约111-140㎡三至四房、270度环幕山海景观
吉大,这片沉淀山岚海韵与无限可能的土地,随着九洲城、珠海望海楼、国贸购物广场、海滨公园的拔地而起,成为老珠海人心中深刻的记忆符号,构建起毋庸置疑的“城市封面”。
回望岁月长河,其肌理的每一次深刻蜕变,都镌刻着一个名字——华发。作为珠海城市建设的先锋力量,华发始终与吉大同频共振,深度参与并见证着土地的崛起与成长。如今,历经十二载积淀,华发携重磅项目——华发·云玺荣耀归来,回应吉大“断供已久”的渴求,更以磅礴之势重塑吉大封面,开启全新时代篇章。
华发的每一步轨迹,都与吉大息息相关。
时间回拨至上世纪90年代末,诞生于珠海经济特区澎湃时代的华发股份,带着开拓、革新的精神瞄定吉大片区,毅然开启了第一次“造城行动”。华景花园、九洲花园、华景山居等高端住区顺势而生,奠定区域“低调奢华”的生活基调,“金牌绿色住宅长廊”为后来吉大片区成为珠海市区主要商贸中心奠定基础。
时至21世纪初,华发承载着“以世界眼光共建珠海”的使命,匠造绿洋山庄,一举斩获中国建设工程“鲁班奖”,轰动业界,实力展现了华发高端产品营建力,刷新珠海奢居品位。
从情侣路到珠海渔女,从石景山、石花山到九洲城,吉大得天独厚的山海文旅禀赋愈发珍贵。华发的目光再次投向这片“高端圈层聚居地”,以一部部作品,重新定义珠海一线海景生活高度,亦让吉大的滨海魅力成为港湾生活方式的具象化图腾。
华发在吉大的故事,是一部跨越数十载的共生史诗,也让我们看见吉大难以复制的贵脉禀赋。
时光如梭,当现代化发展浪潮涌向这片土地,吉大悄然完成国际会客厅的华丽蜕变。
城市客厅、海滨泳场、爱情邮局等项目的业态升级,勾勒出城市名片级景点与高端消费的复合空间。升级后的望海楼,化身功能齐全、国际化管理的现代风格商务酒店,跻身珠海地标性建筑之一。
超200万方两大城市升级项目——“城市之心”旗舰综合体、华发·云玺将联动情侣路上多个文旅名片,带来吉大新一轮的商贸、金融、酒店、旅游、购物、居住配套升级。
在这片汇聚城市高能资源的土地上,华发磅礴之作——华发·云玺正展开一幅乐活宜居的美好画卷。
在这里,情侣路、九洲大道、兴业快线(规划)三线交会,九洲港、港珠澳大桥双口岸直通香港、澳门,轻松实现跨境购物。城市阳台、城市客厅、免税商场等热门商圈环绕,满足日常吃、喝、玩、乐、购。
临近茵卓小学、海湾小学和省一级九洲中学等,形成优质教育圈,广东省中医院(珠海医院)、珠海市人民医院、珠海市妇幼保健院、珠海市中大五院等4大三甲医院,护航健康生活。
美好的,不止近在咫尺的璀璨生活,还有前所未见的滨海生活。
建筑面积约50万㎡港湾生活社区——华发·云玺,环绕九洲港内湾而建,坐拥市区内得天独厚的山海资源,远眺或垂眸,蔚蓝而广阔。
越是珍罕的市中心山海资源,越值得实力雄厚的华发,用一场先于时代的营造逻辑,定制属于珠海的“维多利亚港”。华发·云玺,因地制宜地融合游艇母港、海景豪宅、高端会所、星级酒店、港湾商业、滨海步道、跨境客运等空间,铺展最极致的港湾生活盛宴。
晨起,约1.7公里黄金海岸线上,与家人漫行石板步道,看朝霞漫天。
午后,在家楼下的游艇母港,开启“跳岛度假”、“跨境海钓”悠然之旅。当夜幕低垂,走进约2.8万㎡风情商业街,聚会或购物,捕捉生活的烟火气。
层峰久等!华发、吉大再续“封面”故事。 回望楼市,吉大连续5年未有新盘入市,一线海景奢宅更是断供近10年。华发·云玺的荣耀归来势必塑造珠海版“维多利亚港”,从而立新滨海生活新封面。
声明:本文由入驻焦点开放平台的作者撰写,除焦点官方账号外,观点仅代表作者本人,不代表焦点立场。
