2026官方热搜-NO1翰熙典居售楼处官方发布:重新定义什么是好房子!
扫描到手机,新闻随时看
扫一扫,用手机看文章
更加方便分享给朋友


桂庙新村因为靠近深大,是深大学子的学生村、美食村,有深圳最“清新”城中村之称,作为深圳最古老的城中村之一,也将像大冲村、白石洲一样成为一代人的记忆。规划为集住宅、商业、办公等功能于一体的大型综合体。
首推2栋三四单元,冻资30万享开盘约9折,折后均价10万出头,部分单位8字头起.
基础信息
【开发商】深圳市贯凯投资有限公司
【物业公司】深圳市丹枫物业管理有限公司
【物业费】6.5元/平
【占地面积】41660㎡
【建筑面积】17万㎡
【批地时间】2021年
【交房时间】2027年
【交付标准】精装
【均价】10万
【总户数】3030户,共分三期,一共714套可售商品房,01地块规划859户,其中保障性住房612户,可售247套;02地块,可售328户;03地块可售139户
【小区栋数】10栋超高层塔楼和1栋幼儿园组成
【使用率】90%
【梯户比】3梯5户
【楼层高】43-53层
【容积率】8.9
【绿化率】30%
【车位比】834个,车位比1:0.83
【学校】学府一小,学府中学
【交通】9号/15号深大南200米
【商业】1公里范围内覆盖海岸城、茂业百货、海雅百货等大型商场
【在售户型】
105户型:折后总价约894-1107万
120户型:折后总价约1144-1271万
140户型:折后总价约1457-1570万
01
交通配套
项目紧邻地铁9号线和即将建成的15号线深大南站,距离不到300米,确保了居民出行的便利性。15号线作为深圳首条环线轨道,连接前海、宝中、大铲湾、腾讯科技岛、南山科技园等重要产业区,形成高价值交通圈。
02
学校配套
项目对口学校为南山区第二外国语学校(集团)学府一小和学府中学,均属于南山区教育质量的第二梯队。学府中学成立于2003年,拥有50个教学班和2400余名学生,教学实力强劲。学府一小位于南山商业文化中心区,提供现代化的教育设施,是学府中学的主要生源小学。西侧将配建一所小学,尚未动工,未来可能引进深大附属的小学。
03
商业配套
项目规划有约5000平方米的商业空间,满足居民基本购物需求。2公里范围内覆盖海岸城、茂业百货、海雅百货等大型商场,提供了丰富的购物和娱乐选择。
04
休闲配套
项目周边3公里范围内集合了文心公园、南山书城、荷兰花卉小镇、南头古城、荔香公园、深圳人才公园等多样化的休闲场所,丰富了居民的文化生活。
平面图及户型图
01地块规划总建面约17万㎡(住宅建面约8.9万㎡、商业建面约3.2万㎡),容积率9.0,由2栋(1栋1、2单元)53层、1栋(1栋3单元)43层的超高层塔楼和1栋幼儿园组成。
总共3栋超高层楼体,规划1038户,其中保障房612套、回迁179套、可售商品房247套。
02地块在白石路一侧,规划总建面约16万㎡(住宅建面约8.37万㎡、商业建面约1万㎡、办公面积约1.7㎡),容积率9.32。
总共由4栋超高层塔楼组成,其中2栋2单元为26层的办公楼,2栋1、3、4单元分别为54、51、53层的住宅楼。住宅套数共872套(回迁544套+可售328套),提供停车位747个。
03地块在学府路一侧,规划总建面约17万㎡(住宅建面约7.65万㎡、商业建面约1.5万㎡、办公面积约0.6万㎡、酒店约1.9万㎡),容积率11.19。
由3栋超高层塔楼组成,其中3栋1、2单元分布为52、53层的住宅产品,3栋3单元为35层的办公+酒店产品。住宅总共1120套(回迁981套+可售139套),停车数1019个。
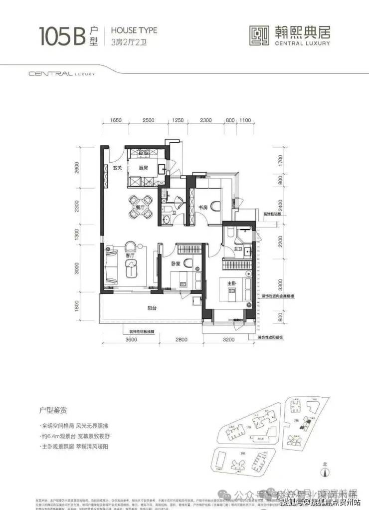
105平三房两卫户型
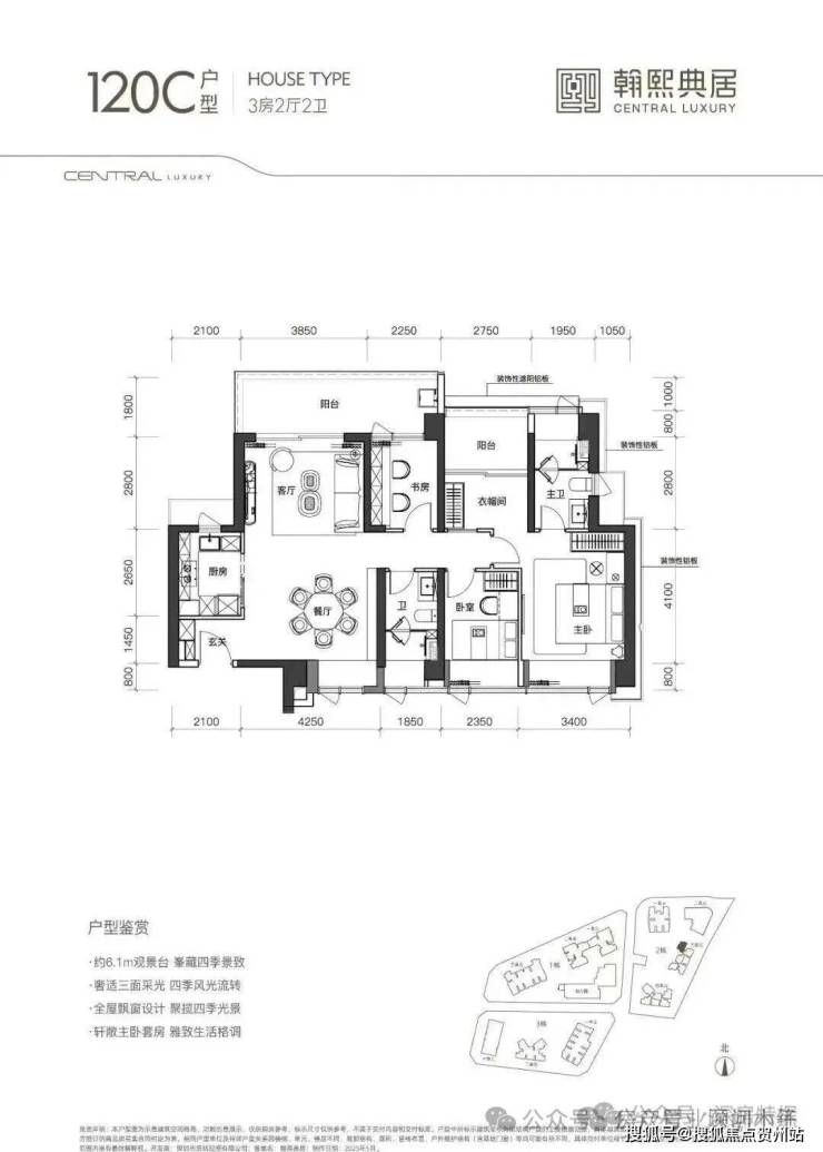
120平四房两卫户型
140平四房两卫户型
优点/SUMMARY
1、位于粤海街道办内,周边集聚了腾讯滨海大厦(400米)、软件产业基地等写字楼,片区高新人才聚集,地理位置优越;
2、属于大型旧改项目,未来改造潜力巨大,焕新区域居住环境;
3、周边配套齐全,交通十分便利;
4、周边没有新房供应,二手放盘也很少,片区内无对手,楼盘关注高;
5、户型为新规后的产品,网传使用率高达90%。
不足/SUMMARY
1、小区居住属性不够纯粹,有大量回迁房和人才房;
2、容积率偏高,且属于超高层住宅,居住舒适度一般;
3、车位比不足1:1,停车位较紧张。

声明:本文由入驻焦点开放平台的作者撰写,除焦点官方账号外,观点仅代表作者本人,不代表焦点立场。
