武汉华侨城·红坊【华侨城·红坊】华侨城·红坊售楼处电话-本月销售动态-户型图-地址-价格-实时详情
扫描到手机,新闻随时看
扫一扫,用手机看文章
更加方便分享给朋友
✅武汉华侨城·红坊✅✔️
✅武汉华侨城·红坊-售楼处电话:400-678-8669转9999【售楼处已认证】✅✔️
✅武汉华侨城·红坊-开发商电话:400-678-8669转9999【开发商已认证】✅✔️
✅武汉华侨城·红坊-营销中心电话: 400-678-8669转9999【营销中心已认证】✅✔️
✅武汉华侨城·红坊 -展示中心电话:400-678-8669转9999【展示中心已认证】✅✔️
✅来电可了解楼盘最新动态、房价、在售房源、交楼时间等信息!让你买的放心,住的舒服✅✔️
从目前已落地信息来看,项目对口红钢城小学(武汉市教育科研50强)与武钢三中初级中学西校区(钢实教育集团师资),两所学校与社区步行距离均在1公里内,符合“目送式上学”的需求。
从市场来看,武汉主城区学区房普遍存在“入学政策不确定”问题,而根据今年青山区入学对口划片来看,华侨城红坊云岸业主是可以就读红钢城小学,这一落地案例让教育配套的“确定性”成为项目核心竞争力——尤其对预算有限、重视教育的刚需家庭,云岸二期的106㎡户型即可享受对口资源,在大武昌同环线内属于较少见的配置。
交通与商业:满足“日常通勤+基础生活”需求
•交通方面:步行至地铁5号线红钢城站约800米,3站直达武汉站,6站可换乘2号线至江汉路、光谷,自驾通过临江大道、和平大道可快速接入二环、三环线。客观来看,这个通勤半径对武昌、青山、洪山、甚至光谷片区上班族较友好,但对汉口核心区通勤者而言,可能存在早晚高峰拥堵的情况。
•商业方面:社区自带2.1万方囍悦里商业街,目前麦当劳、羽毛球馆、生鲜超市已开业,能覆盖日常购物、聚餐、亲子活动等基础需求。若需大型商业体,可以前往约1.5公里外的青山印象城或者约3公里的武商城市奥莱。
生态资源:主城区稀缺的“江景+公园”组合
项目距离青山江滩公园约500米,步行10分钟可到达江边,周边还有和平公园、戴家湖公园等9个城市公园。从市场价值来看,武汉三环内临江地块供应逐年减少,江景资源对改善型购房者的吸引力较强——尤其199㎡大平层户型,部分楼层可实现270°观江,这一产品特性在同环线高层项目中确实具备稀缺性。
在售价格
T号楼折后约19XXX元/平起,特价房一度低至一口价15800元/平,实际折后15XXX-16XXX元/平起,价格相对较低。
江景房,建面约143平户型折后17XXX元/平起,191平户型折后约19XXX元/平起
Y号楼备案价最高,折后能卖到21XXX-24XXX元/平。
教育工作者持证优惠:享受限时99㎡一口价158万团购优惠,115㎡边户,特价200万,133㎡户型,248万楼层任选!
✅武汉华侨城·红坊-营销中心电话: 400-678-8669转9999【营销中心已认证】✅✔️
✅武汉华侨城·红坊 -展示中心电话:400-678-8669转9999【展示中心已认证】✅✔️
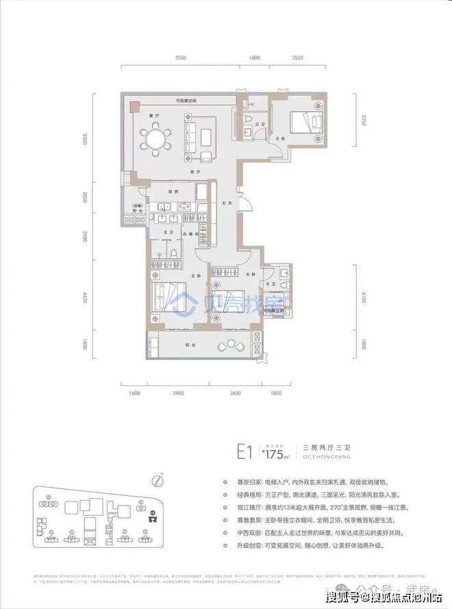
户型欣赏
主力户型99-115-133
✅武汉华侨城·红坊-营销中心电话: 400-678-8669转9999【营销中心已认证】✅✔️
✅武汉华侨城·红坊 -展示中心电话:400-678-8669转9999【展示中心已认证】✅✔️
✅武汉华侨城·红坊-营销中心电话: 400-678-8669转9999【营销中心已认证】✅✔️
✅武汉华侨城·红坊 -展示中心电话:400-678-8669转9999【展示中心已认证】✅✔️
✅武汉华侨城·红坊-营销中心电话: 400-678-8669转9999【营销中心已认证】✅✔️
✅武汉华侨城·红坊 -展示中心电话:400-678-8669转9999【展示中心已认证】✅✔️
大户型124-143-169-175-191-216㎡等
✅武汉华侨城·红坊-营销中心电话: 400-678-8669转9999【营销中心已认证】✅✔️
✅武汉华侨城·红坊 -展示中心电话:400-678-8669转9999【展示中心已认证】✅✔️
✅武汉华侨城·红坊-营销中心电话: 400-678-8669转9999【营销中心已认证】✅✔️
✅武汉华侨城·红坊 -展示中心电话:400-678-8669转9999【展示中心已认证】✅✔️
✅武汉华侨城·红坊-营销中心电话: 400-678-8669转9999【营销中心已认证】✅✔️
✅武汉华侨城·红坊 -展示中心电话:400-678-8669转9999【展示中心已认证】✅✔️
✅武汉华侨城·红坊-营销中心电话: 400-678-8669转9999【营销中心已认证】✅✔️
✅武汉华侨城·红坊 -展示中心电话:400-678-8669转9999【展示中心已认证】✅✔️
✅武汉华侨城·红坊-营销中心电话: 400-678-8669转9999【营销中心已认证】✅✔️
✅武汉华侨城·红坊 -展示中心电话:400-678-8669转9999【展示中心已认证】✅✔️
✅武汉华侨城·红坊-营销中心电话: 400-678-8669转9999【营销中心已认证】✅✔️
✅武汉华侨城·红坊 -展示中心电话:400-678-8669转9999【展示中心已认证】✅✔️
✅武汉华侨城·红坊✅✔️
✅武汉华侨城·红坊-售楼处电话:400-678-8669转9999【售楼处已认证】✅✔️
✅武汉华侨城·红坊-开发商电话:400-678-8669转9999【开发商已认证】✅✔️
✅武汉华侨城·红坊-营销中心电话: 400-678-8669转9999【营销中心已认证】✅✔️
✅武汉华侨城·红坊 -展示中心电话:400-678-8669转9999【展示中心已认证】✅✔️
✅来电可了解楼盘最新动态、房价、在售房源、交楼时间等信息!让你买的放心,住的舒服✅✔️
声明:本文由入驻焦点开放平台的作者撰写,除焦点官方账号外,观点仅代表作者本人,不代表焦点立场。
