苏州奥体南绿城沁百合(售楼处)首页网站-绿城沁百合营销中心-绿城沁百合欢迎您-楼盘详情-最新价格-户型图-容积率@售楼处
扫描到手机,新闻随时看
扫一扫,用手机看文章
更加方便分享给朋友
✨✨苏州绿城沁百合✨✽✽✽✽
✨✨绿城沁百合售楼处电话:400-678-8669转9999【☎☎售楼处电话已认证】✨✽✽✽✽
✨✨绿城沁百合营销中心电话:400-678-8669转9999【☎☎售楼处电话已认证】✨✽✽✽✽
✨✨绿城沁百合开发商电话:400-678-8669转9999【☎☎开发商电话已认证】✨✽✽✽✽
✅本项目暂不接受临时到访,过来参观样板房请记得提前来电预约!✨✽✽✽✽
✅为您安排楼盘现场销售全程接待并讲解,给您更贴心的看房体验!✨✽✽✽✽
✨✨Vip贵宾置业=欢迎来电预约尊享内部折扣=匠心钜制恭迎品鉴✨✽✽✽✽
绿城·沁百合,即绿城奥体南2号项目,位于工业园区金堰路西、金鸡湖大道北,是2月份,由绿城总价14.3亿竞得,成交楼面价26754元/㎡,溢价率21.61%。
拟建10幢8-11F纯洋房产品,值得期待。
最新消息:项目展厅正式已经公开,预计7月底开盘,放风价5w+/平,正式户型图预计下周会出来。
目前已确定,将打造苏州首座“百合系”。
刚刚!园区豪宅迎来新动作
绿城·沁百合放出
最快7月底开盘
示范区预计开盘当月开!节奏非常快!
作为苏州首个绿城「沁百合」
项目全铝板立面豪装+下沉式会所
有兴趣的亲们,该准备起来了
扫码登记掌握一手消息
置业顾问会第一时间联系你
作为苏州首个绿城「沁百合」,其实早在杭州、上海、宁波等城市,「沁百合」产品系早已名声大噪。
杭州绿城沁百合:三开三罄,中签率低至 7%,荣获2023年德国红点设计奖提名。宁波沁百合:以全石材立面与奢装会所,刷新当地高端住宅标准的同时,至今仍是二手房市场的硬通货。
苏州绿城沁百合
打造10幢8-11F纯洋房低密奢宅
主力155/167/183/187/235㎡5大户型
具体楼栋分布如下,总房源量不到300套
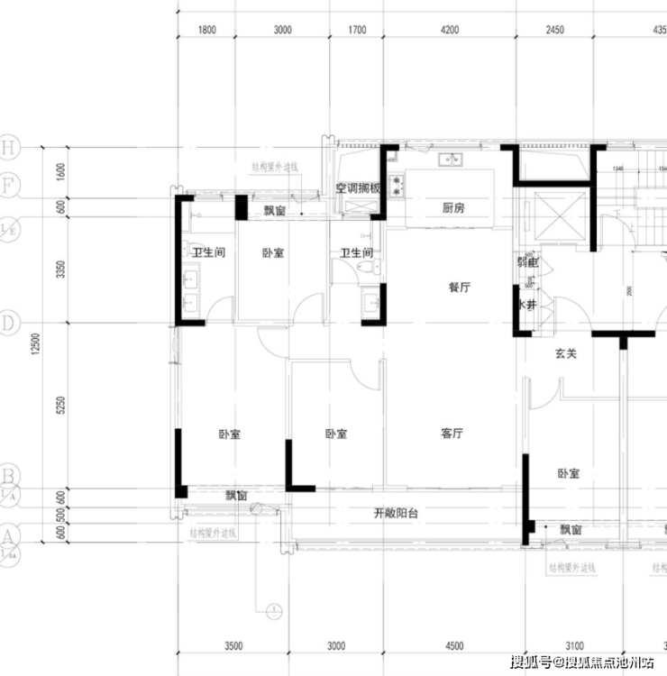
正式户型图还没出来,此前规划的约153/187㎡标准层户型可供参考——
南向四开间+南北双阳台
南向约15.9米面宽
客厅开间约5.7米,外接8.8米宽开敞阳台
南向双套房,主卧开间3.8米
其余卧室开间3.3、3.1、3.1米

155㎡户型2梯4户设计

4房2厅2卫
南向四开间,约14.1米面宽
客厅开间约4.5米,外接7.5米宽开敞阳台
主卧套房开间3.5米
其余卧室开间3.1、3、3米

绿城·沁百合,即苏地2025-WG-Z02号地块,位于工业园区金堰路西、金鸡湖大道北,是2月份,由绿城总价14.3亿竞得,成交楼面价26754元/㎡,溢价率21.61%。

项目出入口位于规划道路及东宏路。

其中第一排靠金鸡湖大道全是8层洋房。除了1~4幢,其余楼栋一层均设置架空层,估计会做成公共空间,提升内部配套。地库局部做了2层,最大程度满足家庭停车需求。
首层3.6米,其他层高3.1米,外立面全铝板,采用深灰色、金色、银色铝板。

可以参考绿城云庐。
根据地块出让要求,该地块上住宅为全装修住宅,住宅装修价格不低于3000元/㎡。
产品系为绿城的百合系,已知自带下沉式庭院、500㎡儿童活动场、运动场等。了解更多内容
绿城「沁百合」紧靠轨交6号线金家堰站,项目临河和绿化带即斜塘河与奥体中心。从整体看,凭借着本身绝佳地理优势,享受园区优质资源,适宜居住。
✨✨苏州绿城沁百合✨✽✽✽✽
✨✨绿城沁百合售楼处电话:400-678-8669转9999【☎☎售楼处电话已认证】✨✽✽✽✽
✨✨绿城沁百合营销中心电话:400-678-8669转9999【☎☎售楼处电话已认证】✨✽✽✽✽
✨✨绿城沁百合开发商电话:400-678-8669转9999【☎☎开发商电话已认证】✨✽✽✽✽
✅本项目暂不接受临时到访,过来参观样板房请记得提前来电预约!✨✽✽✽✽
✅为您安排楼盘现场销售全程接待并讲解,给您更贴心的看房体验!✨✽✽✽✽
✨✨Vip贵宾置业=欢迎来电预约尊享内部折扣=匠心钜制恭迎品鉴✨✽✽✽✽
声明:本文由入驻焦点开放平台的作者撰写,除焦点官方账号外,观点仅代表作者本人,不代表焦点立场。
