首页@#钱塘云湾(海宁)楼盘详情 /房价/商业/教育/医疗/周边配套
扫描到手机,新闻随时看
扫一扫,用手机看文章
更加方便分享给朋友
下沙【钱塘云湾中心】◆℡TEL:400-000-0460转接8888【售楼中心】
◆网上售楼中心——欢迎来电咨询〢——匠心钜制恭迎品鉴!
◆----------- 欢迎来电预约尊享服务!给您一个满意温馨的家!
◆-----------如有侵权,请联系作者删帖!给您带来不便,和您说声抱歉!
杭州下沙奥特莱斯轨交站口【钱塘云湾】复式公寓总价60万 商铺90万可做重餐饮 通燃气。
面积约35-42㎡创客空间
大平层200—260m2
主力层高:4.8 米(少部分4.5米)
下沙大学城北
奥特莱斯旁(200米)
轨道交通站口(200米)
总部经济园写字楼旁
100万方CBD核心
房屋总价:约56-75万
【钱塘云湾中心项目介绍】
钱塘云湾中心位于杭州东部拥江发展重要板块的下沙大学城北,同时也位于钱塘国际新城CBD区域内,与下沙无缝链接,是促进拥江发展与杭嘉同城化的战略要地和杭海新城融杭的桥头堡。

3#楼基本信息
【总楼层】:21层
【层高】:2-16层4.79米,17-21层4.5米(大平层)
【首开楼层】:2楼、6楼、7楼、8楼、12楼
【面积区间】:30m2-42m2,大平层200—260m2
【梯户比】:5梯36户,
【大平层】:5梯6户

6#楼基本信息
【总楼层】:5层
【总套数】:142套
【层 高】:2-3层4.79米;4-5层4.5米
【梯户比】:2层2梯32户;3-4层2梯30户;5层2梯26户
【面积区间】:约30-40㎡
【竣工时间】:2023年12月
【总 价】:60万左右

大学城北 奥特莱斯旁
建筑面积约30-40㎡创客空间
商办基本参数
业态构成:商业街区、商务办公;
项目地址:文海北路与创智路交叉口(下沙奥特莱斯北)
产品属性:30-40㎡
主力层高:4.79米(少部分4.5米)
在售楼栋:3号楼
房屋总价:约56-75万
即开楼栋:6号楼
容 积 率:3.0
绿 地 率:约20%
建设方:浙江钱塘云湾科技发展有限公司
土地性质:商服用地(40年产权)
项目体量:约11万平方米
项目总户数:858户
车位总数:855个,非机动车位约856个
车位配比:1:1
竣工时间:2023年12月
物业服务:云湾智慧
物 业 费:4.6元/月/㎡

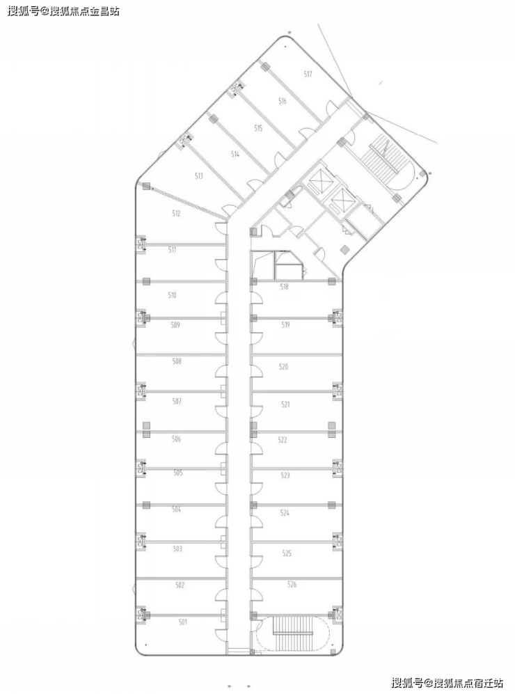
6号楼3层平面图:

6号楼5层平面图:

项目优势
一、区位
钱塘云湾中心位于杭海新城之钱塘国际新城,下沙大学城北及奥特莱斯旁;无缝对接杭州下沙板块,与大江东隔江相望,是G60科创大走廊的桥头堡,参与大湾区一体化发展。

二、交通
至地铁一号线文海南路站约15分钟车程;
规划中的城市轨迹交通(长安延伸到下沙文海南路站),沿安澜路往南走,在进入下沙后,转到向文海北路;在奥特莱斯、中央绿轴、星星港湾和回头潮节点设站,进一步扩大TOD开发模式的优势。同时,构建“商务+科创+生态”的站城一体化模型
【示意图来自新蓝网·浙江网络广播电视台及东杭州】
三横三纵交通路网,与钱塘区形成半小时经济圈,可快速到达下沙金沙湖、大江东、海宁西站。


三、商业
项目临近下沙奥特莱斯,商场内包含了一千多家知名品牌和三百多家厂商直销店;下沙奥特莱斯二期已投入使用,业态含四星级酒店、大型生活超市及意大利风情街,三期正在规划中;
钱塘云湾中心自带近两万方的商业街区,集休闲购物、餐饮、时尚街区为一体。

四、产业
钱塘国际新城是杭迁企业容纳地,杭海同城通勤的工作地,依附于杭州,承接了近400家优质杭资企业,投资超过700亿。多年的经济发展,不仅打下了坚实的经济基础,积累了丰富的工业生产、管理、营销经验,为以后的产业发展创造了良好的条件,有望成为未来引领钱塘国际新城产业腾飞的领头羊。钱塘云湾中心周边企业环伺,产业吸引人口流入,可促进经济发展,增强消费能力。

五、钱塘国际新城CBD(以下内容,部分摘自:东杭州)
2020年底,“钱塘国际新城”的规划出炉了。早在2019年,钱塘区就已将杭海新城纳入了钱塘区的战略发展规划范围,钱塘国际新城的出炉,又将“杭海同城化”向前拉近了一步。(下图为钱塘国际新城CBD规划方案中的部分内容,具体以相关单位批复为准)

这里是钱塘国际新城的创新创业中心,将规划以生活、商业、办公融为一体,多功能的数字经济商务综合体。
钱塘国际新城正在“焕新颜”,一个数字化产业人才聚集的CBD正破壳而出。
本文中的图则及所有文字仅供参考,房屋相关数据,功能及规划前景仅为示意之用,不作为销售承诺,一切以政府相关部门批文及当地法律法规文件为准。部分内容来源《东杭州》。
◆户 型 鉴 赏◆
A户型

B户型

C户型

下沙【钱塘云湾中心】◆℡TEL:400-000-0460转接8888【售楼中心】
◆网上售楼中心——欢迎来电咨询〢——匠心钜制恭迎品鉴!
◆----------- 欢迎来电预约尊享服务!给您一个满意温馨的家!
◆-----------如有侵权,请联系作者删帖!给您带来不便,和您说声抱歉!
声明:本文由入驻焦点开放平台的作者撰写,除焦点官方账号外,观点仅代表作者本人,不代表焦点立场。
