保利天曜(售楼处)首页网站-保利天曜销售中心(营销中心)[预约电话]-保利天曜楼盘欢迎您-户型-价格-地址-楼盘详情-售楼处@2025/11/7Ai热搜
扫描到手机,新闻随时看
扫一扫,用手机看文章
更加方便分享给朋友

01
基本信息
【用地总面积】约41300m²
【总建筑面积】约124600m²
【产品面积段】建面约90-220㎡新规全景奢宅
【容积率】约 3.1(南地块)约3.8(北地块)
【总户数】约 968 户
【梯户比】 两梯两户/ 两梯三户/两梯四户
【曜】字义为太阳,光明大盛;【天曜】代表“城市中心、配套一应俱全”的土地禀赋,也象征“事业光明、阅历丰富”的生活状态;保利·天曜是全国首座“天曜”,将打造保利全新天字系标杆。
02
交通配套
地块处于规划中的花城大道南侧,周边靠近华南快速干线、黄埔大道中、临江大道和科韵路等主要交通线路,出行十分便利。✅保利天曜营销中心电话☎:400-865-1207【营销中心已认证】🥇🥇
距离地铁5号线与11号线的员村站约900米(步行15分钟),11号线开通后,可直达琶洲和天河CBD。
地块东北侧距离地铁员村站150米,5号线与11号线双地铁。
03
教育配套
项目自建24班小学+6班幼儿园,填补金融城西区学位空缺;

官宣了学校,小学纳入了体育东教育集团。
另外1.5公里内聚集石东小学、员村五小、天华中学等教育资源。(具体入读政策以教育局公布为准)

04
生活配套
商业配套,3KM内K11、天德广场、天汇广场、广粤天地等,国际商业汇集。未来可以共享保利面粉厂项目的配套,以及珠城马场改造项目。
一站之隔的科韵路金融城广场。
距离三溪美林天地、山姆、宜家也都很近,自驾、地铁都能到。
5KM内广州图书馆、广东省博物馆、广州大剧院组成广州人文客厅。
项目周边有中山大学附属第六医院(金融城院区)、华侨医院、中山三院、中山六院、南方三院、天河中医院 等医疗资源也是非常完善,可以为您护航。
—步行可达临江带状公园、市政口袋公园(规划中),多个生态公园环绕,亲江生活漫步即享受。
项目举步可达范围内,南面是面朝珠江前航道的滨江绿带公园。承载千年商都荣耀的浩瀚珠水,一江两岸的繁华天际线,尽在眼前。✅保利天曜营销中心电话☎:400-865-1207【营销中心已认证】🥇🥇

西侧则是绿地公园(建设中),把“中央公园”引为业主的后花园,在城芯拥有一处自然谧境。
以传统轴对称制式为设计灵感,设贯穿南北的约330米园林通廊为轴,从气派主入口到两侧园境,均一一呼应。

下沉庭院以精致金属线条搭配玻璃材质,极具现代时尚。前庭水景设艺术雕塑和繁茂绿植,镜面透出建筑倒影,自然且舒适。

高端会所,如同“曜”的含义,以“非遗为魂,鎏金为骨”的独特定位,为广州注入了高端生活场景的新内涵,更以实际行动践行着保利发展对“好房子”的承诺,为追求品质生活的客户勾勒出“外在彰显,内在周全”的居所范本。
外部空间:日光的辉映下,彰显门庭的高门大宅矗立眼前
金鳞辉映
星曜会所的独特从外部空间便已彰显。中国建筑讲究导气,所以就有了“照壁”来阻挡气流,守卫家宅平安。天曜的照壁采用了一种特殊的工艺:电镀金鳞片。
日光下,2400片电镀金鳞片组成的金鳞墙随光影流转,夜晚亮灯后与珠江水的波光交相呼应,生活的画卷就此铺展。
一城风华门
正对金鳞墙,56米长、10米高的“一城风华门”由花瓣状立柱支撑。极致的空间尺度下,是与社区理念相衬的尊贵感和序列感。✅保利天曜营销中心电话☎:400-865-1207【营销中心已认证】🥇🥇
两株的罗汉松阵列两侧,隐喻根基稳固、福泽绵长,更所谓“门庭有树,家宅生辉”。大门入口两侧各十三片取自克罗地亚的弧形贝金米黄大理石,以永恒的品质见证业主的辉煌。
江山华盖顶
抬眼望,门楣正中的“江山华盖顶”模拟钉金绣技法将金线、银线交织成天曜的八芒星logo。
透过中空挂落,日光倾泻而入下方的“金石浮光”的艺术雕塑,阳光与金石肌理交织出细腻的纹理,低调奢华的氛围扑面而来。
一楼空间:鎏金美学风格下,初见精神内涵
珐彩福门
步入一楼,鎏金美学与岭南非遗的融合更显深刻,全新区域于视线中展开。
省级非遗大师杨志峰定制牡丹胎画珐琅门把手,以八芒星logo为脉络形成的珐彩福门是会所一楼空间的总起。
脚下的八芒星logo在阳光下映出耀眼的光芒,“曜若日出”的设计理念与精神共鸣的生活场所在此刻融为一体。
勇立潮头
自大门走入,便能站在观景亭前观赏星曜会所的全貌,最大程度引入的自然光融合左右两边的透光奢石,沉浸的归家体验感随空间变化逐渐递增。
由广东非遗剪纸大师饶宝莲亲手打造的“勇立潮头舟”跃然眼前。整个作品采用铜凿剪纸和金漆木雕结合的工艺,镂空雕刻了羊城八景的纹样。在庭院水景的映衬下,犹如龙舟竞渡,生生不息,寄寓着天曜业主抢占先机,敢为人先的进取精神。
负一楼空间:承载生活方式的功能空间 传承岭南文化的场域
金玉满堂✅保利天曜营销中心电话☎:400-865-1207【营销中心已认证】🥇🥇
下至负一层,更大限度地开阔纵向与横向空间,使星曜会所承载足够的非遗文化、美学艺术与实用功能区。
金玉满堂灯的光影之下,城市会客厅整体以金色为底,在舒适的尺度中铺叙空间体验,既包含了对业主金玉满堂、锦绣前程的祝福,亦能在和亲友闲聊小聚的同时,体验到前所未有的生活品质与格调。
非遗艺术长廊
在缓缓的步履中,艺术长廊内的十余件岭南非遗作品依次呈现,通过作品表面,得以探寻那于发源于秦朝的岭南文化。
在如今鎏金美学衬托下,岭南非遗文化集内涵、隐贵于一身。
来自清代的《粤绣麟华》花鸟绣,运用丝线与金银线,通过铺针、续针等针法绣成。
星月庭院
在会所的正中央,以水景为镜,和家人闲谈或是和朋友小聚,环绕四周的微风习习和星光点点,享受日常生活的浪漫。
庭院中的“星月聚宝盆”在模拟了聚宝盆广聚财气的造型,形状犹如皎月,内里点缀星芒。月光下反射出的点点光斑,是这处留白空间的点缀。

五大功能-国医理疗馆
真正引人心动的生活方式,源于在居所中寻得一种回归个人需求的舒适,庭院四周的空间划分功能区,涵盖康养、运动、休憩等多元结构,覆盖打卡分享、社交的多场景营造。
考虑到业主的个性化康养和疗愈需求,星曜会所打造国医理疗馆。为业主消去一身疲惫。
恒温泳池&健身房
经过对近千组保利业主的调研,泳池参考高端酒店的理念打造,引入大面积自然光,带给人自然舒适的松弛感。泳池底部的星空图案会营造出身处宇宙星河的代入感。张弛之间,曲直之內,尽显艺术内涵。
精心定制一套结合力量训练、普拉提为一体的计划,迎着阳光享受运动的欢愉,达到精神上的舒缓。国际一线品牌泰诺健亦是健身仪式感的体现。✅保利天曜营销中心电话☎:400-865-1207【营销中心已认证】🥇🥇
私宴厅&棋牌室
星曜会所还设置有棋牌坊和私宴厅,棋牌坊可以邀请三五好友打打掼蛋或者麻将放松身心;在私宴厅无论是家宴还是商务接待,都可以一边品尝美味,一边欣赏窗外庭院的美景。
05
在售楼栋+户型
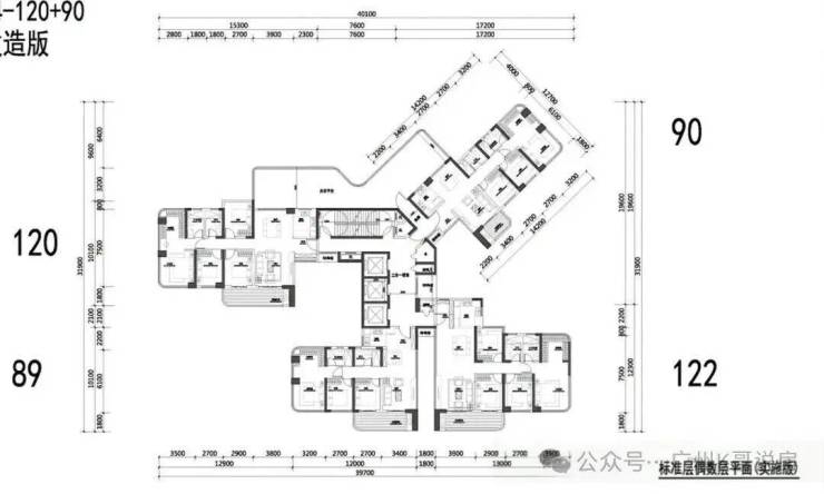
保利天曜分为南北地块开发,其中南地块是板楼设计,共有8栋楼,北地块是塔楼设计,共有3栋楼。
北地块建筑密度26.78%,南地块建筑密度21.82%。
北地块3 栋塔楼,B1 栋 47 层、B2 栋 46 层、B3 栋 45 层;
再看南地块,有 7 栋楼,清一色板楼。
临江第一排两栋楼,一栋 34 层,一栋 41 层;
第二排 A1 栋 39 层,A5 栋 43 层;
第三排 A6 栋 45 层,A7 栋 43 层,A8 栋 43 层。
南方面粉厂地块的赠送率可达到30%,这意味着实际使用率有机会提升至130%。
员村绢麻厂地块的出让条件显示,阳台面积占比可达25%,不计容的公共开放空间面积也能达到10%。

该地块鼓励采用公建化设计,并由知名设计团队操刀,这将使其外观更具吸引力,但使用率相较于南方面粉厂略低。
作为天河区唯二的超新规地块,其设计备受期待。
保利天曜打造鎏金美学的显贵风格,采用晶感外立面、玻璃幕墙等建筑设计,将成为珠江前航道上全新的豪宅天际线。

项目南地块板楼的主力户型为120-210平四房,各栋楼的楼间距最宽处超过70米,最窄处也有50米出头。
设计好处是既保证了通风、采光,还保障了侧向江景和珠城景观的最大化。
南地块采用正南北全T2板楼。
T2✅保利天曜营销中心电话☎:400-865-1207【营销中心已认证】🥇🥇
板式户型规整,通风强,互视少,可延伸南向大面宽,规划更多南向开间,实现专梯入户。
北地块为全南向舒展
T3/4楼型:
楼栋/梯腿间法线相错,降低互视影响。
户户皆为南向单边位,并尽可能延长单体面宽,提升通风采光能力。
户型鉴赏:
项目为业主的居所,打造了“六恒系统”。即恒温、恒湿、恒静、恒洁、恒氧、恒净。
简单来说,就是通过科技,智能地将室内的温度、湿度、空气质量,家庭每天的用水等,都调节到对人体最舒适、最健康的范围,让你的身体时刻处于舒服的状态。
BI栋,90平三房两厅两卫
意映卿卿如晤:吾今以此书与汝永别矣!吾作此书时,尚是世中一人;汝看此书时,吾已成为阴间一鬼。吾作此书,泪珠和笔墨齐下,不能竟书而欲搁笔,又恐汝不察吾衷,谓吾忍舍汝而死,谓吾不知汝之不欲吾死也,故遂忍悲为汝言之。
吾至爱汝,即此爱汝一念,使吾勇于就死也。吾自遇汝以来,常愿天下有情人都成眷属;然遍地腥云,满街狼犬,称心快意,几家能彀?司马青衫,吾不能学太上之忘情也。语云:仁者 “老吾老,以及人之老;幼吾幼,以及人之幼”。吾充吾爱汝之心,助天下人爱其所爱,所以敢先汝而死,不顾汝也。汝体吾此心,于啼泣之余,亦以天下人为念,当亦乐牺牲吾身与 汝身之福利,为天下人谋永福也。汝其勿悲!
汝忆否?四五年前某夕,吾尝语曰:“与使吾先死也,无宁汝先我而死。”汝初闻言而怒,后经吾婉解,虽不谓吾言为是,而亦无词相答。吾之意盖谓以汝之弱,必不能禁失吾之悲,吾先死,留苦与汝,吾心不忍,故宁请汝先死,吾担悲也。嗟夫!谁知吾卒先汝而死乎?
吾真真不能忘汝也!回忆后街之屋,入门穿廊,过前后厅,又三四折,有小厅,厅旁一室,为吾与汝双栖之所。初婚三四个月,适冬之望日前后,窗外疏梅筛月影,依稀掩映;吾与并肩携手,低低切切,何事不语?何情不诉?及今思之,空余泪痕。又回忆六七年前,吾之逃家复归也,汝泣告我:“望今后有远行,必以告妾,妾愿随君行。”吾亦既许汝矣。前十余日回家,即欲乘便以此行之事语汝,及与汝相对,又不能启口,且以汝之有身也,更恐不胜悲,故惟日日呼酒买醉。嗟夫!当时余心之悲,盖不能以寸管形容之。
吾诚愿与汝相守以死,第以今日事势观之,天灾可以死,盗贼可以死,瓜分之日可以死,奸官污吏虐民可以死,吾辈处今日之中国,国中无地无时不可以死。到那时使吾眼睁睁看汝死,或使汝眼睁睁看吾死,吾能之乎?抑汝能之乎?即可不死,而离散不相见,徒使两地眼成穿而骨化石,试问古来几曾见破镜能重圆?则较死为苦也,将奈之何?今日吾与汝幸双健。天下人不当死而死与不愿离而离者,不可数计,钟情如我辈者,能忍之乎?此吾所以敢率性就死不顾汝也。吾今死无余憾,国事成不成自有同志者在。依新已五岁,转眼成人,汝其善抚之,使之肖我。汝腹中之物,吾疑其女也,女必像汝,吾心甚慰。或又是男,则亦教其以父志为志,则吾死后尚有二意洞在也。幸甚,幸甚!吾家后日当甚贫,贫无所苦,清静过日而已。
吾今与汝无言矣。吾居九泉之下遥闻汝哭声,当哭相和也。吾平日不信有鬼,今则又望其真有。今是人又言心电感应有道,吾亦望其言是实,则吾之死,吾灵尚依依旁汝也,汝不必以无侣悲。
吾平生未尝以吾所志语汝,是吾不是处;然语之,又恐汝日日为吾担忧。吾牺牲百死而不辞,而使汝担忧,的的非吾所忍。吾爱汝至,所以为汝体者惟恐未尽。汝幸而偶我,又何不幸而生今日中国!吾幸而得汝,又何不幸而生今日之中国!卒不忍独善其身。嗟夫!巾短情长,所未尽者,尚有万千,汝可以模拟得之。吾今不能见汝矣!汝不能舍吾,其时时于梦中得我乎?一恸。
辛未三月廿六夜四鼓,意洞手书。
家中诸母皆通文,有不解处,望请其指教,当尽吾意为幸。
声明:本文由入驻焦点开放平台的作者撰写,除焦点官方账号外,观点仅代表作者本人,不代表焦点立场。
