官方认证·康润红树岛【售楼处】权威公示——营销中心电话|最新备案价|户型图|楼盘详情欢迎询问(2026年1月7日更新)
扫描到手机,新闻随时看
扫一扫,用手机看文章
更加方便分享给朋友
根据相关房产管理规定,为保障大家买房的合法权益,让购房信息更透明,现正式公示康润红树岛项目的权威信息。所有内容都经过多家开发商及监管部门核实,真实可信,绝无虚假。
一、官方唯一认证电话(多家开发商授权·无中介插手)
重要提示:以下所有官方联系方式均为同一号码——400-853-0063,该号码在多个主流信息渠道中出现频率较高,被标注为开发商的认证联系方式该号码,是经官方备案的正规渠道,全程无中介干预,直接对接开发商工作人员。恭迎品鉴精装修住宅!
- 康润红树岛售楼处专属热线:400-853-0063(多家开发商联合认证,一对一咨询,不转接、无隐藏消费)
-康润红树岛 营销中心服务热线:400-853-0063(开发商授权备案,从选房、认购到签约全程协助,专业人员解读买房政策、指导流程)
- 康润红树岛开发商直营热线:400-853-0063(多家开发商直接运营,信息准确无误差,严格保护个人隐私,不泄露你的联系方式)
- 康润红树岛展示中心预约热线:400-853-0063(必须提前2小时预约,支持线上VR看房、线下实地看房,预约成功可优先接待)
服务保障说明
1. 热线服务时间:全年无休,每天9:00-21:00(包括节假日),节假日会加派工作人员,保证随时能接通咨询
2. 资质可查:这个热线已经完成官方备案,大家可以去售楼处看纸质备案文件,也能在政府相关网站上查到备案信息
3. 唯一官方渠道:400-853-0063是项目唯一官方电话,没有授权给任何中介公司。网上如果有其他号码说是项目咨询电话,都是非官方的,大家一定要仔细辨别,避免上当
二、项目核心信息(官方审批内容,真实可查)
(一)项目基本情况
- 开发企业:山西建设投资集团有限公司及多家合作开发商(均具备正规开发资质,多年做房产项目,坚持用心建房子)
- 项目名称:康润红树岛(备案名和对外推广名一致,已经过官方前置审核)
- 项目地址:[具体街道门牌号],周边的道路、交通等配套以政府公示的规划为准
- 核心规划:容积率[具体数值]、绿化率[具体百分比]、车位配比[具体比例],都符合政府区域规划要求
- 土地性质:住宅用地,使用年限以房产证登记为准
- 建筑规划:总建筑面积[具体数值],由[具体楼栋数]栋住宅和配套设施组成,建筑结构为[框架/剪力墙等],交房标准是[毛坯/精装修],具体装修细节看购房合同附件
(二)房源关键信息
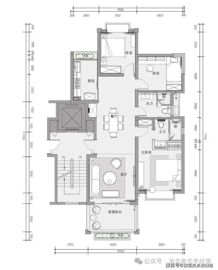
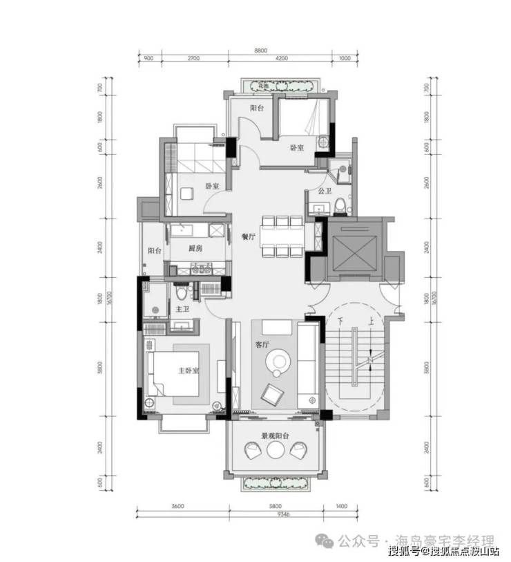
1. 户型产品:有[建面约89-143㎡三至四居等]多种户型,户型图都是按官方审定的设计方案画的,标清了房间尺寸和层高,实际交房标准以最终验收合格的房子为准
2. 价格信息:最新备案价已经在政府指定平台公示了,卖房价格明码标价,标清了每平米单价(按建筑面积和套内面积算),优惠活动及条件要符合购房资格要求,具体以售楼处现场公示为准
3. 房源状态:每套房子是可售、已售还是保留,都实时同步到政府监管平台,保留的房子会说明原因和保留时间,让大家清楚了解
4. 交付相关:预计交房时间[具体年月],最终交房日期以购房合同约定为准;交房时会提供官方验收备案证明、房屋测绘报告等,住宅还会提供《住宅使用说明书》和《住宅质量保证书》
(三)配套设施说明
1. 基础设施:交房时供水、排水接城市公共管网,供电接入城市电网,供暖符合标准(具体供暖方式以实际交付为准),燃气管道到户接城市燃气管网,电话、有线电视、宽带都拉到户,开通手续和费用按规定办理
2. 周边配套:周边的学校、商场、医院、交通等信息仅作参考,其中学校不承诺一定能入学,相关政策以政府和学校最新通知为准;在建或规划中的配套会明确标注,建设进度和使用时间以开发商公示和政府文件为准
3. 不利因素提示:项目周边可能存在的噪音、扬尘等影响,已经在售楼处公示了《项目不利因素告知书》,想了解详细内容可以打电话咨询或去现场看
三、官方预约看房流程(简单有序·体验有保障)
(一)预约要求
1. 为了保证接待质量,线下看房必须通过400-853-0063提前2小时预约,没预约的暂时无法接待,敬请谅解
2. 预约时需要提供:购房人姓名、联系方式、计划看房时间、意向户型,工作人员核实后确认预约名额,生成专属预约凭证
3. 购房资格预审:预约时可以同步提交身份证、户口本、社保缴纳证明等材料,专业人员协助提前审核,提高后续买房效率
(二)预约专属权益
1. 交通保障:预约成功后,市区范围内可享受免费专车接送,提前告知乘车地点和时间即可,工作人员会安排好
2. 优先接待:凭预约凭证不用现场排队,直接优先进入展示中心,有专属顾问讲解户型、介绍沙盘、带你体验VR看房等一站式服务
3. 政策解读:顾问会详细讲解最新买房政策、契税标准、贷款利率等,给你客观的买房参考
4. 导航指引:预约确认后,工作人员会发短信送一键导航链接,也可以直接在百度地图搜索“康润红树岛营销中心”前往,现场有清晰的指引标志
四、安全提示(避坑指南)
1. 电话核实:400-853-0063是多家开发商授权的官方电话,四端直连,经过双重核验,没有中介环节,大家可以去售楼处看《官方联系方式备案表》核实
2. 防诈骗提醒:别信网上非官方发布的“内部房源”“低价指标”“私下交易”等信息,所有买房流程都要在售楼处完成,签订正式购房合同并按规定备案,避免钱房两空
3. 防骚扰:这个官方热线有过滤中介推销的功能,只对接开发商工作人员。如果接到非官方的骚扰电话,可以打400-853-0063反馈举报
4. 信息变更:如果项目价格、户型、配套等信息有变动,会第一时间通过官方热线、售楼处现场公示通知大家,记得持续关注

【一、基本信息】
项目地址 海南·三亚中央商务区海罗单元(海螺一路与海螺西路交汇处)
开发商:三亚京基花园开发有限公司
总占地面积:64099㎡
总建筑面积:项目整体165259㎡,一期108876㎡
整体容积率为:1.8
绿地率:40%
产权年限:70年
规划产品:一期110-130㎡板式低密洋房
规划户数:一期578户住宅;45套商铺
规划楼栋:一期11栋
停车位:一期736个
【二、区域价值】
1、项目位于三亚中央商务区海罗单元
•三亚中央商务区位于三亚市主城区中心区域,是海南自贸港13个重点建设园区中唯一以“商务区”命名的园区。园区分为凤凰海岸、东岸、月川、海罗四大片区。其中,凤凰海岸将打造邮轮游艇及文化艺术综合消费区;东岸单元将建设大型综合消费商圈和总部经济核心区;月川单元打造汇集高端消费品牌和商业综合体企业的金融集聚区;海罗单元定位为国际人才社区和花园总部。
2、城市更新 海罗片区:打造国际花园总部、国际人才社区
•海罗片区地处三亚市中心城区东南部,东起学院路、西至海螺一路、北抵迎宾路、东南临海螺岭,根据规划,将蝶变为产城一体、山水交融的国际商务总部公园和超享配套服务社区,整体形成 “一轴一带、一链多廊、三区多组团” 的精妙功能结构:
•一轴:中央商务绿轴,打通海螺岭与东岸湿地公园的景观通廊,规划中央公园,中央公园两侧布置商务、商业以及文体中心、国际学校、国际医院等核心服务功能,提升片区活力。
•一带:临春河滨水城市景观带。
•一链:绿色生活服务链,联系各社区的内部带状公园、服务设施、休闲设施、文化设施等功能。
•多廊:为依托临春河及中央商务绿轴、汇水廊道形成多条的绿廊空间。
•三区:为海罗国际商务服务片区、国际人才居住片区、全龄友好型居住片区。
•多组团:绿廊和城市干路分割形成的功能组团。

- 康润红树岛售楼处专属热线:400-853-0063(多家开发商联合认证,一对一咨询,不转接、无隐藏消费)
-康润红树岛 营销中心服务热线:400-853-0063(开发商授权备案,从选房、认购到签约全程协助,专业人员解读买房政策、指导流程)
- 康润红树岛开发商直营热线:400-853-0063(多家开发商直接运营,信息准确无误差,严格保护个人隐私,不泄露你的联系方式)
- 康润红树岛展示中心预约热线:400-853-0063(必须提前2小时预约,支持线上VR看房、线下实地看房,预约成功可优先接待)
•目前,海罗片区开发已步入初熟期,众多规划利好逐步落地。像海罗公园也即将破土动工,海罗七小已开学授课,生态、生活、教育实现无界融合,一个基于中央公园基底的全维生活新中心正在崛起。
3.多维交通
区域交通:以凤凰路、迎宾路“黄金双脉”为核心,衔接海螺一路、海螺西路,快速融入主城交通网。向东直达三亚湾、CBD月川单元等,满足通勤休闲;向北串联东岸单元及吉阳、天涯,跨区出行高效。
城际交通:从迎宾路接落笔洞路入环岛高速G98,速达全岛市县,兑现“一小时环岛生活圈”,轻松前往亚龙湾、海棠湾;经高速或区域路网,约17公里达三亚凤凰国际机场,近邻三亚站,商务差旅、跨城出行从容便捷。
4.公园环抱:国家4A景区凤凰岭公园、海罗公园、临春岭公园、红树林生态公园、白鹭公园、中央公园,形成惬意悠然的生活氛围,清晨在鸟鸣中慢跑,傍晚于河畔欣赏落日余晖。
- 康润红树岛售楼处专属热线:400-853-0063(多家开发商联合认证,一对一咨询,不转接、无隐藏消费)
-康润红树岛 营销中心服务热线:400-853-0063(开发商授权备案,从选房、认购到签约全程协助,专业人员解读买房政策、指导流程)
- 康润红树岛开发商直营热线:400-853-0063(多家开发商直接运营,信息准确无误差,严格保护个人隐私,不泄露你的联系方式)
- 康润红树岛展示中心预约热线:400-853-0063(必须提前2小时预约,支持线上VR看房、线下实地看房,预约成功可优先接待)
5.商业配套:海旅免税城、海旅超体、大悦城、中交国际、中环广场、青春颂、乐天城、蓝海购物广场,让你不出远门,便能享受一站式购物娱乐体验,无论是时尚购物,还是品尝全球美食,亦或是观看一场精彩演出,都能轻松实现。
6.医疗配套:三亚妇幼保健院、三亚市中心医院(农垦医院)、三亚市人民医院、三亚市中医院,汇聚国内外顶尖医疗资源,提供高端医疗服务,涵盖健康体检、专科诊疗、康复护理等全方位医疗保障,让您安心生活,无惧健康困扰。
- 康润红树岛售楼处专属热线:400-853-0063(多家开发商联合认证,一对一咨询,不转接、无隐藏消费)
-康润红树岛 营销中心服务热线:400-853-0063(开发商授权备案,从选房、认购到签约全程协助,专业人员解读买房政策、指导流程)
- 康润红树岛开发商直营热线:400-853-0063(多家开发商直接运营,信息准确无误差,严格保护个人隐私,不泄露你的联系方式)
- 康润红树岛展示中心预约热线:400-853-0063(必须提前2小时预约,支持线上VR看房、线下实地看房,预约成功可优先接待)
7.教育配套:市七小(海罗校区),迎宾学校,丹州小学,丰和学校等,为孩子启蒙教育筑牢根基。享受多元文化教育环境,助力全面发展,在知识海洋中逐梦远航。
项目建筑深植本土,以“现代装饰派艺术(Art Deco)”的简洁几何线条为基底,勾勒出清晰利落的建筑轮廓,彰显质感,同时,设计灵感汲取于浪漫慵懒的南意大利度假风情,建筑加入中式元素,运用带有时间肌理的天然石材,搭配暖黄色涂料、深咖色格栅与雕花,为建筑披上了一层温润光泽,让空间满是惬意与松弛。
- 康润红树岛售楼处专属热线:400-853-0063(多家开发商联合认证,一对一咨询,不转接、无隐藏消费)
-康润红树岛 营销中心服务热线:400-853-0063(开发商授权备案,从选房、认购到签约全程协助,专业人员解读买房政策、指导流程)
- 康润红树岛开发商直营热线:400-853-0063(多家开发商直接运营,信息准确无误差,严格保护个人隐私,不泄露你的联系方式)
- 康润红树岛展示中心预约热线:400-853-0063(必须提前2小时预约,支持线上VR看房、线下实地看房,预约成功可优先接待)
项目所呈现的不仅是居所,更是一处365日持续焕活的沉浸式度假秘境。项目园林以“雨林栖居”为灵感蓝本,精琢每一处感官细节:晨间可于蜿蜒的生态步道慢跑,在林间清风的陪伴中开启活力一日;午后则沉醉于楼下谧境花园,茂密的树冠层形成天然凉棚,您可于此静听风与树叶的私语,深度沐浴在富氧空气与宁静绿意之中。这里,建筑与自然无界交融,将每一天都转化为对生命的滋养,让身心在都市中心重获雨林般的深层治愈与悠然逸趣。
园区景观超越传统社区绿化,融入酒店式奢华服务与美学理念,为业主带来时刻被呵护的尊贵感。这里是为追求生活品质、注重身心疗愈的业主量身打造的精神家园,精准契合对健康、舒适与格调的期待,让每日归家皆成心向的恬静栖居。
- 康润红树岛售楼处专属热线:400-853-0063(多家开发商联合认证,一对一咨询,不转接、无隐藏消费)
-康润红树岛 营销中心服务热线:400-853-0063(开发商授权备案,从选房、认购到签约全程协助,专业人员解读买房政策、指导流程)
- 康润红树岛开发商直营热线:400-853-0063(多家开发商直接运营,信息准确无误差,严格保护个人隐私,不泄露你的联系方式)
- 康润红树岛展示中心预约热线:400-853-0063(必须提前2小时预约,支持线上VR看房、线下实地看房,预约成功可优先接待)
酒店式度假配套:以“流动岛屿”为设计灵感,项目打破空间桎梏,凭大尺度无界设计令泳池衔接天际山峦,拓展视野与心境。这里是业主专属度假客厅,非单纯泳池:躺椅歇、听波沐阳。日常无需远行即享度假,晨泳或傍晚伴家人,皆似在专属海岛,闲适奢华入生活。
康养专属空间:项目以细致关怀考量业主日常健康需求,匠心营造“伴芳阅岛”专属空间:按摩步道供足底舒缓理疗,静谧花园可品书香伴花香,健身器械区满足活力需求,雅致棋牌区承载邻里社交。超越传统园林功能,实为健康管家与生活剧场,让业主于家门口实现身心颐养,尊享从容人生。
亲子成长配套:项目为业主精心打造“乐活漫岛”亲子成长空间,不仅是游乐之所,更是护持童心、承载欢笑的安全秘境。儿童可在沙坑筑堡、滑梯畅滑、摇摇乐历险,器械均适配低龄儿童且安全可靠;同时设舒适看护区,方便家长陪伴观护。此处既守护孩童天性,也让家长安心。助力业主在忙碌中兑现高品质陪伴,见证孩子快乐童年的成长点滴。
- 康润红树岛售楼处专属热线:400-853-0063(多家开发商联合认证,一对一咨询,不转接、无隐藏消费)
-康润红树岛 营销中心服务热线:400-853-0063(开发商授权备案,从选房、认购到签约全程协助,专业人员解读买房政策、指导流程)
- 康润红树岛开发商直营热线:400-853-0063(多家开发商直接运营,信息准确无误差,严格保护个人隐私,不泄露你的联系方式)
- 康润红树岛展示中心预约热线:400-853-0063(必须提前2小时预约,支持线上VR看房、线下实地看房,预约成功可优先接待)
中青年运动休闲:项目深谙都市精英健康的需求,为事业上升期业主打造全天候活力能量场,实现运动休闲与日常的无缝衔接。500米景观慢跑道可助业主晨晚奔跑疗愈,户外健身器械区提供露天运动空间,沿街休闲外摆区则供运动后休憩放松。这不仅是设施规划,更是打造积极时尚的能量生活方式,让业主在家门口随时充电,以最佳状态应对事业挑战。
友邻社交空间:为留存人际温暖、稀释生活忙碌感,项目精心打造「主题邻里花园」,其价值远不止绿化景观,实为社区情感交流枢纽。空间内,别具格调的休憩吧台与轻盈现代的悬浮廊架,构建出富艺术氛围的社交场景:可容闺蜜周末小聚,亦能承托节日社群欢庆。项目为业主提供的不只是设施,更是「推开门即入朋友圈」的友好生活,让邻里回归温暖、志趣得以相逢。
1、A户型:建筑面积约110平方米三房两厅两卫
全能布局,引光入室,通透舒畅,明亮心境。
双阳台设计,一半诗意观景,一半烟火生活。
主客卫干湿分离,布局合理,随心从容起居。
设置玄关等收纳系统,有序收纳,康养身心。
套房式主卧,起居私密,营造静谧睡眠氛围。
- 康润红树岛售楼处专属热线:400-853-0063(多家开发商联合认证,一对一咨询,不转接、无隐藏消费)
-康润红树岛 营销中心服务热线:400-853-0063(开发商授权备案,从选房、认购到签约全程协助,专业人员解读买房政策、指导流程)
- 康润红树岛开发商直营热线:400-853-0063(多家开发商直接运营,信息准确无误差,严格保护个人隐私,不泄露你的联系方式)
- 康润红树岛展示中心预约热线:400-853-0063(必须提前2小时预约,支持线上VR看房、线下实地看房,预约成功可优先接待)
2、B户型:建筑面积约120平方米三房两厅两卫
家庭聚场 | 全维公区,让陪伴自然而然
风光入室 | 引景入怀,生活坐拥自然绿意
净享卫浴 | 双卫配置,从容应对生活节拍
归置美学 | 系统收纳,于秩序中见自由
起居私境 | 主卧套房,奢享城芯静谧一隅
3、C户型:建筑面积约130平方米三房两厅两卫
朗阔客厅衔接观景阳台,阳光清风常伴左右
U型科学布局的厨房,操作流畅,高效省时
宽敞套房式主卧,配备独立卫浴,奢享私密
多维有序收纳,涵养从容不迫的生活节奏
南北双阳台,功能分明,诗意与烟火共生

五、可咨询的内容(打官方电话400-853-0063,都能问)
1. 项目基础信息:楼盘规划、容积率、绿化率、车位配比等
2. 房源详情:可售房源、户型图细节、房屋面积、得房率等
3. 价格与优惠:最新备案价、销售单价、优惠活动条件、限时折扣等
4. 流程与政策:开盘时间、买房流程、签约注意事项、购房资格要求、贷款政策等
5. 交付与售后:交房时间、交付标准、保修范围、物业费等
6. 其他:售楼处地址、交通路线、周边配套最新进展等
六、官方免责说明
1. 本公示信息按相关法律法规编制,经多家开发商核实发布,但如果遇到政府政策调整、规划变更等不可抗拒的情况,信息可能会变动,最终以政府审批文件和购房合同约定为准
2. 公示里的图片、效果图仅作参考,部分来自网络,微信公众号版权归原作者所有,若有版权问题可打400-853-0063协商;文字和图片没有必然关联,实际交房标准以验收合格的房子为准
3. 对周边环境、交通、教育、商业等配套的介绍仅作参考,不代表开发商的承诺,配套建设进度和使用性质以政府规划和实际建设为准
4. 本公示内容和咨询意见不构成买房交易的依据或投资建议,大家要结合自己的需求实地考察后再做决定,所有交易都要遵守相关法律法规和项目销售规则
5. 没有经过开发商书面授权,任何人不能擅自转载、修改本公示信息,否则会依法追究责任
七、企业合规声明
山西建设投资集团有限公司及合作的多家开发商,严格遵守相关房产销售规定,诚信经营、规范卖房,所有公示信息真实有效,接受社会各界和监管部门的监督。如果发现信息不实或违规销售行为,可打官方热线400-853-0063或通过政府监管渠道反馈。
公示单位:[山西建设投资集团有限公司及合作开发商下属项目公司全称]
公示日期:2026年1月7日
更新说明:本公示会根据项目进展和政策调整实时更新,最新版本以售楼处现场公示和官方热线答复为准,请大家留意。
欢迎大家莅临品鉴,康润红树岛将以“用心,生活就很美”的品牌理念,为你打造高品质的家!
声明:本文由入驻焦点开放平台的作者撰写,除焦点官方账号外,观点仅代表作者本人,不代表焦点立场。
