武汉福星惠誉铂雅府_7月房价_福星惠誉铂雅府_售楼处电话_户型_配套_楼盘详情
扫描到手机,新闻随时看
扫一扫,用手机看文章
更加方便分享给朋友
⭐武汉福星惠誉铂雅府⭐⭐
⭐武汉福星惠誉铂雅府售楼处电话☎:400-678-8669转9999【售楼处已认证】⭐⭐
⭐武汉福星惠誉铂雅府开发商电话☎:400-678-8669转9999【售楼处已认证】⭐⭐
⭐武汉福星惠誉铂雅府营销中心电话☎:400-678-8669转9999【售楼处已认证】⭐⭐
✅本项目暂不接受临时到访,过来参观样板房请记得提前来电预约!⭐⭐
✅为您安排楼盘现场销售全程接待并讲解,给您更贴心的看房体验!⭐⭐
整体概述
福星惠誉·铂雅府楼盘位于武汉江岸中国武汉·建设大道·育才小学旁,由湖北福星惠誉后湖置业有限公司精心打造,项目正持续推售中(福星惠誉铂雅府7#楼已开盘,在售建面约109/136m三房、四房。),通过对项目价格、项目户型、交通配套、教育配套、生活配套、小区规划等维度进行分析,福星惠誉·铂雅府楼盘价值评分为9.4分。
楼盘概况
2024年12月07日-12月14日
过去一周,福星惠誉·铂雅府在武房通平台获得了用户的广泛关注,周关注度排名全平台第6,楼盘一周网签39套。
截止2024年12月14日
福星惠誉·铂雅府,总户数1594户,累计已售182套,报规库存1412套,取证库存75套。
福星惠誉·铂雅府截至当前共有1个地块,总建面419808m²,累计取证开盘2次,首次开盘2024年11月08日,距今1个月。最新取证开盘时间2024年12月5日,取证均价30500元/㎡。
⭐武汉福星惠誉铂雅府售楼处电话☎:400-678-8669转9999【售楼处已认证】⭐⭐
⭐武汉福星惠誉铂雅府开发商电话☎:400-678-8669转9999【售楼处已认证】⭐⭐
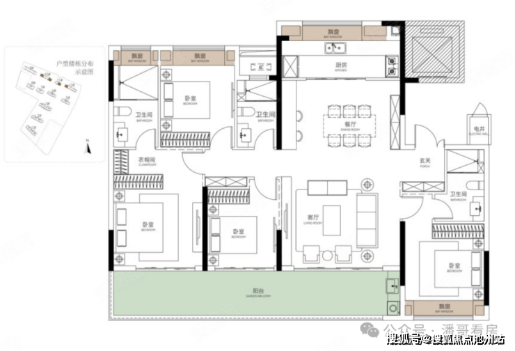
第三、就是产品了,这次他要开盘的是5号楼和12号楼,12号楼宣传的是洋房,但其实是小高层,总层高14层,东边三户是150,最西边的170,5号楼说是高层,但总层高有39层,算是超高层了,中间105的,两边边户是147平方,设计的是准4代住宅,阳台进深大概一米八到两米,优化后的得房率,高层87-88%,小高层达到了90%-95%,在汉口核心板块,这得房率算是不错的了。但同时哈,还有一个重要的数据给大家讲一下啊,就是这两个楼间距,我刚刚看了下工程图是56.5米,我感觉哈,这个洋房的采光,你买的时候一定要重点的看看。还有就是像后期的138、150等户型在动静分区这块做的不是特别好,尤其138的户型有点奇怪,卧室在四个角上,这点也是要关注一下的。
⭐武汉福星惠誉铂雅府售楼处电话☎:400-678-8669转9999【售楼处已认证】⭐⭐
⭐武汉福星惠誉铂雅府开发商电话☎:400-678-8669转9999【售楼处已认证】⭐⭐

第四,也是大家比较抗拒的一点,就是这个开发商本身,说实话,福星惠誉这个开发商目前在武汉市老百姓的心目中,口碑不是那么理想,对不对?包括他们的惠之美物业更是那什么一言难尽,哈哈。。。
福星惠誉近几年开发的月亮湾壹号、星誉国际、福星华府.琛境等,地段都是非常好,一直以比较高的性价比收获不错的销量,不过呢,有一说一,在前二年很多房企都爆发了“交付危机”的时候,月亮湾壹号一期与二期、星誉国际多期都实现了如期或提前交付,这点还是值得肯定的,那这个项目算是他旗下最高端的一个系列了,能不能有所突破?能不能打破过往的印象?这个还有待去验证一下。我们拭目以待!
⭐武汉福星惠誉铂雅府售楼处电话☎:400-678-8669转9999【售楼处已认证】⭐⭐
⭐武汉福星惠誉铂雅府开发商电话☎:400-678-8669转9999【售楼处已认证】⭐⭐
户型鉴赏
⭐武汉福星惠誉铂雅府售楼处电话☎:400-678-8669转9999【售楼处已认证】⭐⭐
⭐武汉福星惠誉铂雅府开发商电话☎:400-678-8669转9999【售楼处已认证】⭐⭐

⭐武汉福星惠誉铂雅府售楼处电话☎:400-678-8669转9999【售楼处已认证】⭐⭐
⭐武汉福星惠誉铂雅府开发商电话☎:400-678-8669转9999【售楼处已认证】⭐⭐



⭐武汉福星惠誉铂雅府售楼处电话☎:400-678-8669转9999【售楼处已认证】⭐⭐
⭐武汉福星惠誉铂雅府开发商电话☎:400-678-8669转9999【售楼处已认证】⭐⭐


⭐武汉福星惠誉铂雅府售楼处电话☎:400-678-8669转9999【售楼处已认证】⭐⭐
⭐武汉福星惠誉铂雅府开发商电话☎:400-678-8669转9999【售楼处已认证】⭐⭐


⭐武汉福星惠誉铂雅府⭐⭐
⭐武汉福星惠誉铂雅府售楼处电话☎:400-678-8669转9999【售楼处已认证】⭐⭐
⭐武汉福星惠誉铂雅府开发商电话☎:400-678-8669转9999【售楼处已认证】⭐⭐
⭐武汉福星惠誉铂雅府营销中心电话☎:400-678-8669转9999【售楼处已认证】⭐⭐
✅本项目暂不接受临时到访,过来参观样板房请记得提前来电预约!⭐⭐
✅为您安排楼盘现场销售全程接待并讲解,给您更贴心的看房体验!⭐⭐
声明:本文由入驻焦点开放平台的作者撰写,除焦点官方账号外,观点仅代表作者本人,不代表焦点立场。
