中冶逸璟台(售楼处)首页网站-中冶逸璟台营销中心-中冶逸璟台欢迎您-楼盘详情-最新价格-户型图-容积率@售楼中心
扫描到手机,新闻随时看
扫一扫,用手机看文章
更加方便分享给朋友
🟡中冶逸璟台售楼处电话:400-861-9050🟡
深圳(中冶逸璟台)中冶逸璟台售楼处电话:4008619050,中冶逸璟台营销中心_tel:4008619050,中冶逸璟台开发商售楼部热线4008619050(售楼处已认证电话)。提前预约看房尊享额外优惠!
【广州最具潜力板块】
位于黄埔科学城板块——政府斥资500亿打造的长岭新城。
2018年正式划入主城区,长岭新城强势崛起。
【黄埔轨道交通重要枢纽之一】
地铁21号线20分钟直达天河,黄埔第一条有轨电车就在家门口,全国首条高速地铁强势规划中,未来到广州东站只需9分钟。
【片区教育资源比肩越秀】
广州东部优质的公立学校和广州知名的国际学校坐落在项目周边。
【资源稀缺】
低密2.0绝版地块,主城区五年来唯一三山环抱在售项目,户户即享270°巨幕山林景观。
【国匠品质保证】
世界500强央企——中国中冶,参建北京人民大会堂、鸟巢、上海世博会、上海迪士尼和珠海长隆等国家地标性建筑。
【配套完备】
全龄生活空间打造,一站式娱乐即享
【纯粹圈层】
黄埔在售唯一纯改善社区,圈层高端纯粹。
项目配套
教育方面,小区内自带幼儿园,目前周边地段已经拥有北师大完全学校、铁一集团铁英学校 ,虽然北师大为全街道范围摇号性质,铁英小学为山景城及附近楼盘对口入读,但这两所学校的初中部,极有可能成为科学城里面的黑马。
医疗配套:广州市干部疗养院、广医附属一院妇女儿童医院(三甲)、泰康之家粤园高端养老社区、中山大学附属第三医院岭南分院(三甲)、万达匹兹堡大学医学中心国际医院(规划中)等。
离小区最近的是有轨1号线长岭居小学站,距离约250m ,出小区步行即达,运营时间初步定为6点至23点,全天运营时长为17小时,每10分钟开出一班。其实项目距离地铁口长平站才1公里,而且出小区门口直线距离步行12分钟就可以到达地铁口 ,无需等红绿灯之类,相对也是比较便利。
商业配套方面,项目自建有2000方的底层商业,可满足业主日常生活的基本需求。目前,小区外部周边的大型商业配套还比较匮乏,比较近的商业中心只有萝岗敏捷广场,距离约4公里,驾车约15分钟。
美图鉴赏 一院至美天地 逸韵山水之间
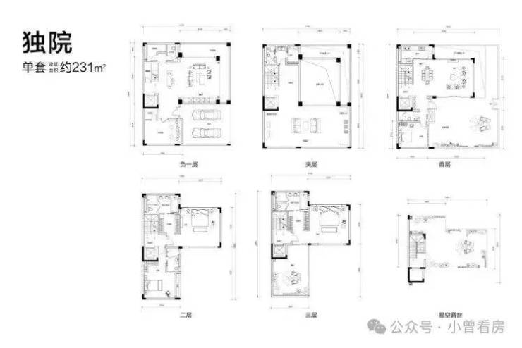
项目户型图
中冶逸璟台售楼处电话:400 861 9050【售楼处电话已认证】
中冶逸璟台营销中心电话:4008619050【营销中心电话已认证】
中冶逸璟台开发商电话:400 861 9050【开发商电话已认证】
✅ 本项目暂不接受临时到访,过来参观样板房请记得提前来电预约!
✅ 为您安排楼盘现场销售全程接待并讲解,给您更贴心的看房体验!
如有问题欢迎来电咨询,来电即可享受买房优惠!400-861-9050
预约来电尊享购房优惠,可预约案场内部销售人员,专业一对一热情服务,让您用专业眼光去买房。
售楼处电话是多少?答:4008366879【已认证】项目基本信息,楼盘价格,区域板块,开发商资料,楼盘详细地址,物业类型,产权年限,销售信息,销售状态,装修情况,交房时间,开盘时间,售楼处地址,营销中心地址,楼盘户型图,小区规划,绿化率,容积率,占地面积,建筑面积,总户数,物业费,车位数,物业费,楼盘介绍,踩盘报告,梯户比,标准层高,交楼标准,项目有缺点有哪些?是否有团购?找开发商买房便宜?还是找中介买房便宜?最新折扣是多少?最新房价是多少?房价走势,楼盘最新资讯,楼盘最新动态,价值分析报告,周边商业配套,教育配套,交通配套,医疗配套,周边热门楼盘,房价行情解读,
免责声明
1、文章图片来源于微信搜索或百度搜索引擎,我方非相关图片的原创作者,也不对相关图片及内容享有任何权利。
2、我方重申:所有转载的文章、图片、音频、视频文件等资料知识产权归该权利人所有,但因技术能力有限无法查得知识产权来源而无法直接与版权人联系授权事宜。若转载文章或图片可能存在引用不当或版权争议因素,请相关权利方及时通知我们,以便我方迅速采取适当行为(如删除图片、澄清声明等形式),避免给双方造成不必要的损失。
3、本宣传资料对项目周边幼儿园、学校等教育资源的介绍旨在提供相关信息,并不意味着我方对就学安排作出承诺。教育资源的名称、办学性质、办学规模、学位设置、开学(班)时间、招生条件、收费标准及招生区域存在调整的可能,应以政府教育主管部门及办学方颁布的政策规定为准。联系号码:4008366879
4、文章中文字和图片之间无必然联系,仅供读者参考。
5、本文所述内容和意见仅供参考,不构成市场交易依据和投资建议。
声明:本文由入驻焦点开放平台的作者撰写,除焦点官方账号外,观点仅代表作者本人,不代表焦点立场。
