楼市热搜焦点:石家庄帝王国际售楼处电话→帝王国际首页热搜24小时电话→最新房价→楼盘百科详情→营销中心最新发布@售楼处中心
扫描到手机,新闻随时看
扫一扫,用手机看文章
更加方便分享给朋友
✨✨帝王国际售楼处电话:400-678-1582转接8888【已认证】
✨✨帝王国际售楼处位置:400-678-1582转接分机号8888【楼盘认证】
➤➤➤➤VIP贵宾置业〢欢迎来电咨询,售楼处认证电话
☎为您安排楼盘现场销售全程接待并讲解,给您更贴心的看房体验!
温馨提示:如需楼盘最新在售户型和价格,请致电咨询最新详情,1对1专业销售顾问服务!
物业类别:普通住宅 洋房 商住公寓
项目特色:现房 教育地产 地铁沿线 洋房
建筑类别:板楼
装修状况:住宅:毛坯
产权年限:普通住宅产权为70年,洋房产权为70年,商住公寓产权为70年
环线位置:一环以内
开发 商:河北鑫界房地产开发有限责任公司
楼盘地址:裕华建设大街与槐北路交口东南角
整体概述
帝王国际楼盘位于石家庄裕华建设大街与槐北路交口东南角,由河北鑫界房地产开发有限责任公司精心打造,项目正持续推售中,最新参考价格为35000元/平方米,通过对项目价格、项目户型、交通配套、教育配套、生活配套、小区规划等维度进行分析,帝王国际楼盘价值评分为9.4分。
项目价格
8分
当前,帝王国际价格为35000.00元/平方米。
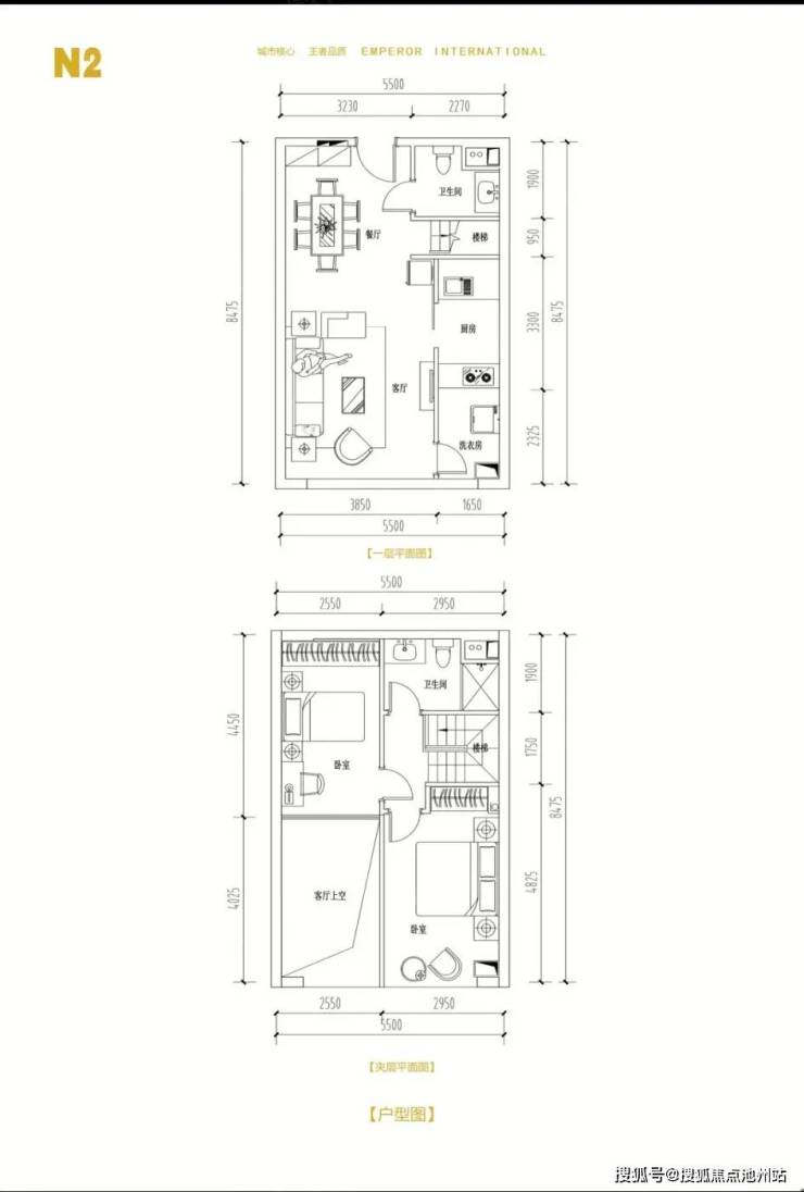
项目户型
9.4分
2居(3)
3居(4)
4居(4)
5居(3)
7居(1)
2室2厅1卫
帝王国际 LOFT户型·建面/44㎡
待售
南北通透
户型方正
采光充足
2室2厅2卫
帝王国际 LOFT户型·建面/61㎡
待售
全明格局
户型方正
2室2厅2卫
帝王国际 LOFT户型·建面/64㎡
待售
全明格局
采光充足
独立餐厅
查看全部户型
交通配套
10分
周边直线3km范围内有14个地铁站(槐中路、裕华路、北国商城、欧韵公园、博物院、平安大街、长安公园、体育场、元村、孙村、塔冢、汇通路、解放广场、东王),轨道交通发达,距离最近的地铁站是槐中路。
周边直线1km内有29个公交站,距离最近的公交集团站仅有108m,周边公共交通极为便捷。
公交站数量
29
地铁站数量
14
教育配套
10分
直线3km范围内有86个幼儿园;48个小学,如石家庄市南马路小学、石家庄市龙腾小学、裕华路小学、裕华西路小学、四中路小学等;23个中学,如石家庄第四中学、石家庄一中、石家庄外国语学校、石家庄市第二十三中学、石家庄市第二十中学等。
幼儿园数量
86
小学数量
48
中学数量
23
注:上述学校相关信息仅为参考,不作为入学依据。具体入学政策可咨询您的专属经纪人
生活配套
10分
楼盘周边医疗资源较为丰富,直线3km范围内有26个一级及以上医院。其中石家庄市人民医院范西路院区距离楼盘746m,石家庄市人民医院(方北院区)距离楼盘1.4km,河北医科大学第四医院本部距离楼盘2.1km,河北省中医院距离楼盘2.5km,河北省儿童医院距离楼盘2.9km,等等,为医疗需求提供了可靠保障。
楼盘周边3km范围内有46个商场,包括北国商城、东尚年轻力中心、怀特商业广场、乐U新天地、北国先天下等购物中心,商业配套成熟,完全可以满足日常购物需求。
楼盘周边生态环境优越,周边3km范围内有85个公园,距离最近的仅372m,非常方便日常休闲使用。
✨✨帝王国际售楼处电话:400-678-1582转接8888【已认证】
✨✨帝王国际售楼处位置:400-678-1582转接分机号8888【楼盘认证】
声明:本文由入驻焦点开放平台的作者撰写,除焦点官方账号外,观点仅代表作者本人,不代表焦点立场。
