深圳恒裕深圳湾售楼处电话→恒裕深圳湾售楼中心电话→恒裕深圳湾首页网站→楼盘百科→首恒裕深圳湾页网站→24小时热线电话
扫描到手机,新闻随时看
扫一扫,用手机看文章
更加方便分享给朋友
🌊前海首排 全球商务力
💎建面约530-1700平
💎唯一拥有永久无遮挡一线海景在售写字楼
💼现楼发售 即买即用 进驻湾区核心CBD
项目基础信息💎
项目地址:深圳市南山区前海临海大道与桂湾三路交汇处
开发商:恒裕集团
项目总占地:约2.39万㎡
项目总建面:约29万㎡
容积率:8.426
推售产品:T2栋写字楼,530㎡起/套(办公套数66套,商业办公8套)
物业:世邦魏理仕
入伙时间:即买即入伙
T2写字楼基本数据
建筑面积:约3.98万㎡
建筑高度:约186m
层数:37层
分区:5-16层低区;18-26层中区;27-37层高区(7/17/28层为避难层)
幕墙:双银中空超白LOW-E玻璃幕墙
大堂高度:约16m
标准层面积:约1700㎡
标准层层高/净高:4.5m/3.3m
网络地板:120mm
产权年限:40年(2015-2055)
中央空调:24小时
电梯:奥的斯电梯13部
VIP电梯:1部
VIP洗手间:2间
停车位:571个
管理费:24元/㎡/月
销售户型:530-951-1700-3400平米
商业2栋3栋(整层起售)
2栋1至4楼,约3500平
3栋1至3楼,约1000平
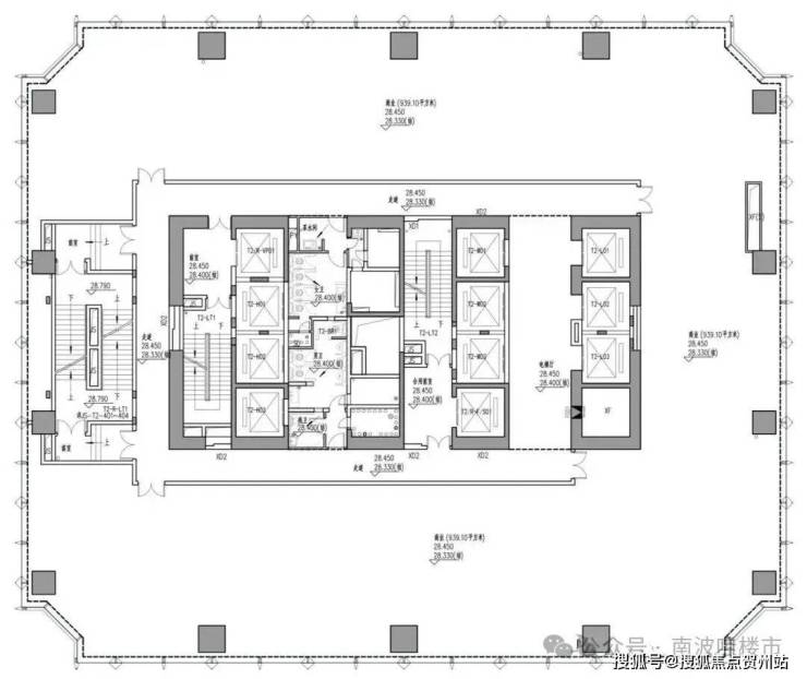
标准层平面图💎
💡低区(6F)平面图
中区(22F)平面图
高区平面图(挑高部分层高9米,奇偶层挑高部分对称)
项目价值点
1⃣️湾区核心 - 前海作为国家级战略的双重核心引擎,特区中的特区。享最高级别的政策支持,双15%税收优惠,助揽全球顶尖企业和人才,启幕世界级金融中心。
2⃣️绝佳景观 - 前海桂湾首排,唯一拥有永久无遮挡一线海景的在售写字楼;汇聚前海石公园、前海国际金融交流中心、剧院等城市客厅超级规划,尽享T型中轴公园生态体验。
3⃣️交通优势 - 背靠亚洲在建最大综合交通枢纽,集聚4D“海、陆、空、铁”交通网络,将是珠三角最高效核心枢纽,成为整个南中国的效率高地,构建1小时国际生活圈,分秒联通世界。
4⃣️集中供冷 -前海独有,世界最大区域集中供冷系统,更为节能高效。
5⃣️品牌开发商 - 恒裕集团集30余载发展与沉淀,秉承“匠心·筑经典”的开发理念,为前海打造新地标。
6⃣️大师荟萃 - 集萃全球大师团队智慧,TFP\SWA\伍兹贝格\SLD\CCD\贝尔高林\ARUP\TKLC\迈进,再造世界地标。
7⃣️国际物业 - 专供国际巅峰人士,16米超高大堂、4.5米阔境层高(局部9米)、2.6米超大幅宽玻璃幕墙、最快7米/秒奥的斯电梯、VIP专属直达电梯、VIP总裁盥洗室,为总裁量身打造,满足商务会客与办公休闲,国际巅峰礼遇。
8⃣️绿色地标 - LEED金级和国际绿色三星双重认证,构建世界级绿色建筑标杆。
9⃣️国际物管 - 百年全球行业经验,财富500强的商业房地产服务公司——世邦魏理仕,担纲全程物管服务,以全面化的优质综合服务平台、前沿的智慧管理系统,为项目提供与时俱进的尊崇服务,为物业的持续增值保驾护航。
1⃣️0⃣️实景现楼 - 一手现楼,即买即用,品质交付。即刻执掌前海资产高地。
项目配套💎
1⃣️珍膳坊:位于T2栋写字楼4层,中国团餐十佳品牌,20余年团餐管理经验,全国团餐企业排名TOP3,深受企业、员工、政府监管部门的一致好评,将为区域带来全新商务团餐体验。
2⃣️Manner咖啡:位于T1栋写字楼大堂,其咖啡坚持产地严选,从源头把控咖啡豆的品质,香味浓郁独特。未来于此,静品咖啡,悦享商务休闲之乐。
3⃣️Luckin Coffee瑞幸咖啡:咖啡好味,生豆八分,瑞幸咖啡豆连续三年获得IIAC国际咖啡品鉴大赛金奖。拼配团队由WBC世界冠军组成,通过独特配比充分展现咖啡豆特色,为您奉上一杯最佳风味大师咖啡。
京喜便利店:位于T2栋底商,全新业态优选便利店,致献独特消费体验。以与众不同的商品与专业贴心的服务,传递国际化的服务风情。
5⃣️潮流健身会所:位于国金汇4楼,配备高端健身设施与专业化服务,畅享顶级的运动体验。上班运动无缝衔接,酣畅淋漓挥洒汗水,舒缓每日的疲惫。
6⃣️高效商务出行:项目地下车库设有前海地下道路出入口,接驳前海地下道路,实现地库车辆快速进出,提高商务出行效率。
7⃣️私享场地预约:位于T1栋39层,云端多功能厅、商务会议室、总裁会议室,私享预约使用。
8⃣️专属通勤巴士:安排专属职员接驳巴士,满足入驻公司员工的通勤需求
区域规划图
声明:本文由入驻焦点开放平台的作者撰写,除焦点官方账号外,观点仅代表作者本人,不代表焦点立场。
