首开第五大道售楼处→温州首开第五大道售楼中心电话→第五大道楼盘百科→首页网站→ 首开第五大道售楼处电话→售楼中心电话→24小时热线电话
扫描到手机,新闻随时看
扫一扫,用手机看文章
更加方便分享给朋友
⫸⫸⫸ 温州首开第五大道⫷⫷⫷
⫸⫸⫸温州首开第五大道售楼处电话:400-681-7288接通后输入3333⫷⫷⫷
⫸⫸⫸温州首开第五大道开发商电话:400-681-7288接通后输入3333⫷⫷⫷
⫸⫸⫸温州首开第五大道营销中心电话:400-681-7288接通后输入3333⫷⫷⫷
⫸⫸⫸温州首开第五大道展示中心电话:400-681-7288接通后输入3333⫷⫷⫷
来电可了解楼盘最新动态、房价、在售房源、交楼时间等信息!让你买的放心,住的舒服
市芯 三区中心位置 拥有一线中央绿轴融入三垟湿地景观资源的方正品质大盘,尊享湿地景观
项目基本信息
开发商:首开股份
项目名称:首开 第五大道
规划户数:981户 12栋
装修标准:1000/平
交付时间:预计2025年5月30日
物业公司:万科物业
物业费用:3.98元/平(含能耗和增值服务费)
车位配比:1:1
占地面积:48611
建筑面积:212224
容积率:3.1
绿化率:30%
户型:109 129 139 168
楼盘分布图
项目配套
1.欧泊泳池会所
含室内恒温泳池、台球室、健身房、瑜伽室等休闲娱乐配套设施。
2.架空层泛会所
8栋不同主题架空层,内设艺术休闲、四点半学堂、运动健身、休闲茶室、共享厨房等全龄休闲功能空间。
3.都会园林
约3.6万方美式都会园林,规划共享club、全龄乐园、阅读花园等两周四境空间。
4.传世建筑
立面甄选铝板幕墙、双银 LOW-E玻璃、系统门窗,辉映城市天际 大面积玻璃窗搭配金属线条,弧形的转角造型在阳光照射下熠熠生辉,整体建筑线条柔美流畅
5.一线三垟湿地
湿地景观面更广 , 坐观美好自然景观,享受城市绿肺
户型篇
户型一【109户型】
1.空间布局:户型设计方正,极大改善空问使用性,安排完善空间体验。户型配有独立的玄关设计,提升房型结构及隐私性能。户型的动线设计考虑私密性,入户门进入后映入眼帘的是客餐厅等公共区域,需往里走几步才可抵达主人居住空问。
2.采光通风:主阳台朝南,若装配落地窗,每日采光将非常不错。户型朝南的房问有客厅、餐厅、儿童房、主卧,充分享受“冬暖夏涼”舒适体验。南北通透,开窗后对流风可迅速为室内换上新鲜空气。厨卫全明,室内采光无死角,营造了清爽整洁空间氛围。
3.户型特点:户型设计1条过道,过道面积紧凑,空问少不浪费。3室比较适合改善型人群,2卫的设计,解 決了抢卫生间的尴尬,同时也保证主人生活私密性。户型的餐厅和客厅无缝连接,整体营造 局部大空问的体验。房间动区简约大气,提供舒适生活娱乐氛围。主卧套房的设计,扩大卧室面积,提升主人居住体验,配有独立的主卧 卫生问,增加私密性。该户型为动静分离设计,居住区域与娱乐区域完全分离,两者互不影响。卧室与卫生间相连,主人平日起居生活 效率更高,提高了居住体验。
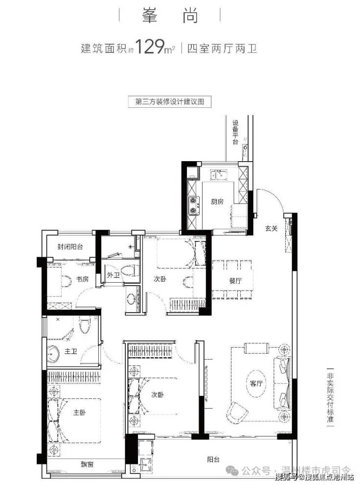
户型二【129户型】
1.空间布局:户型设计方正,极大改善空间 使用性,安排完善空问体验。
2.采光通风:主阳台朝南,若装配落地窗,每日采光将非常不错。户型朝南的房间有客厅、餐厅、书房、儿童房、主卧,充分享受“冬暖夏涼”舒适体验。南北通透,开窗后对流风可迅速为室内换上新鲜空气。厨卫全明,室内采光无死角,营造了清爽整洁空间氛围;户型采用双阳台设计,一南一北空间布局,南阳台阳光房适宜休闲娱乐,北阳台适宜摆放晾衣架及洗衣机,日常生活完美搭配。
3.户型特点:户型设计1条过道,过道面积紧凑,空间少不浪费。4室比较适合改善型人群,2卫的设计,解决了抢卫生问的尴尬,同时也保证主人生活私密性。户型的餐厅和客厅无缝连接,整体营造 局部大空间的体验。房间动区简约大气,提供舒适生活娱乐氛围。主卧套房的设计,扩大卧室面积,提升 人居住体验,配有独立的主卧 卫生问,增加私密性。
户型三【139户型】
1.空间布局:标准层高设计。户型配有独立的玄关设计,提升房型结构及隐私性能。
2.采光通风:主阳台朝南,若装配落地窗,每日采光将非常不错。户型朝南的房问有客厅、餐厅、儿童房、主卧,充分享受“冬暖夏凉”舒适体验。南北通透,开窗后对流风可迅速为室内换上新鲜空气。厨卫全明,室内采光无死角,营造了清爽整洁空问氛围。
3.户型特点:户型设计1条过道,过道面积紧湊,空间少不浪费。4室比较适合改善型人群,2卫的设计,解
決了抢卫生问的尴尬,同时也保证主人生活私密性。户型的餐厅和客厅无缝连接,整体营造局部大空问的体验。房间动区简约大气,提供舒适生活娱乐氛国。主卧套房的设计,扩大卧室面积,提升主人居住体验,配有独立的主卧
卫生问,增加私密性。
户型四【168户型】
1.空间布局:168平户型面积约为168.00平,该户型在本市在售4室户型中面积较大,标准层高设计。
2.采光通风:主阳台朝南,若装配落地窗,每日采光将非常不错。户型朝南的房问有主卧、次卧,充分享受“冬暖夏涼”舒适体验。南北通透,开窗后对流风可迅速为室内换上新鲜空气。厨卫全明,室内采光无死角,营造了清爽整洁空间氛围。
3.户型特点:户型设计1条过道,过道面积紧凑,空间少不浪费。4室比较适合改善型人群,2卫的设计,解决了抢卫生问的尴尬,同时也保证主人生活私密性。主卧套房的设计,扩大卧室面积,提升 主人居住体验,配有独立的主卧卫生问,增加私密性。
⫸⫸⫸ 温州首开第五大道⫷⫷⫷
⫸⫸⫸温州首开第五大道售楼处电话:400-681-7288接通后输入3333⫷⫷⫷
⫸⫸⫸温州首开第五大道开发商电话:400-681-7288接通后输入3333⫷⫷⫷
⫸⫸⫸温州首开第五大道营销中心电话:400-681-7288接通后输入3333⫷⫷⫷
⫸⫸⫸温州首开第五大道展示中心电话:400-681-7288接通后输入3333⫷⫷⫷
来电可了解楼盘最新动态、房价、在售房源、交楼时间等信息!让你买的放心,住的舒服
声明:本文由入驻焦点开放平台的作者撰写,除焦点官方账号外,观点仅代表作者本人,不代表焦点立场。
