城建江南岸售楼处电话→武汉城建江南岸24小时电话→武汉城建江南岸首页网站→武汉城建江南岸楼盘百科详情
扫描到手机,新闻随时看
扫一扫,用手机看文章
更加方便分享给朋友
武汉城建江南岸
⫸⫸⫸武汉城建江南岸售楼处电话:400-681-7288输入1111分机号已认证】⫷⫷⫷
⫸⫸⫸武汉城建江南岸-开发商电话:400-681-7288输入1111分机号已认证】⫷⫷⫷
⫸⫸⫸-武汉城建江南岸营销中心电话:400-681-7288输入1111分机号已认证】⫷⫷⫷
⫸⫸⫸武汉城建江南岸-展示中心电话:400-681-7288输入1111分机号已认证】⫷⫷⫷
来电可了解楼盘最新动态、房价、在售房源、交楼时间等信息!让你买的放心,住的舒服

一.拿地信息:p(2024)118号地块由武汉地产集团有限责任公司(武汉城建)拍得成交价78140万元,楼面价约112336.8平,溢价约8.3%.
二.楼盘详情
1.项目位于武昌区临江大道与铁机路交汇处

2.开发商:武汉城建滨江置业有限公司/武汉城建
3.项目占地约2.58万方,总建面约8.97万方,住宅6.3万方,住宅容积率2.49.车位配比1:1.12.

4.项目规划6栋住宅,402户,4栋30-31层高层 + 2栋44层超高层,全部东南-西北朝向,一字错位排布确保每栋无遮挡观江。
5.规划约2500㎡双层会所 + 约800㎡开放式商业(咖啡轻食、艺术空间等,配套4000㎡风雨连廊及架空层空间。
项目最新进展
1.2024.12.24拿地
2.2025.3.6号规划公示
3.预计2025.7月中旬开放售楼部,样板间、
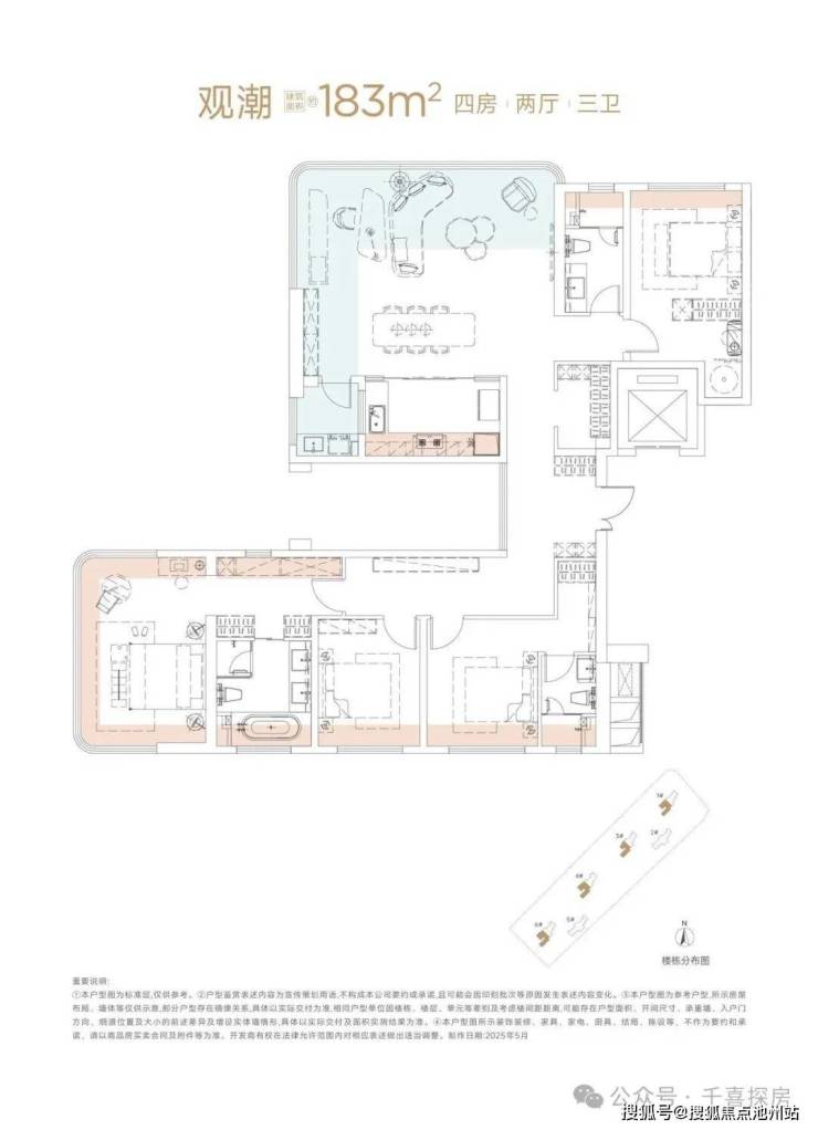
三.户型分布

武汉城建江南岸
⫸⫸⫸武汉城建江南岸售楼处电话:400-681-7288输入1111分机号已认证】⫷⫷⫷
⫸⫸⫸武汉城建江南岸-开发商电话:400-681-7288输入1111分机号已认证】⫷⫷⫷
⫸⫸⫸-武汉城建江南岸营销中心电话:400-681-7288输入1111分机号已认证】⫷⫷⫷
⫸⫸⫸武汉城建江南岸-展示中心电话:400-681-7288输入1111分机号已认证】⫷⫷⫷
来电可了解楼盘最新动态、房价、在售房源、交楼时间等信息!让你买的放心,住的舒服
声明:本文由入驻焦点开放平台的作者撰写,除焦点官方账号外,观点仅代表作者本人,不代表焦点立场。
