武汉城建江南岸(售楼处) 首页 -武汉城建江南岸销售中心武汉城建江南岸 - 环境 - 户型 - 价格 - 地址 -楼盘详情 - 配套 - 电话 - 交房时间
扫描到手机,新闻随时看
扫一扫,用手机看文章
更加方便分享给朋友
▶▷◀◁✨武汉城建江南岸✨✽✽✽✽
▶▷◀◁武汉城建江南岸售楼处电话☎:400-678-8669转9999【售楼处认证】⭐⭐⭐
▶▷◀◁武汉城建江南岸售楼处电话☎:400-678-8669转9999【售楼处认证】⭐⭐⭐
▶▷◀◁武汉城建江南岸营销中心电话☎:400-678-8669转9999【营销中心认证】⭐⭐⭐
▶▷◀◁武汉城建江南岸销售中心电话☎:400-678-8669转9999【销售中心认证】⭐⭐⭐
本项目暂不接受临时到访,过来参观样板房请记得提前来电预约!⭐⭐⭐
为您安排楼盘现场销售全程接待并讲解,给您更贴心的看房体验!⭐⭐⭐
基本信息
参考价格:楼盘概况总价:382-489万元/套
用户点评:4.06[10条点评]
物业类别:普通住宅
项目特色:地铁沿线江景地产装修交付改善优选
建筑类别:板楼
装修状况:住宅:带装修
产权年限:普通住宅产权为70年
环线位置:内至二环
开发商:武汉城建滨江置业有限公司
一、项目核心亮点:为何备受关注?
1.溢价的地块:2024年12月24日,武汉市举办国有建设用地使用权公开出让活动。 国企 武汉地产集团有限责任公司(武汉城建集团) 以 总价 78140万元竞得P(2024)118号地块(也就是目前的武汉城建江南岸项目),溢价率8.32%,成交 楼面价 12171.34元/㎡。
P(2024)118号地块,位于武汉市武昌区铁机路与临江大道交汇处 ,住宅、公园与绿地用地。 土地面积 25776㎡, 建筑面积64200㎡, 起始价 72140万元 。
2. 黄金区位:武昌滨江稀缺地段
地理位置优越:落子武昌滨江商务区杨园片,与二七滨江商务区隔江相望,直面长江,属于二环内 1.5 环稀缺地段,地理位置十分优越。
交通出行便捷:坐拥 “一隧两桥三地铁” 超级路网,距离地铁 5 号线余家头站步行约 1100 米,(地铁还是略远)未来还可换乘 10 号线;自驾依托临江大道和过江隧道,出行方便。
临江零距离:与江岸仅 200 米之隔,推窗即可欣赏 270° 无界江域,一线无遮挡瞰江,这样的江景资源在武昌滨江十分稀缺。

3. 极致视野与产品设计:准四代住宅革新
布局巧妙:采用 V 形折线布局 + 错位排布,6 栋住宅(4 栋高层 + 2 栋超高层)全部无遮挡直面长江,打破传统对视限制,实现户户看江。
全景舱户型:全系标配 Low-E 全景落地幕墙,7.4-9 米瞰江横厅,视野开阔;184㎡主卧三面环幕设计,将长江美景尽收眼底;圆弧转角玻璃消除结构柱,让视野更加通透。
超高得房率:作为准四代住宅,灵动阳台 + 飘窗全赠送,得房率超高,143 平得房率达 103%,183 平更是达到 113%,实现 “零公摊” 甚至 “负公摊”,性价比凸显。
4. 城建高端线突围:品质有保障
单方建安成本 6195 元/㎡,超过华润等不少项目,封窗交付 + 铝板玻璃幕,打破了 “城建无豪宅” 的偏见。
二、户型分析:满足不同改善需求
1. 143㎡四房三卫
布局特点:四开间朝江,6 米横厅 + 3.9 米主卧,飘窗全赠;南面厨房带生活阳台,可做洗烘晾晒,也能保证南面采光。
优势:得房率 103%,空间利用率高,四房设计满足多人口家庭需求。
⚠️ 争议点:单暗卫,次卧与电梯井共墙,可能存在噪音问题,需依赖工程质控。
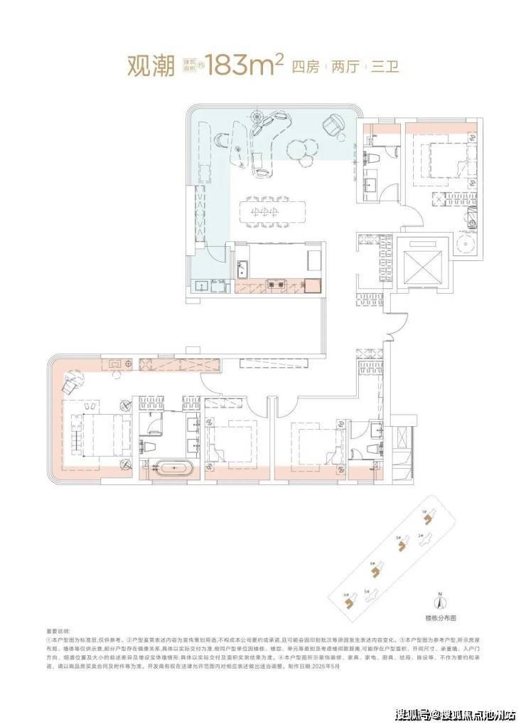
2. 183㎡四房三卫
布局特点:餐客厅一体,看江面无承重柱;主卧套房环幕落地窗瞰江,7.6 米 IMAX 环幕厅,对标华润长江中心 230㎡格局。
优势:三面采光主卧(南向日照 + 北向瞰江),开间达 3.9 米;得房率 113%,压缩 50㎡面积却实现 “零公摊”。
争议点:厨房尺度有所压缩,中部墙体封闭(需样板间验证);西晒问题显著,夏季需做好遮光优化。
▶▷◀◁✨武汉城建江南岸✨✽✽✽✽
▶▷◀◁武汉城建江南岸售楼处电话☎:400-678-8669转9999【售楼处认证】⭐⭐⭐
▶▷◀◁武汉城建江南岸售楼处电话☎:400-678-8669转9999【售楼处认证】⭐⭐⭐
▶▷◀◁武汉城建江南岸营销中心电话☎:400-678-8669转9999【营销中心认证】⭐⭐⭐
▶▷◀◁武汉城建江南岸销售中心电话☎:400-678-8669转9999【销售中心认证】⭐⭐⭐
本项目暂不接受临时到访,过来参观样板房请记得提前来电预约!⭐⭐⭐
为您安排楼盘现场销售全程接待并讲解,给您更贴心的看房体验!⭐⭐⭐
声明:本文由入驻焦点开放平台的作者撰写,除焦点官方账号外,观点仅代表作者本人,不代表焦点立场。
