2025石家庄华宁·央玺(售楼处)首页网站-石家庄华宁·央玺_石家庄华宁·央玺售楼处欢迎您_华宁·央玺楼盘详情 华宁·央玺@售楼中心
扫描到手机,新闻随时看
扫一扫,用手机看文章
更加方便分享给朋友
⭐石家庄华宁·央玺⭐⭐
⭐石家庄华宁·央玺售楼处电话售楼处电话☎400-678-8669转7777【楼盘认证】⭐⭐
⭐石家庄华宁·央玺开发商电话☎:400-678-8669转7777【售楼处已认证】⭐⭐
⭐石家庄华宁·央玺营销中心电话☎:400-678-8669转7777【售楼处已认证】⭐⭐
⭐石家庄华宁·央玺售楼中心电话☎:400-678-8669转7777【售楼处已认证】⭐⭐
⭐石家庄华宁·央玺销售中心电话☎:400-678-8669转7777【售楼处已认证】⭐⭐
✅本项目暂不接受临时到访,过来参观样板房请记得提前来电预约!⭐⭐
✅为您安排楼盘现场销售全程接待并讲解,给您更贴心的看房体验!⭐⭐
整体概述
华宁·央玺楼盘位于石家庄新华市庄路与九中街交叉口西南280米,由河北华宁房地产开发有限公司精心打造,项目正持续推售中(价格待定),通过对项目价格、项目户型、交通配套、教育配套、生活配套、小区规划等维度进行分析,华宁·央玺楼盘价值评分为9.6分。
交通配套
周边直线3km范围内有11个地铁站(市二中、市庄、新百广场、解放广场、柏林庄、烈士陵园、东里、平安大街、高柱、和平医院、建和桥),轨道交通发达,距离最近的地铁站是市二中。
周边直线1km内有26个公交站,距离最近的中华和平路口南站仅有166m,周边公共交通极为便捷。
交通配套
周边直线3km范围内有11个地铁站(市二中、市庄、新百广场、解放广场、柏林庄、烈士陵园、东里、平安大街、高柱、和平医院、建和桥),轨道交通发达,距离最近的地铁站是市二中。
周边直线1km内有26个公交站,距离最近的中华和平路口南站仅有166m,周边公共交通极为便捷。
教育配套
直线3km范围内有96个幼儿园;38个小学,如石家庄市南马路小学、石家庄市维明路小学(分校)、石家庄市维明路小学、石家庄市西里小学、石家庄市中华大街小学等;18个中学,如石家庄二中、石家庄市第九中学(西院)、石家庄市第九中学、石家庄二中(西校区)、石家庄市第十七中学等。
生活配套
楼盘周边医疗资源较为丰富,直线3km范围内有21个一级及以上医院。其中河北医科大学第二医院总院距离楼盘378m,河北省人民医院距离楼盘1.1km,石家庄市中医院本院区距离楼盘1.6km,河北医科大学第三医院中山院区距离楼盘2.1km,河北医科大学第三医院(西院)距离楼盘2.7km,等等,为医疗需求提供了可靠保障。
楼盘周边3km范围内有49个商场,包括新百广场、华林国际商业广场、品汇广场、万象城、荣盛·城市广场等购物中心,商业配套成熟,完全可以满足日常购物需求。
楼盘周边生态环境优越,周边3km范围内有81个公园,距离最近的仅448m,非常方便日常休闲使用。
曾经有位房产大佬说:地段、地段、还是地段
项目区位可以看到周边交通、医疗、教育、商业、公园等配套成熟
1、交通:中华大街(石家庄第二迎宾大道)、与和平路(豪宅一条街),地铁3号线、5号线(建设中)双地铁环伺,市庄站约400米,城市快速路一站式出行,举步即达城市核心商圈。
a.步行2分钟,速达地铁3号线和5号线(在建中)市庄站
b.车程5分钟,直达石家庄北站换乘高铁
c.车程10 分钟,快速接驳西柏坡高速/北绕城高速/黄石高速
d.车程30 分钟,畅达石家庄正定国际机场
2、医疗:项目南侧紧邻全国知名医疗体,河北医科大学第二医院,集团更是投入重金,石家庄仅有的、唯一一条约5分钟黄金生命绿色直达通道(开通省二院专属绿色生命通道,黄金救助争分夺秒;专属一键紧急呼叫按钮,第一时间快速响应;周边省人民/市二院/市中医院等重点医疗机构环绕),为您和家人的健康保驾护航。
3、教育 :自建9班制幼儿园,与石家庄第三实验幼儿园携手;自建18班制小学,与机场路小学联袂;周边北新街小学/二中/九中等
4、商业:华宁·城央汇—约30万㎡商业配套,兑现多元业态,购物,休闲,社交的场景,自建约6万㎡双层国际商街,全长1300米。国际美食街汇集31个城市、港澳台及国外特色美食;荟萃知名品牌店/影院/健身房/大型商超等多维生活配套。自建4栋5A级总部商务写字楼,世界500强及行业名企总部商务集群。
5、其他商业
央玺到达新百购物中心约2公里;
到达万象城约2.5公里;
到达勒泰商圈约5公里;
内部更有约30万㎡商业集群
三、规划
1.共12栋(东区7栋+西区5栋)
2.占地面积:约260亩
3.建筑面积:约70万㎡
4.绿化率:35%
5.交付标准:毛坯交付
6.住宅交付时间:2026年3月31日
7.物业品牌:万科物业
8.建筑风格:现代建筑风格
9.外立面材质:香槟金铝板+玻璃幕墙

10.甄选石材:定制专属石材料
11.品质安防:采用王力品牌入户门锁;
12.匠心精工:三玻两腔断桥铝中空玻璃窗,品质型材保障静心生活格调
13.配建10000㎡私享公园,区域内更有柏林公园、水上公园等,优越的公园景观打造生态宜居之所

14.威仪社群大门,轻奢酒店式体验,定制精装风格让出入皆为不凡,承续归家门厅的至高礼遇。单元大堂墙面采用大面积定制化石材

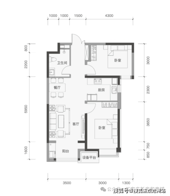
15.相关户型
86.23㎡

90.68㎡

95.56㎡(三居室)

131.89㎡

134.23㎡

135.21㎡

137.85㎡

171.85㎡

146.97㎡

251㎡

⭐石家庄华宁·央玺⭐⭐
⭐石家庄华宁·央玺售楼处电话售楼处电话☎400-678-8669转7777【楼盘认证】⭐⭐
⭐石家庄华宁·央玺开发商电话☎:400-678-8669转7777【售楼处已认证】⭐⭐
⭐石家庄华宁·央玺营销中心电话☎:400-678-8669转7777【售楼处已认证】⭐⭐
⭐石家庄华宁·央玺售楼中心电话☎:400-678-8669转7777【售楼处已认证】⭐⭐
⭐石家庄华宁·央玺销售中心电话☎:400-678-8669转7777【售楼处已认证】⭐⭐
✅本项目暂不接受临时到访,过来参观样板房请记得提前来电预约!⭐⭐
✅为您安排楼盘现场销售全程接待并讲解,给您更贴心的看房体验!⭐⭐
声明:本文由入驻焦点开放平台的作者撰写,除焦点官方账号外,观点仅代表作者本人,不代表焦点立场。
