中绿•馨海家园(中绿•馨海家园首页网站-中绿•馨海家园营销中心-中绿•馨海家园欢迎您-楼盘详情·备案价-户型图@售楼处
扫描到手机,新闻随时看
扫一扫,用手机看文章
更加方便分享给朋友
三亚中绿•馨海家园售楼处24小时电话📞:400-9620-133 【已认证】✿✿✿✿
三亚中绿•馨海家园营销中心24小时电话📞:400-9620-133 【已认证】✿✿✿✿
三亚中绿•馨海家园最新24小时电话📞:400-9620-133 【已认证】✿✿✿✿
三亚中绿•馨海家园开发商24小时电话📞:400-9620-133 【已认证】✿✿✿✿
三亚中绿•馨海家园展示中心24小时电话📞:400-9620-133 【已认证】✿✿✿✿
✅ 本项目暂不接受临时到访,过来参观样板房请记得提前来电预约!
✅ 为您安排楼盘现场销售全程接待并讲解,给您更贴心的看房体验!
在售户型图丨项目介绍丨最新房源丨周边配套丨详细解答〢
◆开发商营销中心诚挚邀请,一键预约,尊享内部独家折扣!匠心独运的精品项目,恭候您的品鉴与选择。
均价仅12800元/㎡的项目,你一定不敢相信这是三亚的房价。自中绿馨海家园项目面世以来,一直有着极高的话题热度。
作为三亚当前少有的亲海安居房产品,中绿馨海家园项目到底怎么样,又有哪些优缺点,下面为您全面解析! 赶时间的朋友也可直接致电咨询:400 649 0898

区位交通
三亚中绿•馨海家园售楼处24小时电话📞:400-9620-133 【已认证】✿✿✿✿
三亚中绿•馨海家园营销中心24小时电话📞:400-9620-133 【已认证】✿✿✿✿
三亚中绿•馨海家园最新24小时电话📞:400-9620-133 【已认证】✿✿✿✿
三亚中绿•馨海家园开发商24小时电话📞:400-9620-133 【已认证】✿✿✿✿
三亚中绿•馨海家园展示中心24小时电话📞:400-9620-133 【已认证】✿✿✿✿
中绿馨海家园项目落址于红塘湾旅游度假区,毗邻红塘湾七横路,紧邻G225国道、G98环岛高速,依托国道、高速串联凤凰路、三亚湾路、迎宾路等。项目距离G225国道约500m,距离天涯镇约3.5km,距离三亚湾椰梦长廊约10km,距离青春颂广场约25km,距离蓝海购物广场约27km,可迅速抵达三亚核心商圈,为居者悦启一城繁华生活。

项目规划
中绿馨海家园项目距海约1公里,拥有独特的原生态山海景观资源,项目总占地面积约3.8万㎡,总建筑面积约14万㎡ ,容积率约3.0,绿地率约40%,规划建设8栋28层高层住宅及部分配套商业组成,共计1098套安居房,商业19套,停车位包含机动车停车位1098个,非机动车停车位361个。住宅70年产权、商业40年产权,硬装交付,2023年6月30日交房。


三亚中绿•馨海家园售楼处24小时电话📞:400-9620-133 【已认证】✿✿✿✿
三亚中绿•馨海家园营销中心24小时电话📞:400-9620-133 【已认证】✿✿✿✿
三亚中绿•馨海家园最新24小时电话📞:400-9620-133 【已认证】✿✿✿✿
三亚中绿•馨海家园开发商24小时电话📞:400-9620-133 【已认证】✿✿✿✿
三亚中绿•馨海家园展示中心24小时电话📞:400-9620-133 【已认证】✿✿✿✿

三亚中绿•馨海家园售楼处24小时电话📞:400-9620-133 【已认证】✿✿✿✿
三亚中绿•馨海家园营销中心24小时电话📞:400-9620-133 【已认证】✿✿✿✿
三亚中绿•馨海家园最新24小时电话📞:400-9620-133 【已认证】✿✿✿✿
三亚中绿•馨海家园开发商24小时电话📞:400-9620-133 【已认证】✿✿✿✿
三亚中绿•馨海家园展示中心24小时电话📞:400-9620-133 【已认证】✿✿✿✿

产品解读
中绿馨海家园项目采用板楼行列式的形式布局,一梯两户的设计,采光通风俱佳,尽最大可能拥享南向海景资源,规划建面约100-120㎡三至四房产品,住宅70年产权,硬装交付,2023年6月30日交房。

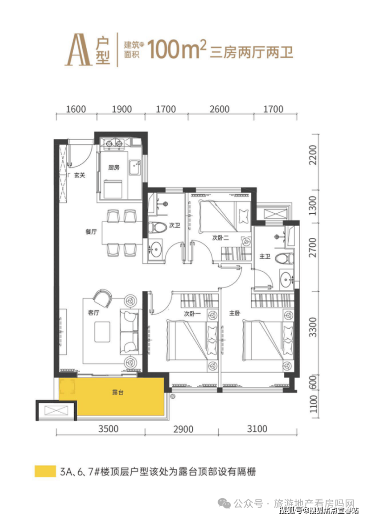
户型解读:
A户型:建筑面积约100㎡,三房两厅两卫。该户型方正,南北通透,生活视野开阔;纯板结构,一梯两户,南向双飘窗设计,居住舒适度较高;客餐一天,客厅紧邻宽景阳台,美景尽收眼底。

三亚中绿•馨海家园售楼处24小时电话📞:400-9620-133 【已认证】✿✿✿✿
三亚中绿•馨海家园营销中心24小时电话📞:400-9620-133 【已认证】✿✿✿✿
三亚中绿•馨海家园最新24小时电话📞:400-9620-133 【已认证】✿✿✿✿
三亚中绿•馨海家园开发商24小时电话📞:400-9620-133 【已认证】✿✿✿✿
三亚中绿•馨海家园展示中心24小时电话📞:400-9620-133 【已认证】✿✿✿✿
B户型:建筑面积约120㎡,四房两厅两卫。该户型为四房布局,南北朝向,可容纳三代同堂的理想生活,4.6m宽餐厅、阔尺厨房,烹饪幸福的滋味;6.4m宽超大景观阳台、拥揽无尽园林景观。

样板间鉴赏:三亚中绿•馨海家园售楼处24小时电话📞:400-9620-133 【已认证】✿✿✿✿
三亚中绿•馨海家园营销中心24小时电话📞:400-9620-133 【已认证】✿✿✿✿
三亚中绿•馨海家园最新24小时电话📞:400-9620-133 【已认证】✿✿✿✿
三亚中绿•馨海家园开发商24小时电话📞:400-9620-133 【已认证】✿✿✿✿
三亚中绿•馨海家园展示中心24小时电话📞:400-9620-133 【已认证】✿✿✿✿



项目配套
三亚中绿•馨海家园售楼处24小时电话📞:400-9620-133 【已认证】✿✿✿✿
三亚中绿•馨海家园营销中心24小时电话📞:400-9620-133 【已认证】✿✿✿✿
三亚中绿•馨海家园最新24小时电话📞:400-9620-133 【已认证】✿✿✿✿
三亚中绿•馨海家园开发商24小时电话📞:400-9620-133 【已认证】✿✿✿✿
三亚中绿•馨海家园展示中心24小时电话📞:400-9620-133 【已认证】✿✿✿✿
中绿馨海家园内部建有配套商业约1100㎡,规划有儿童游乐设施、老年活动场地等全龄娱乐运动配套,可轻松满足业主日常需求。除此之外,项目外部荟萃卫生院、大型风情购物街、农贸市场等多元配套,中小学学校环伺,医行住娱教配套齐全,享便利无忧生活。


生活配套——天涯镇风情街 、红塘湾度假区商业街、农贸市场、大型超市、银行、邮局等生活配套应有尽有,提供丰富的日常生活服务;
医疗配套——黑土村卫生院、马岭卫生院、三亚市中心医院(规划中)、三亚市第二人民医院(规划中);
教育配套——红塘幼儿园、红塘小学、天涯小学、中央民族大学(三亚)附属中学。
✅开发商售楼处电话400-9620-133
✅温馨提醒:我们楼盘开发商售楼部400电话没有设置任何所谓的“分机号”,拨打前请仔细甄别,注意保护个人隐私!谨防上当!
✅过来售楼中心看房请提前预约,可尊享内部特惠,价格包您满意!
✅为您安排楼盘内场专业销售人员一对一接待服务!让你买的放心,住的舒心!
✅楼盘详情介绍(楼盘项目怎么样?多少钱一平?什么时候交楼?有什么户型?周边有什么学校?物业费多少?楼盘项目会不会烂尾?)含开盘时间、交房时间、楼盘详情、房价、户型、详情、得房率、售楼处地址、首页网站、降价了吗?目前房价情况、楼盘项目有升值吗?值不值得买?能不能投资?为什么这么便宜?读什么学校?包读吗?有多少学位?销售中心、楼盘地址、户型图、交通、备案价、项目配套、营销中心、写字楼、厂房、公寓、住宅、别墅、商铺、商业、办公楼、商办公寓、周边配套等详情咨询。
✅开发商售楼处咨询电话:400-9620-133 【营销中心】楼盘怎么样?值不值得买?读哪个学校?价格多少?户型怎样?位置在哪里?有没有潜力?几点下班?开盘时间?产权多少年?批地时间?有没有问题?什么开发商?能买吗?打几折?周边配套楼盘详情。
✅售楼处电话:400-9620-133 ;首页网站最新介绍:房价、价格、折扣、规划、户型图、特价房、样板房、优缺点、得房率、车位比、折扣优惠、交通出行、周边配套、商业配套、销售中心位置、楼盘地址、户型介绍、营销中心电话、最新动态详情咨询。
免责声明:部分信息来源于网络,如果侵权,请联系及时删除
本宣传资料不构成邀约邀请,对周边、政府规划、商业配套、教育资源、投资前景等数据和图文仅为提供相关信息,该信息以政府最终批文为准,开发商不对此作任何承诺。买卖双方的权利义务以双方签订的买卖合同约定及附件、实际交付为准,本公司保留对宣传资料修改的权利,敬请留意最新资料。联系号码:400-9620-133
声明:本文由入驻焦点开放平台的作者撰写,除焦点官方账号外,观点仅代表作者本人,不代表焦点立场。
