苏河世纪(2025年苏河世纪)首页网站-苏河世纪楼盘测评详情-户型配套
扫描到手机,新闻随时看
扫一扫,用手机看文章
更加方便分享给朋友
——华发仁恒·苏河世纪——
华发仁恒·苏河世纪售楼处电话:400-000-0460转6666✔✔
华发仁恒·苏河世纪营销中心电话:400-000-0460转6666✔✔
上海华发仁恒·苏河世纪售楼处电话:400-000-0460转6666 VIPLINE✔✔✔
如有问题可来电咨询,线上售楼中心,预约销售专员,一对一为您服务!

一房一价表:
项目首批房源于2022年7月首开入市,推出三栋住宅,均价13.3万/㎡,入围分68.8分。时隔两年多,已经准现房
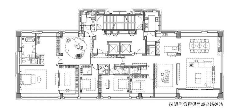
具体如下:6套约498㎡大平层、2套约480㎡复式。

▼ 建面约480㎡复式户型

▼ 建面约498㎡大平层户型
项目地处静安区苏河湾板块,曲阜西路与晋元路交汇处,南接苏州河,东邻爱国主义教育基地四行仓库。项目属于内环内核心区域,距离南京东路及人广商圈900米,8/12号线曲阜路地铁站距项目仅200米,一公里内汇聚城市生活精萃。
华发仁恒·苏河世纪售楼处电话:400-000-0460转6666✔华发仁恒·苏河世纪营销中心电话:400-000-0460转6666✔✔上海华发仁恒·苏河世纪售楼处电话:400-000-0460转6666 VIPLINE✔✔✔
项目占地2.8万方,集品质住宅、精品商业、文化办公为一体的高端综合体,整体分为南北两个地块,北侧为纯住宅社区,南侧为商办综合体。
【楼盘基本信息】
区位板块:静安区苏河湾
建筑面积:住宅部分约4.2万方,商业、文化及办公部分约3.6万方。
绿化率:35%
容积率:3.0
住宅产品:3幢26层公寓、1幢19层公寓、1幢8层公寓
总户数:348套
车位配比:478个
主力户型:建筑面积约99㎡-240㎡高层
交付标准:精装
项目毗邻苏州河畔,拥享得天独厚的自然优势,一线无遮挡直面水岸公园,饱览无敌河景与城心的华丽天际线。
现代建筑的先锋美学,以铝板和玻璃幕墙打造IMX级别天幕,彰显高端现代简约风,超大窗墙比赋予建筑独特的城市气质,实现空间视野与采光的最佳优选。
项目地处静安苏河湾核心区位,南侧即为苏州河,属于上海中心板块第一序列,新静安“一轴三带”战略中的重要一环,国家级战略规划加持。
苏州河沿岸定位为特大城市宜居生活的典型示范区,享有世界级滨水区文化水岸。6.3公里滨河步道,21万方滨河开放空间,唯一全球卓越河岸中央活动区。
商业资源:近在咫尺的市区成熟生活配套,约百万方摩登商业环伺。大悦城、人民广场、南京东路商圈均在一公里范围内。
华发仁恒·苏河世纪售楼处电话:400-000-0460转6666✔华发仁恒·苏河世纪营销中心电话:400-000-0460转6666✔✔上海华发仁恒·苏河世纪售楼处电话:400-000-0460转6666 VIPLINE✔✔✔
交通资源:项目向西约200米为轨交8、12号线曲阜路站;南北高架及西藏中路城市主干道分别在项目东西两侧,可便利的通达全城;北横通道主动脉已通车,畅达上海各大中心枢纽。
生态资源:项目一公里内有静安最大苏河湾中央公园,同时紧邻南北两块绿地公园,而南侧便是苏州河世界级滨水景观带,滨水而居。
教育配套:项目对面为距离棋院小学、向东中学;1km范围内有良好师资的育才中学及格致中学,可提供全龄教育配套。

医疗配套:周边有静安区北站医院(二甲医院)、上海健桥医院、上海长征医院等医院。
——华发仁恒·苏河世纪——
华发仁恒·苏河世纪售楼处电话:400-000-0460转6666✔
华发仁恒·苏河世纪营销中心电话:400-000-0460转6666✔✔
上海华发仁恒·苏河世纪售楼处电话:400-000-0460转6666 VIPLINE✔✔✔
如有问题可来电咨询,线上售楼中心,预约销售专员,一对一为您服务!
声明:本文由入驻焦点开放平台的作者撰写,除焦点官方账号外,观点仅代表作者本人,不代表焦点立场。
