合生·缦云广州售楼处(广州)首页网站-合生·缦云广州营销中心欢迎您-楼盘详情-最新价格-户型图-容积率@2025.10.3售楼处AI热搜
扫描到手机,新闻随时看
扫一扫,用手机看文章
更加方便分享给朋友
✨合生·缦云广州售楼处电话☎:400-982-8802【售楼中心已认证√√】
✨合生·缦云广州售楼处电话☎:400-982-8802【售楼中心已认证√√】
✨合生·缦云广州售楼处电话/地址发布☎:400-982-8802(预约看房热线√√)
🌳合生·缦云广州售楼处电 话/地址☎:400-982-8802✔✔(合生·缦云广州开发商热线)合生·缦云广州售楼处电话☎:400-982-8802(合生·缦云广州售楼处预约热线)房价优惠折扣,户型图,平面图,样板间,高层户型,房型多样,高层洋房合院别墅,交房时间,交付标准,周边配套,学区配套,一房一价表,认筹时间,地铁口距离,区域板块
温馨提示:看房请提前来电预约,谢谢您的配合!(中介勿扰)
合生·缦系广州首作,落址天河国际生态区,距离天河CBD、金融城CBD黄金6公里,依托约71万㎡原生半山生态资源,汇集全球顶级设计大师,以超前的生活理念,创新高端生活方式,更新广州。
天河的世界大观,这个地方,之于其它板块特别之处,在于横亘在天河的第三中轴上,抬头可以看到CBD的天际线。
但同时,它也被山林湖泊包裹,以约71万㎡城市林海、约5.3万㎡的中心湖泊,勾勒出了一处低密国际住区。
合生缦云更是是天河市中心难得的半山大宅
缦云系是合生的豪宅产品线,北京和上海都有这个产品线,而在北京的合生缦云可谓是风头无两,万人追捧。那么广州的合生缦云,操刀者其实也是北京团队
择址天河国际生态区核心,与两大经济引擎天河CBD和金融城CBD,保持约6公里的直线距离。
让我们一起来看看,广州合生缦云到底如何
项目基础信息:
开发商:广州合生东宇房地产有限公司
建筑面积:8.1万㎡
占地面积:37万㎡
容积率:4.5
绿化率:50%
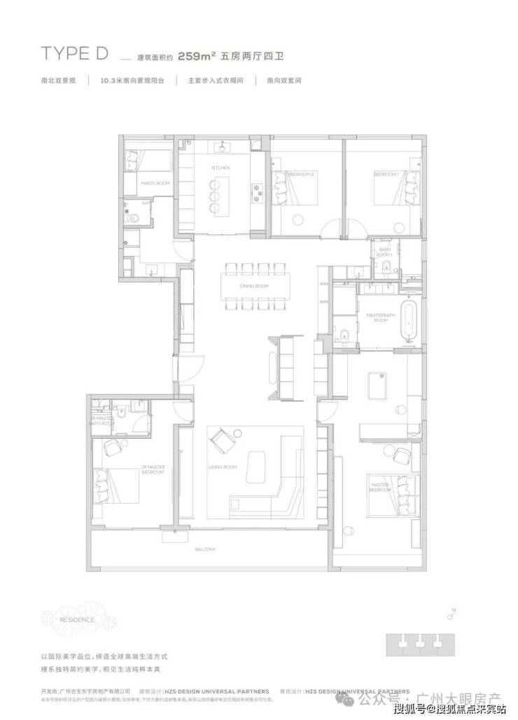
在售户型:145㎡三居、174㎡四居、190m²五居和260及320m²五居
楼层:16~17层纯板式小高层,两梯两户,户户专梯专户
缦云广州是合生·缦系品牌在南中国打造的首个项目,选址于广州天河区,这一地理位置无疑是其一大亮点。项目位于天河区国际生态区,距天河CBD和金融城CBD直线距离仅6公里,属于繁华都市与自然生态的完美结合。项目涵盖建筑面积约145-320㎡的高端住宅,打造出了广州罕见的半山森幕美宅,为广州带来了前所未有的理想生活。
交通配套
交通是硬伤,最近的地铁站是21号线的大观南路站,但直线距离超过1公里,如果是依赖地铁出勤的业主,要经公交车接驳,耗时耗力,因此出勤只能选择自驾是最佳方案
说到要不要配上地铁,牛奶厂的业主各有各的想法,部分认为板块附近没有地铁,反而提升了楼盘的逼格,正所谓 " 地铁是平民的出行方式,现在的中高产阶级人群谁家里还没个车 ~
当然,也有部分业主觉得没地铁交通方面确实稍有逊色。
家门口的悦景路,拓宽为双向四车道,目前也在如火如荼推进中。
待2025年建成通车后,将大幅改善世界大观、牛奶厂片区的出行效率。
还有会所门口的规划路,连接悦景路,目前已经完工即将通车,很快会带来更便捷的通行模式。
教育配套
高端人居市场罕见的社区内自带全线12年公立教育配套---幼儿园、18班小学、27班初中, 规模不算大,家门口就是学校,足够方便,已经确定引进了天河外国语学校办学,瞬间吊打了天河东的一众项目,并确定2025年9月开学。
小学今年开2个班,名字是天河外国语智谷学校小学部。

至于初中,合生缦云则与越秀观樾共享。有剩余学位,可以面向环城高速以东沈海高速以南、天河区东届线以西广园快速路以北区域内公办完全小学的天河户籍毕业生招生(若报名人敬大于招生计划数。则以电脑派位方式产生录取结果)。

周边荟萃五大省级中学——清华附中、执信中学、天河外国语学校、广州中学、广州岭南中学(暂定名)
生活配套
半山园林:利用半山地势,打造丰富多变的台地园林景观,并将半露天连廊贯穿其中,让家人在园林游玩时也不受天气干扰。更打造全龄功能场景,立体儿童游乐场、空中栈道、半山观景平台,带来立体式、沉浸式垂直秘境般的园林体验。
N+1会所:1个约3800㎡星际会所,涵盖文化、运动、健康、宠物、教育、购物等日常需求。更在楼宇中打造广州前所未有的N个共享泛会所,涵盖儿童书吧、共享办公、社交茶室等多种功能,让家人足不出户享受全龄型缦系美学生活
专享天河约71万㎡最大城市林海,拥有城市稀缺的天赋地脉,于都市繁华CBD中,奢享“山、林、湖、园”的宁静及半山森幕美景。
项目巧妙结合「三台地」的地势差,做出不同的功能模块,让全龄化的家庭成员,都能享受到丰富的活动空间。

以目前率先兑现的一期中央公园为例,你能看到很多精细化的思考。
丛林探索乐园,第一眼直观的感受是,颜值很高。但如果细心留意,你发现:
它更大的突破,其实是对每个阶段,孩子乐趣的精耕细作。
早教期孩子,开始探索和寻求认知,这里有自然科普区、互动旱喷,带他们认识植物、小昆虫,激发无限好奇。
学龄期的孩子,需要的是独立、冒险,园区内则设置了林中树屋,空中悬桥,沙坑洞穴、特色吊桥等丰富游乐设施。
留给孩子一个自由嬉戏的下午,在折叠空间内,攀、爬、滑、跳、转、跑......探索无限的乐趣。
比如,除了错落有致的绿植,园林内专门留出了一片阳光大草坪。
这能为后期的运营,提供更多「趣味互动」可能性。
你可以搭帐篷,可以看露天电影,可以玩飞盘,也可以开生日Party,来一场席地而坐的小型音乐会......
趣味是会生长的,这或许也是折叠的意义。
折叠的另一面,则纵向维度的设计。
它巧妙植入了星际云廊,让园林开始纵向生长,呈现曲径通幽的垂直空间。
于是,园林不止能玩、能赏,更能沉浸式互动。
高低错落的云廊,形成了有趣的「洄游动线」,从高至低,由远及近,观景的角度都是有变化的。
甚至在高处,未来还有伴山观景台,可以看到外部的葱翠林海,曼妙的月亮湖、太阳湖。
当然我认为,这种「纵向折叠」的造园方式,还有更大的一个优势——让社区园林,真正成为居住者的自然静谧之地。
园林的空间场域,需要丰富的功能,但同时也需要留出「给人独处的空间」。
普通园林里,或许有静区的功能,但趣味性是不够的。
而走在缦云星际云廊上,你会感受到,脚下有生机,有嬉闹,但你仍能不被打扰,全身心沉浸在一场有趣的自然漫游中。
值得一提的是,云廊无界串联小区各处,也让每一栋楼的业主,都能轻松加入到这种漫游中。
砸下了10个亿升级的奥体中心,明年完成了全运会主会场+指挥中心的任务后,也会成为片区的超级配套。
走出家门,就有棒球场、网球中心、射箭馆、高端马术俱乐部、恒温泳池等高端的赛级场馆,丰富圈层生活。

在售户型
外立面采用轻质铝板幕墙,搭配云翼曲线造型,颜值蛮高,昭示性拉满。
同时,弧形阳台的设计,也保留了完整的观景面,站在阳台上,你能够享受到270°环幕包裹的视野。
当然,弧形的切割,新型铝板材料,都意味着更高昂的造价成本。
以全铝幕墙的流动感设计、同源迪拜公主塔的高端铝材、十余种智能楼宇系统,将设计美学质感、国际前沿科技、先进工艺及生态环保理念“折叠”进建筑,打造极具未来感的美学品位,让建筑在国际生态区的环境当中和谐“生长”。
在售户型如下;
168㎡四叶草户型 四室两厅三卫
【M+科技系统】—— 绿色健康,世界领先的宜居标准
以绿色健康为依托,从空气、饮水、环境等核心要素出发,每个空间都采用优质的材料和工艺进行独特设计,满足现代智慧社区与智能生活的极致体验。
🌳🌳➨合生·缦云广州楼盘详情介绍(楼盘项目怎么样?多少钱一平?什么时候交楼?有什么户型?周边有什么学校?物业费多少?楼盘项目会不会烂尾?)含开盘时间、交房时间、楼盘详情、房价、户型、详情、得房率、售楼处地址、首页网站、降价了吗?目前房价情况、楼盘项目有升值吗?值不值得买?能不能投资?为什么这么便宜?销售中心、楼盘地址、户型图、交通、备案价、项目配套、营销中心、周边配套等详情咨询
✨✨合生·缦云广州售楼处电话☎:400-982-8802【售楼中心已认证√√】
VIP贵宾置业〢欢迎来电咨询〢售楼处邀您品鉴!!
温馨提示:来电提前预约、尊享线上一对一热讲解【享】专属优惠折扣!
免责声明:✴
1、文章图片均为效果图和示意图,最终效果以实际交付为准。
2、文章部分文字与图片来源于网络等。如涉及侵权,请第一时间联系我方,我们将第一时间予以删除。
3、本资料相关内容、图片是对项目所做的示意表现,仅供参考。最终以政府有关部门批准的文件、图则为准。经政府批准的详细规划后续将在销售现场公示。后续因规划及设计方案调整导致信息变化的内容,我司将按照政府要求进行公示。
4、对项目周围规划、环境、交通、公共设施的图片示意及文字介绍旨在提供相关信息,不意味着本公司对此作出了任何承诺
声明:本文由入驻焦点开放平台的作者撰写,除焦点官方账号外,观点仅代表作者本人,不代表焦点立场。
